Ответить
  • 3De Senior MemberАвтор темы
    офлайн
    3De Senior Member Автор темы

    2766

    23 года на сайте
    пользователь #7693

    Профиль
    Написать сообщение

    2766
    # 20 января 2010 16:53

    Поделитесь своим опытом общения с дизайнерами. Впечетления, цены, на что обращать внимания, к кому стоит обращаться, а к кому нет и т.д.
    Давайте обсудим!

    Настало время делать ремонт в квартире (3-х комнатная, 98м2)
    Хотим привлечь к этому процесу дизайнеров.
    Фирм и частников огромное количество, аж голова идет кругом.
    Как выбрать креативных, талантливых и ответственных людей?

    Строительство и ремонт на Барахолке
    Строительные и отделочные материалы
    Инструменты и оборудование для ремонта и строительства
    Двери. Окна. Рамы
    Натяжные потолки
    Напольные покрытия
    Сантехника
    Канализация. Вентиляция. Отопление
    Услуги по отделочным строительным работам и ремонту
    Переезд. Перевозки. Грузчики.

    ...and justice for all...
  • KIV Senior Member
    офлайн
    KIV Senior Member

    13361

    20 лет на сайте
    пользователь #32316

    Профиль
    Написать сообщение

    13361
    # 9 ноября 2025 23:08 Редактировалось KIV, 4 раз(а).
    art-triumph:

    Сегодня даже есть направление в дизайне, по сочетанию не считаемого, и это стало нормой.

    Вот это плохо.. вот я не хочу до такого скатиться)) но есть картинки , которые вы подобрали, которые говорят, что я на правильном пути
    и таки буду сочетать сочетаемое))

    art-triumph:

    Хотя лично я не понимаю, как можно одевать вечернее платье с кроссовками! )))

    Возможно, если бы вы чаще с компаниями отдыхали в съемных коттеджах на Нг, то еще удивились бы требованию хозяев - на каблуках нельзя ходить по дому и увидели бы тапочки + вечернее))это тоже что-то с чем-то))

    Добавлено спустя 7 минут 53 секунды

    art-triumph:

    По материалам оптимально:
    ПОЛ- светлое дерево (ламинат)
    СТЕНЫ - одна акцентная стена (в цветочек), другие - фоновые (без рисунка).
    ПОТОЛОК - белый сатин, натяжной. Возможен декоративный карниз в примыкании потолок-стена.
    СВЕТ - Одна люстра по центру, две бра у кровати, подсветка в шкаф, подсветка трюмо.
    ДЕКОР ОКНА - двойная штора.

    да, как-то так..спасибо! но бра настолько бесполезная штука для меня и на цветных обоях .. ну такое себе.. и дело 50 -тое
    как и шторы.. мне особо прятаться не от кого, разве что кто-нибудь на сосну какую залезет и в бинокль смотреть будет.. но в моем возрасте уже такие резвые поклонники исключены))) потолок тоже вряд ли будет натяжной)

    Лёгкая птаха светла и прозрачна белой рубахой отца.
  • art-triumph Senior Member
    офлайн
    art-triumph Senior Member

    3049

    10 лет на сайте
    пользователь #1807551

    Профиль
    Написать сообщение

    3049
    # 10 ноября 2025 06:55

    KIV, Очень нравится Ваша позитивная манера общения!
    Удачи Вам во всех начинаниях!

    Vladimir 375296020381
  • 2779750 Neophyte Poster
    офлайн
    2779750 Neophyte Poster

    2

    6 лет на сайте
    пользователь #2779750

    Профиль
    Написать сообщение

    2
    # 13 ноября 2025 10:52

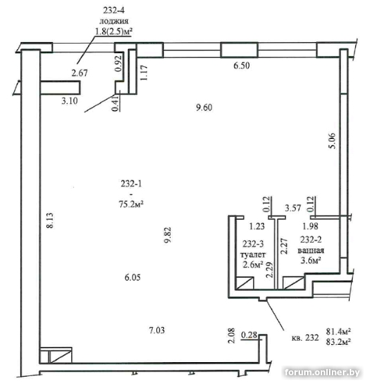
    art-triumph, Добрый день!
    Можете подсказать, пожалуйста, что можно придумать с такой планировкой?
    нужна кухня-гостиная, спальня, детская, место для хранения (либо шкафы, либо гардеробная). Ну и максимально задействовать пространство хотелось бы

  • danila_-_105tc Junior Member
    офлайн
    danila_-_105tc Junior Member

    35

    12 лет на сайте
    пользователь #926045

    Профиль
    Написать сообщение

    35
    # 13 ноября 2025 21:29 Редактировалось danila_-_105tc, 3 раз(а).

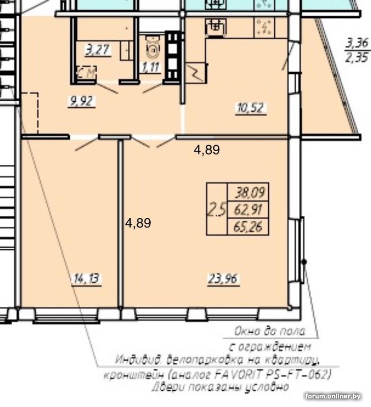
    Добрый вечер!
    Подскажите, пожалуйста, можно ли как-то из большой комнаты 23,96м сделать две отдельные непроходные детские?

  • art-triumph Senior Member
    офлайн
    art-triumph Senior Member

    3049

    10 лет на сайте
    пользователь #1807551

    Профиль
    Написать сообщение

    3049
    # 14 ноября 2025 07:26 Редактировалось art-triumph, 1 раз.

    2779750, Здравствуйте. Надо подумать....

    Добавлено спустя 3 минуты 4 секунды

    danila_-_105tc, Здравствуйте. Вариантов разграничения не так уж много. Рекомендую, попутно, убрать стенку между коридором и кухней. Получится больше пространство и больше света. С электро плитой это возможно.

    Vladimir 375296020381
  • danila_-_105tc Junior Member
    офлайн
    danila_-_105tc Junior Member

    35

    12 лет на сайте
    пользователь #926045

    Профиль
    Написать сообщение

    35
    # 14 ноября 2025 15:25

    Спасибо! А возможно как-то обыграть если не вырезать проем в стене? Дом панельный, плита электрическая

    art-triumph:

    2779750, Здравствуйте. Надо подумать....

    Добавлено спустя 3 минуты 4 секунды

    danila_-_105tc, Здравствуйте. Вариантов разграничения не так уж много. Рекомендую, попутно, убрать стенку между коридором и кухней. Получится больше пространство и больше света. С электро плитой это возможно.

  • art-triumph Senior Member
    офлайн
    art-triumph Senior Member

    3049

    10 лет на сайте
    пользователь #1807551

    Профиль
    Написать сообщение

    3049
    # 15 ноября 2025 06:59 Редактировалось art-triumph, 3 раз(а).
    danila_-_105tc:

    Спасибо! А возможно как-то обыграть если не вырезать проем в стене? Дом панельный, плита электрическая

    art-triumph:

    1) Без второго прохода не получится сделать две изолированных комнаты нормального размера.
    2) Нет никакой проблемы в создании усиления для стены панельного дома.
    3) Если Вы хотите иметь, то что у Вас никогда не было , будь те готовы сделать то, чего никогда не делали!

    Добавлено спустя 1 час 20 минут 49 секунд

    2779750, Квартира большая, но очень странно расположены су и ту. Интерпретировал их конфигурацию, что бы увеличить детскую комнату. В нише детской может стоять шкаф, но кровать то же интересно (получается как домик в комнате).Проем в спальне можно увеличить и поставить сдвижную дверь. Что бы кухня не смотрелась мрачной рекомендую сделать "светящийся потолок".
    Вывод такой: надо делать полноценный дизайн проект, что бы снять все вопросы и уточнить все размеры новой планировки.

    Vladimir 375296020381
  • danila_-_105tc Junior Member
    офлайн
    danila_-_105tc Junior Member

    35

    12 лет на сайте
    пользователь #926045

    Профиль
    Написать сообщение

    35
    # 15 ноября 2025 10:00

    Благодарю за информацию!

  • 2779750 Neophyte Poster
    офлайн
    2779750 Neophyte Poster

    2

    6 лет на сайте
    пользователь #2779750

    Профиль
    Написать сообщение

    2
    # 17 ноября 2025 11:26

    art-triumph, спасибо Вам большое!

  • art-triumph Senior Member
    офлайн
    art-triumph Senior Member

    3049

    10 лет на сайте
    пользователь #1807551

    Профиль
    Написать сообщение

    3049
    # 17 ноября 2025 11:53

    2779750, Всегда пожалуйста!
    Когда понадобится полноценный проект, обращайтесь!

    Vladimir 375296020381
  • mambas Senior Member
    офлайн
    mambas Senior Member

    587

    15 лет на сайте
    пользователь #360847

    Профиль
    Написать сообщение

    587
    # 17 ноября 2025 15:07

    Всем, добрый день. Как тут можно обыграть?

  • art-triumph Senior Member
    офлайн
    art-triumph Senior Member

    3049

    10 лет на сайте
    пользователь #1807551

    Профиль
    Написать сообщение

    3049
    # 17 ноября 2025 15:08

    mambas, Здравствуйте. Какая задача? Сколько проживающих? Хотелки?

    Vladimir 375296020381
  • mambas Senior Member
    офлайн
    mambas Senior Member

    587

    15 лет на сайте
    пользователь #360847

    Профиль
    Написать сообщение

    587
    # 17 ноября 2025 15:33 Редактировалось mambas, 1 раз.
    art-triumph:

    mambas, Здравствуйте. Какая задача? Сколько проживающих? Хотелки?

    сделать двушку. Для дочки. 1-2 человека
    наличие гардеробной большой, большой один сан узел. и один гостевой.

  • 2158057 Neophyte Poster
    офлайн
    2158057 Neophyte Poster

    2

    9 лет на сайте
    пользователь #2158057

    Профиль
    Написать сообщение

    2
    # 17 ноября 2025 19:02

    Добрый день
    Можете подсказать, пожалуйста, что можно придумать с такой планировкой в трехкомнатной квартире
    нужна кухня-гостиная (будет снос стены, как на картинке и между ними полуостров) , спальня, детская для двух детей

    , место для хранения (гардеробная). Ну и максимально задействовать пространство хотелось бы

  • art-triumph Senior Member
    офлайн
    art-triumph Senior Member

    3049

    10 лет на сайте
    пользователь #1807551

    Профиль
    Написать сообщение

    3049
    # 18 ноября 2025 10:36

    mambas, Здравствуйте. Квартира шикарная и большая. Девочке повезло ! )))
    Предлагаю сразу сделать задел на детскую, которую на начальном этапе можно использовать как кабинет.
    Когда есть гнездо, птенцы появляются быстро! )))
    Если очень нужно, то в спальне можно устроить гардеробную, но лично я против, так как кроме потери площади на зону хранения необходимо выделить (потерять) площадь на зону доступа: это мин. 1м к зоне хранения по всей ее длине.

    Vladimir 375296020381
  • art-triumph Senior Member
    офлайн
    art-triumph Senior Member

    3049

    10 лет на сайте
    пользователь #1807551

    Профиль
    Написать сообщение

    3049
    # 20 ноября 2025 12:16

    2158057, Здравствуйте.
    1) Стену между кухней и гостиной полностью не убирал так как плита скорей всего газовая и в таком случае должна быть дверь.
    2) Хранение в шкафах так как для нормальной гардеробной нет места.

    Vladimir 375296020381
  • 2158057 Neophyte Poster
    офлайн
    2158057 Neophyte Poster

    2

    9 лет на сайте
    пользователь #2158057

    Профиль
    Написать сообщение

    2
    # 20 ноября 2025 16:46

    Большое спасибо

  • art-triumph Senior Member
    офлайн
    art-triumph Senior Member

    3049

    10 лет на сайте
    пользователь #1807551

    Профиль
    Написать сообщение

    3049
    # 21 ноября 2025 05:37

    2158057, Приятно, когда не забывают сказать "СПАСИБО" ! )))

    Vladimir 375296020381
  • Pro-ject Senior Member
    офлайн
    Pro-ject Senior Member

    1496

    9 лет на сайте
    пользователь #2097641

    Профиль
    Написать сообщение

    1496
    # 26 ноября 2025 09:49

    [censored by Grace-o]

    Жёлтая карточка была показана пользователю за этот пост модератором Grace-o (26 ноября 2025 14:28)
    Основание: 3.5.19

    Проект "под ключ" с ремонтом и мебелью по цене чертежей в дизайн-студии
  • reversal Junior Member
    офлайн
    reversal Junior Member

    51

    13 лет на сайте
    пользователь #696394

    Профиль
    Написать сообщение

    51
    # 27 ноября 2025 19:12 Редактировалось reversal, 1 раз.

    Добрый день. Уважаемые специалисты ,есть идея заложить дверной проем из прихожей в кухню и там же внутреннее окно и пробить стену из кухни в салон. С позиции Вашего опыта, подскажите пожалуйста, стоит ли это делать. Спасибо.