Ответить
  • 3De Senior MemberАвтор темы
    офлайн
    3De Senior Member Автор темы

    2766

    23 года на сайте
    пользователь #7693

    Профиль
    Написать сообщение

    2766
    # 20 января 2010 16:53

    Поделитесь своим опытом общения с дизайнерами. Впечетления, цены, на что обращать внимания, к кому стоит обращаться, а к кому нет и т.д.
    Давайте обсудим!

    Настало время делать ремонт в квартире (3-х комнатная, 98м2)
    Хотим привлечь к этому процесу дизайнеров.
    Фирм и частников огромное количество, аж голова идет кругом.
    Как выбрать креативных, талантливых и ответственных людей?

    Строительство и ремонт на Барахолке
    Строительные и отделочные материалы
    Инструменты и оборудование для ремонта и строительства
    Двери. Окна. Рамы
    Натяжные потолки
    Напольные покрытия
    Сантехника
    Канализация. Вентиляция. Отопление
    Услуги по отделочным строительным работам и ремонту
    Переезд. Перевозки. Грузчики.

    ...and justice for all...
  • DARK_616 Neophyte Poster
    офлайн
    DARK_616 Neophyte Poster

    25

    17 лет на сайте
    пользователь #152049

    Профиль
    Написать сообщение

    25
    # 12 декабря 2023 09:47
    DARK_616:

    Добрый день.
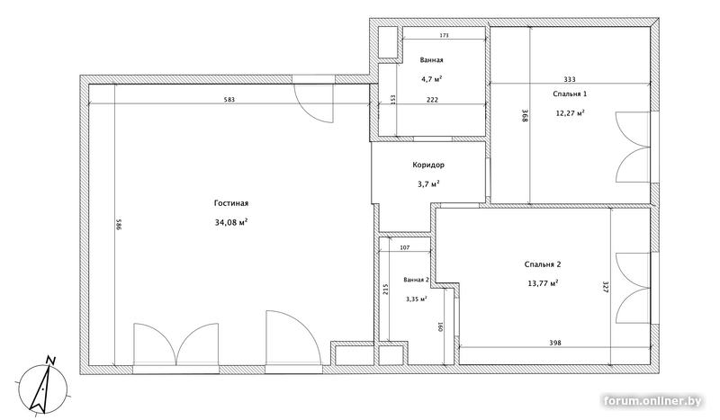
    Покритикуйте пожалуйста, перепланировку.
    Идея в том, чтобы получить три спальни , "гостиную" и нормальные сан.узлы.
    Большой квадрат справа 5м2, планируем под хранение.

    Самый большой вопрос как отзонировать гостиную и сан.узел.

    Товарищи,
    очень нужны ваши советы. :)

  • mr.oddball Senior Member
    офлайн
    mr.oddball Senior Member

    5293

    12 лет на сайте
    пользователь #908890

    Профиль
    Написать сообщение

    5293
    # 12 декабря 2023 11:13 Редактировалось mr.oddball, 7 раз(а).

    DARK_616, вроде бы идея правильная для ваших целей и даже законопослушная). Вот только все зеленые двери открываются в неправильном /даже для идеи/ направлении. )
    Если комнаты для хранения будет достаточно, то может быть на месте ниш "0,43" сделать встроенную стенку с ТВ посередине, диван - напротив у зеленой стенки "10м2"

    Посмотрите, может есть возможность дверь туалета открывать внутрь.
    В большом санузле возможен еще один унитаз, напротив умывальника. Что немаловажно для 3 спален. Место для стиралки есть.
    Обязательно сразу разведите по комнатам воздуховоды приточной вентиляции. Сначала можно и без вентилятора и нагрева, может и не понадобятся вообще. Если что, то дооснастите позднее.

    Не умеешь петь - не пей!
  • Pro-ject Senior Member
    офлайн
    Pro-ject Senior Member

    1496

    9 лет на сайте
    пользователь #2097641

    Профиль
    Написать сообщение

    1496
    # 12 декабря 2023 11:48

    DARK_616, планировка изначально "никакая". ничего путного не получится.

    .
    в зоне кухня-комната-СУ месиво из дверей. нормально не пройти будет. в данном случае уместнее объединить СУ.
    дверь в гостиную из прихожей - зачем вообще? кладовка тоже сомнительно. лучше не уменьшать комнаты, а в каждой поставить по системе хранения. в комнате рядом с кухней тоже можно разместить шкаф - обозначено голубым

    Проект "под ключ" с ремонтом и мебелью по цене чертежей в дизайн-студии
  • DARK_616 Neophyte Poster
    офлайн
    DARK_616 Neophyte Poster

    25

    17 лет на сайте
    пользователь #152049

    Профиль
    Написать сообщение

    25
    # 12 декабря 2023 12:10 Редактировалось DARK_616, 1 раз.
    mr.oddball:

    DARK_616, вроде бы идея правильная для ваших целей и даже законопослушная). Вот только все зеленые двери открываются в неправильном /даже для идеи/ направлении. )
    Если комнаты для хранения будет достаточно, то может быть на месте ниш "0,43" сделать встроенную стенку с ТВ посередине, диван - напротив у зеленой стенки "10м2"

    Спасибо.
    До направления дверей еще не дошли. Обозначал место установки.

    По поводу ТВ и дивана.
    Вижу два варианта. 1-й. Как вы и предложили.
    2-й вариант. параллельно встроенным шкафам.

    Но в 1-м варианте смущает расстояние между диваном и ТВ. порядка 3-х метров.
    2-й выглядит (с моей точки зрения) функциональней, но смущает участок, где сходятся все двери.

    Дверь в большой СУ "просится" на стену, к-я смотрит в коридор-гостиную. Но не хочется размещать вход в СУ явно в гостиной.

    Добавлено спустя 9 минут 2 секунды

    Pro-ject:

    DARK_616, планировка изначально "никакая". ничего путного не получится.

    .
    в зоне кухня-комната-СУ месиво из дверей. нормально не пройти будет. в данном случае уместнее объединить СУ.
    дверь в гостиную из прихожей - зачем вообще? кладовка тоже сомнительно. лучше не уменьшать комнаты, а в каждой поставить по системе хранения. в комнате рядом с кухней тоже можно разместить шкаф - обозначено голубым

    Спасибо.
    По поводу "месиво из дверей" аналогичные сомнения.

    Но СУ однозначно нужны раздельные.
    Квартира на 4-х.
    2-е разнополых детей.
    По поводу кладовки. Комнаты , которые прилегают к кладовке, детские. И изначальная площадь избыточна. И вот появилась мысль использовать "лишнюю площадь" под хранение.

    дверь в гостиную из прихожей. Отделить грязную зону. Но тоже смущают размеры

  • Pro-ject Senior Member
    офлайн
    Pro-ject Senior Member

    1496

    9 лет на сайте
    пользователь #2097641

    Профиль
    Написать сообщение

    1496
    # 12 декабря 2023 12:44
    DARK_616:

    в 1-м варианте смущает расстояние между диваном и ТВ. порядка 3-х метров.

    Проект "под ключ" с ремонтом и мебелью по цене чертежей в дизайн-студии
  • mr.oddball Senior Member
    офлайн
    mr.oddball Senior Member

    5293

    12 лет на сайте
    пользователь #908890

    Профиль
    Написать сообщение

    5293
    # 12 декабря 2023 12:51 Редактировалось mr.oddball, 1 раз.

    DARK_616, для себя при тех же условиях

    Ниша для шкафа в спальне соблазнительна, но урезает гостиную. Без ниши она имеет прямоугольную форму. Так что обошелся бы шкафом.
    Прямоугольная арка на входе в кухню/санузлы предпочтительна, она завершает пространство. Без нее этот проход будет выглядеть хуже.
    ИМХО

    Что за ниша там, где французский балкон? Она идет через все этажи? Выходит во двор или на улицу? Сколько этажей в доме и какой этаж ваш?

    Решение кладовки возможно такое

    Не умеешь петь - не пей!
  • DARK_616 Neophyte Poster
    офлайн
    DARK_616 Neophyte Poster

    25

    17 лет на сайте
    пользователь #152049

    Профиль
    Написать сообщение

    25
    # 12 декабря 2023 13:05
    mr.oddball:

    DARK_616, для себя при тех же условиях

    Ниша для шкафа в спальне соблазнительна, но урезает гостиную. Без ниши она имеет прямоугольную форму. Так что обошелся бы шкафом.
    Прямоугольная арка на входе в кухню/санузлы предпочтительна, она завершает пространство. Без нее этот проход будет выглядеть хуже.
    ИМХО

    Что за ниша там, где французский балкон? Она идет через все этажи? Выходит во двор или на улицу? Сколько этажей в доме и какой этаж ваш?

    Решение кладовки возможно такое

    9этаж из 9. кирпич.
    не понял о какой нише идет речь?

    Если это, то это фактически балконная дверь в никуда. Имитация балкона.
    Смотрит на улицу. Но достаточно тихую

  • mr.oddball Senior Member
    офлайн
    mr.oddball Senior Member

    5293

    12 лет на сайте
    пользователь #908890

    Профиль
    Написать сообщение

    5293
    # 12 декабря 2023 13:13

    DARK_616, я прикидывал вариант размещения приточной вентиляции на стене слева от французского балкона. Если самодельной, то выступающей не более чем на 10 см от стены и аккуратно закрытой панелью. Но если выходит на улицу, то вдруг выплывут претензии.
    Техэтаж есть? Может там можно пробросить приточную. Она желательна, чтобы в теплом кирпичном доме иметь свежий воздух, не переохлаждая зимой оконные рамы и откосы.

    Не умеешь петь - не пей!
  • DARK_616 Neophyte Poster
    офлайн
    DARK_616 Neophyte Poster

    25

    17 лет на сайте
    пользователь #152049

    Профиль
    Написать сообщение

    25
    # 12 декабря 2023 13:29
    mr.oddball:

    DARK_616, я прикидывал вариант размещения приточной вентиляции на стене слева от французского балкона. Если самодельной, то выступающей не более чем на 10 см от стены и аккуратно закрытой панелью. Но если выходит на улицу, то вдруг выплывут претензии.
    Техэтаж есть? Может там можно пробросить приточную. Она желательна, чтобы в теплом кирпичном доме иметь свежий воздух, не переохлаждая зимой оконные рамы и откосы.

    Речь о бризерах?
    В этом доме я думаю никто и не заметит появление на фасаде вентиляционных отверстий.

    По вентиляции планировал несколько этапов.
    Обязательно воздуховод в гостиную , т.к.там нет окон.
    В комнатах поставить оконные клапаны, но не уверен. Сейчас жду датчик C02. чтобы проверить насколько рабочее решение, по сравнению с "глухими " окнами.
    Поставить в каждой комнате по бризеру боюсь не потяну по бюджету.

  • mr.oddball Senior Member
    офлайн
    mr.oddball Senior Member

    5293

    12 лет на сайте
    пользователь #908890

    Профиль
    Написать сообщение

    5293
    # 12 декабря 2023 15:15

    DARK_616,ставить что-то в окна - последнее дело. И окна дырявые, и польза сомнительна. Надо что-то с нормальной фильтрацией воздуха. Но это только ИМХО, возможно и ошибочному.

    Какая высота потолков и какие будут потолки?
    Как (на каких стенах) лежат плиты перекрытия? Что за плиты?
    Есть техэтаж?
    Вопросы к тому, вдруг возможна разводка воздуха с адекватными затратами.

    Не умеешь петь - не пей!
  • mr.oddball Senior Member
    офлайн
    mr.oddball Senior Member

    5293

    12 лет на сайте
    пользователь #908890

    Профиль
    Написать сообщение

    5293
    # 13 декабря 2023 15:43
    DARK_616:

    Поставить в каждой комнате по бризеру боюсь не потяну по бюджету.

    В посте выше я написал о всяких щелях в окнах.
    Но бризер не лучше. Хотя бы по той причине, что он выдает сквозняк. Правильный приток - это рассеивание приточного воздуха под потолком желательно на большой площади (для этого и нужны диффузоры, а не примитивные решетки), где он смешивается с теплым воздухом и оседает вниз согретым и освежившимся. Это и исключает сквозняк, и использует тепло подпотолочного воздуха, где температура выше, чем внизу, и обычно он греет пол соседа.
    ИМХО

    Не умеешь петь - не пей!
  • art-triumph Senior Member
    офлайн
    art-triumph Senior Member

    3057

    10 лет на сайте
    пользователь #1807551

    Профиль
    Написать сообщение

    3057
    # 13 декабря 2023 19:38

    К юбилею 60 ЛЕТ "ИНТЕГРАЛ" завершен интерьер кафе по моему проекту.
    Если кому то интересно, то можете посмотреть здесь: https://forum.onliner.by/viewtopic.php?t=16629180&start=2060
    А если понравится, то можете заказать столик )))

    Vladimir 375296020381
  • art-cube Senior Member
    офлайн
    art-cube Senior Member

    2004

    18 лет на сайте
    пользователь #104979

    Профиль
    Написать сообщение

    2004
    # 16 декабря 2023 20:39
    art-triumph:

    К юбилею 60 ЛЕТ "ИНТЕГРАЛ" завершен интерьер кафе по моему проекту.
    Если кому то интересно, то можете посмотреть здесь: https://forum.onliner.by/viewtopic.php?t=16629180&start=2060
    А если понравится, то можете заказать столик )))

    По ссылке вижу лавочку - интересная. Где кафе?

  • art-triumph Senior Member
    офлайн
    art-triumph Senior Member

    3057

    10 лет на сайте
    пользователь #1807551

    Профиль
    Написать сообщение

    3057
    # 17 декабря 2023 08:58 Редактировалось art-triumph, 1 раз.

    art-cube, Кафе сразу за лавочкой. Просто фотографий много, пришлось запихнуть под спойлер. ))

    Vladimir 375296020381
  • art-triumph Senior Member
    офлайн
    art-triumph Senior Member

    3057

    10 лет на сайте
    пользователь #1807551

    Профиль
    Написать сообщение

    3057
    # 17 декабря 2023 11:32 Редактировалось art-triumph, 2 раз(а).

    DARK_616, Здравствуйте. При решении Вашей планировки без аномалий не обойтись.
    В Вашем решении темная гостиная (без дневного света). Предлагаю рассмотреть альтернативное решение: без дневного света оставить кровать. Все равно мы там только спим ))) Но общую комнату сделать максимально просторной, светлой и много функциональной. При желании, ее можно дополнить дополнительным рабочим местом.
    Кроме этого предлагаю поменять местами туалет и ванную. За ванной легко устроить канализацию, и приэтом, су становиться значительно больше.
    Судя по плану, у Вас газовая плита - значит обязательно дверь. Но может быть сдвижная.
    mr.oddball поможет Вам сделать вентиляцию к кровати ))))

    Vladimir 375296020381
  • 3761425 Neophyte Poster
    офлайн
    3761425 Neophyte Poster

    2

    2 года на сайте
    пользователь #3761425

    Профиль
    Написать сообщение

    2
    # 17 декабря 2023 21:02

    привет, подскажите пожалуйста расстановку для такой квартиры
    для одного взрослого и подростка
    в спальне 2 должна поместиться кровать с матрасом 200х200 ( уже есть)
    я думаю убрать стену между ванной 2 и спальней 2, так как нам хватает одного санузла и сделать там шкаф
    гостиная совмещенная с кухней, кухня угловая в правом нижнем углу
    из гостиной есть выход на балкон там где две распашные

  • art-triumph Senior Member
    офлайн
    art-triumph Senior Member

    3057

    10 лет на сайте
    пользователь #1807551

    Профиль
    Написать сообщение

    3057
    # 18 декабря 2023 07:12

    3761425, Здравствуйте. Оставлять только один совмещенный су на двоих - решение очень спорное, так как двое легко могут превратиться в четверо, а это уже создаст очередь на посещение ))). Я бы посоветовал добавить хотя бы туалет.
    Пока, из текущей постановки задачи, могу предложить такое решение:

    Подростки очень быстро взрослеют, по этому предлагаю сразу ставить кровать.))

    Vladimir 375296020381
  • DARK_616 Neophyte Poster
    офлайн
    DARK_616 Neophyte Poster

    25

    17 лет на сайте
    пользователь #152049

    Профиль
    Написать сообщение

    25
    # 18 декабря 2023 14:13
    art-triumph:

    DARK_616, Здравствуйте. При решении Вашей планировки без аномалий не обойтись.
    В Вашем решении темная гостиная (без дневного света). Предлагаю рассмотреть альтернативное решение: без дневного света оставить кровать. Все равно мы там только спим ))) Но общую комнату сделать максимально просторной, светлой и много функциональной. При желании, ее можно дополнить дополнительным рабочим местом.
    Кроме этого предлагаю поменять местами туалет и ванную. За ванной легко устроить канализацию, и приэтом, су становиться значительно больше.
    Судя по плану, у Вас газовая плита - значит обязательно дверь. Но может быть сдвижная.
    mr.oddball поможет Вам сделать вентиляцию к кровати ))))

    Спасибо за Ваш вариант. Вариант с таким размещением спальни приходил в голову. Но смутил получаемый размер спален.

    От газа планируем отказаться.

  • 3761425 Neophyte Poster
    офлайн
    3761425 Neophyte Poster

    2

    2 года на сайте
    пользователь #3761425

    Профиль
    Написать сообщение

    2
    # 18 декабря 2023 18:43
    art-triumph:

    из текущей постановки задачи, могу предложить такое решение:

    Огромное спасибо, очень понравилась идея с островком на кухне и шкафом для прихожей!

    art-triumph:

    Подростки очень быстро взрослеют, по этому предлагаю сразу ставить кровать.))

    да пожалуй это тоже стоит учитывать )))

  • art-triumph Senior Member
    офлайн
    art-triumph Senior Member

    3057

    10 лет на сайте
    пользователь #1807551

    Профиль
    Написать сообщение

    3057
    # 18 декабря 2023 19:11

    DARK_616, В Вашем случае, как ни крути - "семь шапок" получается. На мой взгляд, лучше пожертвовать спальней, чем общим (многофункциональным) пространством.
    Что же до детских, то по норме достаточно 9м2, а у Вас больше 11 получается.
    12м2 уже спальня для двух взрослых.

    Vladimir 375296020381