Ответить
  • 3De Senior MemberАвтор темы
    офлайн
    3De Senior Member Автор темы

    2768

    23 года на сайте
    пользователь #7693

    Профиль
    Написать сообщение

    2768
    # 20 января 2010 16:53

    Поделитесь своим опытом общения с дизайнерами. Впечетления, цены, на что обращать внимания, к кому стоит обращаться, а к кому нет и т.д.
    Давайте обсудим!

    Настало время делать ремонт в квартире (3-х комнатная, 98м2)
    Хотим привлечь к этому процесу дизайнеров.
    Фирм и частников огромное количество, аж голова идет кругом.
    Как выбрать креативных, талантливых и ответственных людей?

    Строительство и ремонт на Барахолке
    Строительные и отделочные материалы
    Инструменты и оборудование для ремонта и строительства
    Двери. Окна. Рамы
    Натяжные потолки
    Напольные покрытия
    Сантехника
    Канализация. Вентиляция. Отопление
    Услуги по отделочным строительным работам и ремонту
    Переезд. Перевозки. Грузчики.

    ...and justice for all...
  • mr.oddball Senior Member
    офлайн
    mr.oddball Senior Member

    5298

    12 лет на сайте
    пользователь #908890

    Профиль
    Написать сообщение

    5298
    # 13 октября 2023 16:42
    qwertyyy:

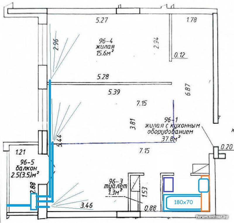
    https://realt.by/sale-flats/object/3164187/

    Вот она, для наглядности

    С переносом вроде бы как нормально выглядит.

    Главное - без кровати. С ней будет плохо в любом случае.

    Не умеешь петь - не пей!
  • Varin Senior Member
    офлайн
    Varin Senior Member

    3798

    19 лет на сайте
    пользователь #91546

    Профиль
    Написать сообщение

    3798
    # 13 октября 2023 17:07

    странное пустое место у окна. И высоко телевизор.
    Надо продумать что делать с лоджией и вот этим пустым пятачком

    [url=http://forum.onliner.by/viewtopic.php?p=7364113]Minolta Dynax Sony Alpha TEAM!!![/url]
  • mr.oddball Senior Member
    офлайн
    mr.oddball Senior Member

    5298

    12 лет на сайте
    пользователь #908890

    Профиль
    Написать сообщение

    5298
    # 14 октября 2023 08:56 Редактировалось mr.oddball, 1 раз.
    Varin:

    Надо продумать что делать с лоджией и вот этим пустым пятачком

    Так и норовите захламить)))

    Наверное, это максимум, учитывая, что две створки окна открываются во всю высоту.

    Не умеешь петь - не пей!
  • Pro-ject Senior Member
    офлайн
    Pro-ject Senior Member

    1496

    9 лет на сайте
    пользователь #2097641

    Профиль
    Написать сообщение

    1496
    # 14 октября 2023 12:44

    Piombo, благодарю

    Varin:

    странное пустое место у окна. И высоко телевизор

    это называется - "сэкономь на дизайнере, убей квартиру". хотя её изначально делали под продажу -
    поэтому особо и не парились. хотя получилось на порядок круче арт-триумфовских бабушатников

    Проект "под ключ" с ремонтом и мебелью по цене чертежей в дизайн-студии
  • 3725199 Neophyte Poster
    офлайн
    3725199 Neophyte Poster

    9

    2 года на сайте
    пользователь #3725199

    Профиль
    Написать сообщение

    9
    # 14 октября 2023 21:55
    Pro-ject:

    3725199:

    Здравствуйте. Подскажите пожалуйста, как лучше расставить мебель в 2ой квартире

    3725199, не уверен, что расширение СУ согласуют, но тогда можно будет поставить нормальную ванну на 180 см.
    гостиная без естественного света. как-то так :

    .
    это без претензий. можно не критиковать

    Pro-ject большое спасибо , что откликнулись и предложили свой вариант. Есть над чем подумать.

  • Pro-ject Senior Member
    офлайн
    Pro-ject Senior Member

    1496

    9 лет на сайте
    пользователь #2097641

    Профиль
    Написать сообщение

    1496
    # 15 октября 2023 10:18

    3725199, пожалуйста. если понадобится что-то по схемам, подбору материалов, ремонту или кухне-мебели - обращайтесь

    Проект "под ключ" с ремонтом и мебелью по цене чертежей в дизайн-студии
  • mr.oddball Senior Member
    офлайн
    mr.oddball Senior Member

    5298

    12 лет на сайте
    пользователь #908890

    Профиль
    Написать сообщение

    5298
    # 15 октября 2023 19:15 Редактировалось mr.oddball, 3 раз(а).

    3725199, Вы же вначале хотели вроде бы только расставить мебель. А сейчас готовы к перепланировке?

    Я как обычно хоть и не спец, по личному опыту посоветую приточную вентиляцию

    Вы получите свежий воздух без промерзания окон зимой и уличного шума.
    ИМХО, лучше завести с балкона три (или два - без кухни) отдельных канала. Дополнительные затраты на сверлении лишних отверстий дадут ряд плюсов, включая свободный доступ к регулирующим клапанам на балконе.
    На балконе для начала только фильтр и распределитель воздуха на несколько каналов. Если дом высотный, а этаж низкий, то возможно обойдетесь без вентилятора и соответствующего шума.

    Не умеешь петь - не пей!
  • 3725199 Neophyte Poster
    офлайн
    3725199 Neophyte Poster

    9

    2 года на сайте
    пользователь #3725199

    Профиль
    Написать сообщение

    9
    # 15 октября 2023 21:25
    mr.oddball:

    3725199, Вы же вначале хотели вроде бы только расставить мебель. А сейчас готовы к перепланировке?

    Я как обычно хоть и не спец, по личному опыту посоветую приточную вентиляцию

    Вы получите свежий воздух без промерзания окон зимой и уличного шума.
    ИМХО, лучше завести с балкона три (или два - без кухни) отдельных канала. Дополнительные затраты на сверлении лишних отверстий дадут ряд плюсов, включая свободный доступ к регулирующим клапанам на балконе.
    На балконе для начала только фильтр и распределитель воздуха на несколько каналов. Если дом высотный, а этаж низкий, то возможно обойдетесь без вентилятора и соответствующего шума.

    Добрый вечер. Так и есть я просила расстановку мебели, т.к.стены стоят, но специалист Pro-ject предложил свой вариант планировки. Сейчас от расстановки мебели будет понятно, как разводить сантехнику и электрику. По поводу вентиляции пока не думала. Если кто то предложит ещё какие ни будь идеи буду рада))

  • mr.oddball Senior Member
    офлайн
    mr.oddball Senior Member

    5298

    12 лет на сайте
    пользователь #908890

    Профиль
    Написать сообщение

    5298
    # 15 октября 2023 21:59
    3725199:

    По поводу вентиляции пока не думала.

    Надеюсь, отверстия с балкона я прорубил не через монолитную железобетонную стену, сложно понять по этому чертежу. Ваш дом каркасный? Маловысотный или у Вас этаж высокий?

    Добавлено спустя 46 минут 45 секунд

    3725199, если не планируете капитальных переделок,

    Смеситель ванны встроен в столешницу (коричневая). У нас так, жена довольна, так как всё нужное под рукой на столешнице.
    ИМХО, но проектантам нужно оторвать руки за размещение двери, как сделали они. Возможно проектировали под себя сторонники душевых кабин.

    Не умеешь петь - не пей!
  • Member
    офлайн
    Member

    228

    8 лет на сайте
    пользователь #2407339

    Профиль
    Написать сообщение

    228
    # 16 октября 2023 09:44 Редактировалось , 1 раз.
    3725199:

    специалист Pro-ject предложил свой вариант планировки

    Вы с этим вариантом сходите в ветку по планировкам, потому что специалист совершенно не заморачивается с какими-то строительными нормами.

  • Pro-ject Senior Member
    офлайн
    Pro-ject Senior Member

    1496

    9 лет на сайте
    пользователь #2097641

    Профиль
    Написать сообщение

    1496
    # 17 октября 2023 11:39

    , во-первых, я всегда предлагаю варианты с учётом всех имеющихся правил
    во-вторых, если предлагаю что-то, что значительно улучшает функционал, но не подлежит узакониванию
    (как в данном конкретном случае), то обязательно об этом предупреждаю...

    Проект "под ключ" с ремонтом и мебелью по цене чертежей в дизайн-студии
  • хохотушка17 Senior Member
    офлайн
    хохотушка17 Senior Member

    33780

    13 лет на сайте
    пользователь #705795

    Профиль
    Написать сообщение

    33780
    # 19 октября 2023 12:50
    Pro-ject:

    Piombo, благодарю

    Varin:

    странное пустое место у окна. И высоко телевизор

    это называется - "сэкономь на дизайнере, убей квартиру". хотя её изначально делали под продажу -
    поэтому особо и не парились. хотя получилось на порядок круче арт-триумфовских бабушатников

    В этом плане постоянно удивляют люди, которые покупают новостройку для ее последующей продажи, заказывают дизайн-проект с сопровождением дизайнера, а потом меняют всю отделку и мебель на максимально бюджетную.
    Т.е. заложен в проекте серо-бежевый паркет (далеко не самый дорогой)- меняем его на похожий по цвету ламинат. По проекту стоит хороший качественный диван среднего ценового уровня синего цвета? Купим синий диван в Ами! И ты ды...
    Вопрос: а напаркуа вам нужен был дизайн-проект, да еще и сопровождение? Это же все стоит денег, которые логичней было бы пустить на тот же интерьер, а не экономить даже на мелочах. Раз вы и так все знаете что и как лучше, то может стоило взять просто картинку из инете с понравившимся проектом и подобрать все то же, что вы подобрали из разряда "дешево и сердито"?
    Ответочка от некоторых дизайнеров- заложить в проект те материалы, которые уже сняты с производства/исказить на визуализации размеры предметов интерьера/в спецификации указать номера цветов, которые не соответствуют рендерам (сильно не соответствуют). Обычно этим грешат те дизайнеры, которые делают только красивые картинки и никак не сопровождают проект. От греха подальше, видимо.

    Ничто так не укрепляет веру в людей как предоплата.
  • mr.oddball Senior Member
    офлайн
    mr.oddball Senior Member

    5298

    12 лет на сайте
    пользователь #908890

    Профиль
    Написать сообщение

    5298
    # 19 октября 2023 13:16
    хохотушка17:

    /исказить на визуализации размеры предметов интерьера

    Вот это вижу сплошь и рядом. А потом Заказчик сбивает бока об углы в своей "просторной" квартире.

    Не умеешь петь - не пей!
  • хохотушка17 Senior Member
    офлайн
    хохотушка17 Senior Member

    33780

    13 лет на сайте
    пользователь #705795

    Профиль
    Написать сообщение

    33780
    # 19 октября 2023 13:24

    mr.oddball, и это тоже.
    Но мне пока попадались случаи не с планировкой, а с отделкой. Когда указан артикул обоев в город диаметром примерно в 2 см, а на визуализации- это обои с кругами диаметром около 50 см... И к тому же эти обои сняты с производства. Хотя сам проект довольно свежий.
    Или кровать с тумбочками по бокам, которые в своих реальных размерах не влезут в помещение спальни. Даже если их поставить вплотную друг к другу.

    Ничто так не укрепляет веру в людей как предоплата.
  • DenSui Senior Member
    офлайн
    DenSui Senior Member

    785

    19 лет на сайте
    пользователь #79120

    Профиль
    Написать сообщение

    785
    # 19 октября 2023 19:59

    [

    qwertyyy:

    Всем привет. Есть идеи как обустроить квартиру?) Нужно вместить кровать, как спальное место и диван для просмотра ТВ

    А какая высота потолков?

  • Pro-ject Senior Member
    офлайн
    Pro-ject Senior Member

    1496

    9 лет на сайте
    пользователь #2097641

    Профиль
    Написать сообщение

    1496
    # 20 октября 2023 15:58

    qwertyyy, ещё вот так всё можно очень эргономично по периметру расположить -

    .
    кровать опять же трансформер. обеденный стол - у дивана или в зоне кухни. вместо дополнительного шкафа
    у санузла можно поставить тумбу с аквариумом. напротив дивана под телевизором - электрокамин

    а по оформлению как-то так -

    Проект "под ключ" с ремонтом и мебелью по цене чертежей в дизайн-студии
  • mr.oddball Senior Member
    офлайн
    mr.oddball Senior Member

    5298

    12 лет на сайте
    пользователь #908890

    Профиль
    Написать сообщение

    5298
    # 20 октября 2023 16:23
    Pro-ject:

    эргономично

    Не умеешь петь - не пей!
  • vitali Senior Member
    офлайн
    vitali Senior Member

    2998

    22 года на сайте
    пользователь #12231

    Профиль
    Написать сообщение

    2998
    # 20 октября 2023 17:39 Редактировалось vitali, 3 раз(а).
    Pro-ject:

    qwertyyy, ещё вот так всё можно очень эргономично по периметру расположить -

    .
    кровать опять же трансформер. обеденный стол - у дивана или в зоне кухни. вместо дополнительного шкафа
    у санузла можно поставить тумбу с аквариумом. напротив дивана под телевизором - электрокамин

    а по оформлению как-то так -

    идеально, только кровать в студии я считаю лишней, но тут уж кому что надо, по мне так лучше бы там что-то вроде двух удобных стульев и кофейный столик у окна. Или обеденный стол со стульями. А может рабочее место

  • Pro-ject Senior Member
    офлайн
    Pro-ject Senior Member

    1496

    9 лет на сайте
    пользователь #2097641

    Профиль
    Написать сообщение

    1496
    # 20 октября 2023 17:43

    mr.oddball, простите, а в чём проблема?

    Проект "под ключ" с ремонтом и мебелью по цене чертежей в дизайн-студии
  • mr.oddball Senior Member
    офлайн
    mr.oddball Senior Member

    5298

    12 лет на сайте
    пользователь #908890

    Профиль
    Написать сообщение

    5298
    # 20 октября 2023 17:49
    Pro-ject:

    mr.oddball, простите, а в чём проблема?

    Наверное, в разном понимании эргономики некоторых зон.

    Не умеешь петь - не пей!