Ответить
  • 3De Senior MemberАвтор темы
    офлайн
    3De Senior Member Автор темы

    2766

    23 года на сайте
    пользователь #7693

    Профиль
    Написать сообщение

    2766
    # 20 января 2010 16:53

    Поделитесь своим опытом общения с дизайнерами. Впечетления, цены, на что обращать внимания, к кому стоит обращаться, а к кому нет и т.д.
    Давайте обсудим!

    Настало время делать ремонт в квартире (3-х комнатная, 98м2)
    Хотим привлечь к этому процесу дизайнеров.
    Фирм и частников огромное количество, аж голова идет кругом.
    Как выбрать креативных, талантливых и ответственных людей?

    Строительство и ремонт на Барахолке
    Строительные и отделочные материалы
    Инструменты и оборудование для ремонта и строительства
    Двери. Окна. Рамы
    Натяжные потолки
    Напольные покрытия
    Сантехника
    Канализация. Вентиляция. Отопление
    Услуги по отделочным строительным работам и ремонту
    Переезд. Перевозки. Грузчики.

    ...and justice for all...
  • Member
    офлайн
    Member

    228

    8 лет на сайте
    пользователь #2407339

    Профиль
    Написать сообщение

    228
    # 9 сентября 2023 13:51 Редактировалось , 2 раз(а).
    Zинночка:

    Мне ближе, где кухня у окна и спальня напротив входа

    С размерами было бы проще, но вообще не похоже, что в тот дальний закуток реалистично вписать и диван и кухню и обеденный стол и проход на балкон.
    Я бы попробовал в среднем варианте кухню повернуть и нечто вроде полуострова использовать как стол, потому что как нарисовано тоже не очень похоже что вписывается.

  • Member
    офлайн
    Member

    228

    8 лет на сайте
    пользователь #2407339

    Профиль
    Написать сообщение

    228
    # 9 сентября 2023 21:36 Редактировалось , 3 раз(а).
    Pro-ject:

    .
    шкаф идёт одним целым с системой кухни. духовка-микроволновка в столбике рядом с ним.
    во взрослой спальне вместо тумбочек система хранения переносится в углублённую спинку кровати с полками
    в средней комнате можно сделать кабинет, игровую, гостевую

    В реальном масштабе с 60-ми шкафами и 160-й кроватью это выглядит примерно так

    Подземелье Минотавра.

    И красные диванчики у вас по полтора метра длиной, а на кухне проблема "раковины на виду" усугублена до невозможности.

    В таких небольших квартирах без проходной кухни-гостиной одна дичь получается.

  • hdnn Junior Member
    офлайн
    hdnn Junior Member

    61

    16 лет на сайте
    пользователь #213665

    Профиль
    Написать сообщение

    61
    # 10 сентября 2023 14:24 Редактировалось hdnn, 1 раз.

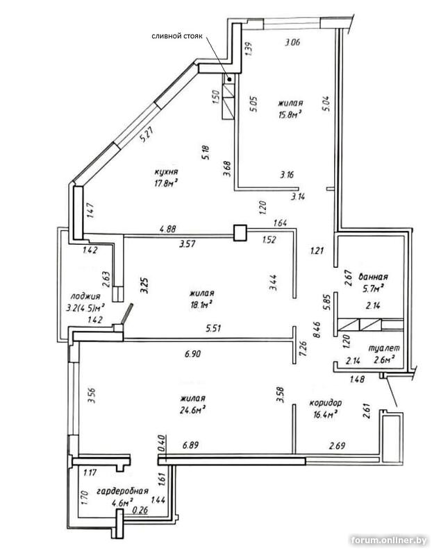
    Здравствуйте. Можете посоветовать, как быть с напольным покрытием на такой площади(110 кв)? Один человек предложил кварцвинил одним полотном по всей квартире, но я боюсь, что это не практичный вариант в "грязной" зоне прихожей и вскоре начнут появляться царапины. Обоснованы ли мои страхи? Сам думаю о керамограните на входе и хорошем ламинате в помещениях. Но не знаю как быть с коридором - отдельный контур ламината или тоже керамогранит или как? Что бы вы посоветовали? Тёплые полы использовать не планируем.

    И отдельно прошу совета по расстановке на кухне. По бумагам она большая, но на деле зона готовки получается +\- как в моей хрущёвке с кухней на 5 кв). При том, что в левом углу хочется сделать уголок, в котором можно длительное время работать с ноутбуком, т.е. поставить туда стол и диванчик\скамью

  • Pro-ject Senior Member
    офлайн
    Pro-ject Senior Member

    1496

    9 лет на сайте
    пользователь #2097641

    Профиль
    Написать сообщение

    1496
    # 10 сентября 2023 19:09 Редактировалось Pro-ject, 2 раз(а).

    hdnn, на пол везде керамо-гранит. ламинат и кварц-винил (переработанный линолеум) - разводка и дрянь.
    отличный керамо-гранит сейчас можно взять за 50-60 руб квадрат. при необходимости порезать полосами
    разной ширины и делать кладку со смещением по горизонтали или вертикали

    компьютерное место в зоне кухни. стол вдоль окна. холодильник-раковину-духовку можно менять местами.
    в большом СУ ванна. во взрослой спальне кровать-трансформер. в детской комнате турник -

    .
    компьютерное место в аппендиксе гостиной. на кухне слева от входа столбик с духовкой-микроволновкой.
    стол перпендикулярно окну. во взрослой спальне напротив дивана электро-камин под телевизором.
    в большом СУ - полноценный душ -

    .
    если нужна полноценная трёшка, можно кухню-гостиную сделать в комнате 15,8 квадратов -

    .
    а по оформлению типа такого -

    Проект "под ключ" с ремонтом и мебелью по цене чертежей в дизайн-студии
  • Member
    офлайн
    Member

    228

    8 лет на сайте
    пользователь #2407339

    Профиль
    Написать сообщение

    228
    # 10 сентября 2023 20:02 Редактировалось , 1 раз.
    Pro-ject:

    на пол везде керамо-гранит

    Потом ходить в обуви или зарабатывать потиху шпоры.

    Я как-то не догонял из-за чего сыр-бор в ветке, теперь понятно.

  • hdnn Junior Member
    офлайн
    hdnn Junior Member

    61

    16 лет на сайте
    пользователь #213665

    Профиль
    Написать сообщение

    61
    # 10 сентября 2023 20:31
    Pro-ject:

    hdnn, на пол везде керамо-гранит.

    "везде" == "в коридоре", правильно же я Вас понял?

    Спасибо за такую проработку вариантов! Но у нас нет желания объединять кухню со спальней. Меньшая комната - рёбёнку, средняя - наша, а зал для работы и отдыха. А на кухне с ноутом - рабочее место жены(чтобы не мешать друг другу в одном помещении) и не в спальне, чтобы не мешать отдыхать. Я себе нарисовал это как-то так:

    Но кухня самому не нравится - мало рабочей зоны и двумя пеналами я перекрываю доступ к сливному стояку

  • Pro-ject Senior Member
    офлайн
    Pro-ject Senior Member

    1496

    9 лет на сайте
    пользователь #2097641

    Профиль
    Написать сообщение

    1496
    # 10 сентября 2023 20:46 Редактировалось Pro-ject, 1 раз.
    VР:

    Потом ходить в обуви или зарабатывать потиху шпоры.

    я с 2007 года везде кладу керамо-паркет и с 2012 + керамо-гранит. ещё никто не жаловался. а вот когда начинают миксовать с ламинатом - потом рыдают. я дома хожу исключительно в тапках и снимаю их только перед ковром. мне противно ходить по полу босиком - ИМХО так ходят колхозники и потом тащат всю грязь в кровать

    hdnn:

    "везде" == "в коридоре", правильно же я Вас понял?

    везде - значит везде. начиная с прихожей и заканчивая балконами. один раз положил и забыл. идеальный вариант. нет ничего лучше в плане уборки и эксплуатации. тем более что сейчас выпускают огромное количество самых разнообразных вариантов и стоимость упала в 4-5 раз по сравнению с начальной. а технологии постоянно совершенствуются. альтернативой может выступить наливной пол, но это слишком сложно и менее стойко в эксплуатации

    hdnn:

    Я себе нарисовал это как-то так:

    вариант дилетанта. не продуманный и непрактичный

    Проект "под ключ" с ремонтом и мебелью по цене чертежей в дизайн-студии
  • Member
    офлайн
    Member

    228

    8 лет на сайте
    пользователь #2407339

    Профиль
    Написать сообщение

    228
    # 10 сентября 2023 20:54 Редактировалось , 3 раз(а).
    Pro-ject:

    везде кладу керамо-паркет и с 2012 + керамо-гранит. ещё никто не жаловался

    Это вариант для квартир под аренду, в таком случае хозяев конечно устраивает неубиваемость покрытия.

    Не все сразу свяжут проблемы со стопамии с хождением по голому бетонному полу, а может тоже в тапки переобуваются.

    При таком полуобъединении этот выступ между комнатами будет всю оставшуюся жизнь хотеться срезать, тем более что он не монолитный.

    hdnn:

    а зал для работы и отдыха

    По итогу все будут или на кухне тусить или по своим комнатам.

    Рабочее место со взглядом в стену или в угол - это вынужденное решение для мелких помещений.
    На таких площадях не особо видно препятствий чтобы организовать более феншуйно - спиной к стене или в угол, и боком к окну.

    Детское раб место-подоконник это концентрированное зло. Глаза слепит окно, зимой находиться в потоке горячего воздуха от батареи под окном и неприятно и вредно для ухо-горло-носа. А если нет батареи, то сверху от окна тянет.

  • hdnn Junior Member
    офлайн
    hdnn Junior Member

    61

    16 лет на сайте
    пользователь #213665

    Профиль
    Написать сообщение

    61
    # 10 сентября 2023 22:22
    Pro-ject:

    если нужна полноценная трёшка, можно кухню-гостиную сделать в комнате 15,8 квадратов -

    Если это легально(вдолбиться в вент шахту из другой комнаты), то идея просто бриллиант!!! Буду выяснять, благодарствую!

    VР:

    Детское раб место-подоконник это концентрированное зло. Глаза слепит окно, зимой находиться в потоке горячего воздуха от батареи под окном и неприятно и вредно для ухо-горло-носа.

    Хм... не думал об этом под таким углом, приму к сведенью, спасибо

  • Pro-ject Senior Member
    офлайн
    Pro-ject Senior Member

    1496

    9 лет на сайте
    пользователь #2097641

    Профиль
    Написать сообщение

    1496
    # 10 сентября 2023 23:35
    hdnn:

    Если это легально(вдолбиться в вент шахту из другой комнаты)

    в каком смысле - вдолбиться? не надо ничего долбить. к сливному стояку подключаетесь снизу через переходники,
    а к вытяжке над потолком со стороны кухни по изначальному плану

    Добавлено спустя 3 минуты 50 секунд

    Проект "под ключ" с ремонтом и мебелью по цене чертежей в дизайн-студии
  • art-triumph Senior Member
    офлайн
    art-triumph Senior Member

    3049

    10 лет на сайте
    пользователь #1807551

    Профиль
    Написать сообщение

    3049
    # 11 сентября 2023 08:49 Редактировалось art-triumph, 4 раз(а).

    Часто возникает вопрос: какой тип напольного покрытия использовать?
    Предлагаю пользоваться простым алгоритмом: Есть влажность и повышенное загрязнение - плитка (как вариант - керамогранит). К таким помещениям относятся прихожая, кухня, су, ту, лоджия или балкон.
    В местах условно "жилых" - ламинат, либо паркетная доска либо паркет. Так как его теплопроводность и тактильные ощущения лучше чем у "холодных" (активно отводящих тепло) материалов.
    Венилам или виниловый ламинат ничего общего с линолеумом не имеет и в силу физико химических свойств может использоваться и в жилом помещении и в местах с повышенной влажностью и активным транзитом.
    Наливные полы в жилом помещении использовать вообще не рекомендую так как это химия, которую разводят люди прямо на объекте и человеческий фактор может привести к самым разным последствиям.
    Ковровые покрытия сложно убирать но при этом отлично гасят звук, по этому их часто используют в общественных интерьерах.

    При использовании плитки для поверхности пола, надо понимать, что в межсезонье и в холодное лето, температура поверхности плитки будет очень низкой и без встроенного подогрева это будет очень дискомфортно.

    Добавлено спустя 19 минут 53 секунды

    hdnn, Вообще запрещено располагать кухню над жилыми помещениями.
    Но район от района отличается, а тем более город от города.
    Если все же разрешат, то появляется ряд улучшений:

    Vladimir 375296020381
  • Pro-ject Senior Member
    офлайн
    Pro-ject Senior Member

    1496

    9 лет на сайте
    пользователь #2097641

    Профиль
    Написать сообщение

    1496
    # 11 сентября 2023 13:10
    art-triumph:

    hdnn, Вообще запрещено располагать кухню над жилыми помещениями.

    постоянно так делают и не знаю случая, чтобы кому-то запретили. вы сами неоднократно предлагали подобное.
    сосед недавно перенёс - всё согласовали без проблем. возможно, какой-то конкретный чиновник не согласует

    art-triumph:

    Если все же разрешат, то появляется ряд улучшений

    а вот это уже более интересно! друзья, давайте посмотрим, какие именно улучшения предлагает наш уважаемый коллега?

    .
    первое, но не самое важное - это, вне сомнения, улучшение физической формы и координации хозяйки квартиры -
    ведь во время приготовления пищи ей придётся скакать туда-обратно через всю кухню между раковиной и плитой

    второе - улучшение физической формы и координации движений остальных членов семьи, когда им придётся маршировать
    с полными тарелками из кухни в конец гостиной к обеденному столу и потом обратно. особенно если суп по тарелкам будут разливать на плите, а не на самом столе. хотя, если всё это будет возложено на хозяйку - тогда улучшение так себе

    третье - это возможность сидящих на диване насладиться не только просмотром телевизора, висящего на узком пристенке,
    но и наблюдение за приготовлением пищи на кухне

    четвёртое, пожалуй самое важное, что предлагает наш неутомимый выдумщик - демонтаж стены между гостиной и средней комнатой и последующее возведение её снова в 15 см от прежнего места - вне сомнения, это неимоверное улучшение, особенно для бюджета хозяев

    пятое - установка с 24х метровой спальне одной кровати и огромного шкафа при наличии полноценной гардеробной

    шестое - пожелание хозяина (цитата) :

    hdnn:

    А на кухне с ноутом - рабочее место жены(чтобы не мешать друг другу в одном помещении) и не в спальне, чтобы не мешать отдыхать

    и что же предлагает нам старина Арти - расположение именно в спальне двух рабочих мест! с трудом могу представить себе, чтобы муж и жена одновременно сидели в спальне за компьютерами, даже если каждому из них нужен отдельный

    седьмое - расположение в столовой двух рабочих мест по бокам обеденной зоны - дичь полнейшая!
    зачем вообще семье из трёх человек - пять рабочих мест?????????????

    восьмое - нафига вообще кресло в проходной зоне на кухню????? что оно там делает?? почему бы его тогда в виде прикола
    не поместить на входе в гостиную, чтобы туда вообще никто не смог зайти

    ну и девятое - этакая вишенка на тортике от нашего весельчака - очередная забота о тонусе хозяйки - это перенос входа в туалет из коридора в самую грязную зону - ко входу в квартиру, чтобы домочадцы и гости благополучно растаскивали грязь
    от входной двери по всей квартире, а ей потом приходилось всё это убирать :trollface:

    надеюсь, всем понятен уровень профессионализма и практические навыки уважаемого art-triumph.
    от себя в очередной раз выражаю соболезнование всем его потенциальным заказчикам...

    Проект "под ключ" с ремонтом и мебелью по цене чертежей в дизайн-студии
  • art-triumph Senior Member
    офлайн
    art-triumph Senior Member

    3049

    10 лет на сайте
    пользователь #1807551

    Профиль
    Написать сообщение

    3049
    # 12 сентября 2023 06:51 Редактировалось art-triumph, 2 раз(а).

    Pro-ject,
    1) Двухрядная кухня никогда не была проблемой в использовании.
    Самое оптимальное расстояние для приготовления для вас это обеденный стол с ножом батоном и маслом (что бы вообще не двигаться))))
    2) Наверное, вы не в курсе, но столы и стулья привинчивают к полу только в определенных местах. Во всех остальных случаях их можно переносить в любое место. В том числе не просто есть, а при этом, смотреть в панорамное окно.
    3) "Это возможность сидящих на диване насладиться не только просмотром телевизора, но и наблюдение за приготовлением пищи на кухне."
    Эту мысль вы поняли правильно. Поздравляю!
    4) Если не смещать стену между кухней и гостиной, то она останется тремя плоскостями с различной глубиной , к которой будет не возможно поставить прямой диван без зазоров между ним и этой стеной.
    5) Эта кладовка не может быть полноценной гардеробной. Если только вы не буддист, которому положено иметь пять вещей.
    6) Пожелания читал. И ... да рабочие места возможны на кухне и возможны в спальне. Если в спальне не нужны, то элементарно ставится два кресла +журнальный столик и все. С такой задачей даже вы справитесь.
    7) СМ. пункт 6.
    8) Не нравиться кресло, просто уберите. Это даже не вопрос.
    9) Жаль, что "вишенки" мешают вам видеть очевидные вещи: перенос двери в туалете, дал возможность полностью использовать торец помещения для установки стир. маш. и умывальника. В противном случае, это пришлось бы переставить в су.

    "Надеюсь, всем понятен уровень профессионализма и практические навыки уважаемого art-triumph!"

    Vladimir 375296020381
  • Pro-ject Senior Member
    офлайн
    Pro-ject Senior Member

    1496

    9 лет на сайте
    пользователь #2097641

    Профиль
    Написать сообщение

    1496
    # 12 сентября 2023 12:56 Редактировалось Pro-ject, 1 раз.
    art-triumph:

    перенос двери в туалете, дал возможность полностью использовать торец помещения для установки стир. маш. и умывальника

    перенести вход в туалет, с общей стены со входом в ванную, с удобным доступом из чистого коридора, которым люди будут пользоваться чаще всего, в неудобное отдалённое место грязной зоны около самого входа в квартиру, где можно было бы повесить функциональную вешалку, для того, чтобы разместить в таком маленьком помещении стиральную машину,
    когда в ванной места вполне хватит для стиралки и сушилки???

    .
    WTF?? кто вообще стирает бельё в туалете, что за дичь???

    вы так нелепо пытаетесь замаскировать свою глупость под какие-то оригинальные идеи, что становится смешно

    это я ещё не упомянул про невозможность функционирования вытяжки на таком отдалённом расстоянии от вент-канала с несколькими поворотами и обеспечение косоглазия у ребёнка при просмотре телевизора с кровати.
    как вообще можно повесить телевизор у рабочего стола? зачем размещать один компьютерный стол на всю длинную стену, если его можно нормально интегрировать у угол комнаты? вы так бездарно используете пространство, когда всё можно разместить удобно и функционально

    .
    хотя я бы поставил в детской, вместо кровати, диван двойной раскладки, чтобы
    с него было удобно смотреть ТВ или играть если кто-то придёт в гости к ребёнку -

    .

    art-triumph:

    "Надеюсь, всем понятен уровень профессионализма и практические навыки уважаемого art-triumph!"

    да, надеюсь, что теперь уже всем...

    Проект "под ключ" с ремонтом и мебелью по цене чертежей в дизайн-студии
  • Sergей Senior Member
    офлайн
    Sergей Senior Member

    13211

    16 лет на сайте
    пользователь #186248

    Профиль
    Написать сообщение

    13211
    # 12 сентября 2023 13:07 Редактировалось Sergей, 1 раз.
    Pro-ject:

    WTF?? кто вообще стирает бельё в туалете, что за дичь???

    А почему нет, если места хватает?
    Машинка помешает процессу? )))

  • yaroslawm Senior Member
    офлайн
    yaroslawm Senior Member

    4923

    18 лет на сайте
    пользователь #108786

    Профиль
    Написать сообщение

    4923
    # 12 сентября 2023 13:43

    еще как, заходишь, садишься, залипаешь на вращающийся барабан и забываешь зачем пришел.

  • Sergей Senior Member
    офлайн
    Sergей Senior Member

    13211

    16 лет на сайте
    пользователь #186248

    Профиль
    Написать сообщение

    13211
    # 12 сентября 2023 13:59
    yaroslawm:

    еще как, заходишь, садишься, залипаешь на вращающийся барабан и забываешь зачем пришел.

    Вот блин, даже не догадывался. Повезло, что у меня машинка стоит не напротив унитаза, а рядом в линию и я барабана не вижу.
    А то так бы посидел и выходил, ничего не сделав. )))

  • Member
    офлайн
    Member

    228

    8 лет на сайте
    пользователь #2407339

    Профиль
    Написать сообщение

    228
    # 12 сентября 2023 15:06 Редактировалось , 2 раз(а).
    hdnn:

    Но кухня самому не нравится - мало рабочей зоны и двумя пеналами я перекрываю доступ к сливному стояку

    Предложу решение оригинального вопроса с той кухней которая есть

    Кривой угол зашит перпендикулярно внешней стене выше уровня столешницы.

    Чтобы попасть к коммуникациям, выдвигается из-под столешницы крайний шкафчик на 60 или 80 см.
    В принципе это может быть и пенал с ящиками в нижней секции, сняв которые можно пролезть.

    "Сухие" пеналы на другой стене.
    Отрезается так примерно 1м2.

  • маринасин Member
    офлайн
    маринасин Member

    297

    15 лет на сайте
    пользователь #373881

    Профиль
    Написать сообщение

    297
    # 12 сентября 2023 15:48

    Добрый день. Очень прошу совета, как сделать перепланировку ванной и туалета для большой семьи. Уже куплены ванна размером 170*70, инсталляция geberit и унитаз Ideal Standard Tesi Aquablade. Рассматриваем заложить один из дверных проемов, увеличить стену которая 173 см (примерно на 30 см), разбурить стену между ванной и туалетом. что хотим ванну, унитаз, стиральную машину (возможно с сушильной), умывальник (хотелось бы на две чаши). очень буду благодарна за помощь

  • hdnn Junior Member
    офлайн
    hdnn Junior Member

    61

    16 лет на сайте
    пользователь #213665

    Профиль
    Написать сообщение

    61
    # 12 сентября 2023 17:37

    , да, это отличное решение проблемы!
    Ребята, всем большое спасибо за помощь! От каждого варианта почерпнул что-то полезное!
    В первую очередь буду пробовать менять кухню с комнатой местами, т.к. вижу в этом для себя много плюсов... если получится согласовать)