Ответить
  • 3De Senior MemberАвтор темы
    офлайн
    3De Senior Member Автор темы

    2766

    23 года на сайте
    пользователь #7693

    Профиль
    Написать сообщение

    2766
    # 20 января 2010 16:53

    Поделитесь своим опытом общения с дизайнерами. Впечетления, цены, на что обращать внимания, к кому стоит обращаться, а к кому нет и т.д.
    Давайте обсудим!

    Настало время делать ремонт в квартире (3-х комнатная, 98м2)
    Хотим привлечь к этому процесу дизайнеров.
    Фирм и частников огромное количество, аж голова идет кругом.
    Как выбрать креативных, талантливых и ответственных людей?

    Строительство и ремонт на Барахолке
    Строительные и отделочные материалы
    Инструменты и оборудование для ремонта и строительства
    Двери. Окна. Рамы
    Натяжные потолки
    Напольные покрытия
    Сантехника
    Канализация. Вентиляция. Отопление
    Услуги по отделочным строительным работам и ремонту
    Переезд. Перевозки. Грузчики.

    ...and justice for all...
  • Pro-ject Senior Member
    офлайн
    Pro-ject Senior Member

    1496

    9 лет на сайте
    пользователь #2097641

    Профиль
    Написать сообщение

    1496
    # 20 июля 2023 00:07

    Dragon1990, пожалуйста. даже не буду заморачиваться. нужно заказывать проект.
    единственное, что вот в этом варианте я бы с малом СУ поставил рукомойник -

    Добавлено спустя 8 минут 1 секунда

    можно уменьшить прихожую при входе в дом и сделать мастер бэд-рум со своим отдельным СУ с душем -

    Проект "под ключ" с ремонтом и мебелью по цене чертежей в дизайн-студии
  • 4u6uc24 Member
    офлайн
    4u6uc24 Member

    232

    13 лет на сайте
    пользователь #692133

    Профиль
    Написать сообщение

    232
    # 20 июля 2023 09:15

    Приветствую, помогите пожалуйста разместить спальное место (1,5) в такой студии

  • Varin Senior Member
    офлайн
    Varin Senior Member

    3769

    18 лет на сайте
    пользователь #91546

    Профиль
    Написать сообщение

    3769
    # 20 июля 2023 09:47

    тут недавно пробегали варианты планировок таких квартир

    [url=http://forum.onliner.by/viewtopic.php?p=7364113]Minolta Dynax Sony Alpha TEAM!!![/url]
  • 4u6uc24 Member
    офлайн
    4u6uc24 Member

    232

    13 лет на сайте
    пользователь #692133

    Профиль
    Написать сообщение

    232
    # 20 июля 2023 11:06
    Varin:

    тут недавно пробегали варианты планировок таких квартир

    Спасибо за информацию, пробежал по страницам с лета 2022 и не нашел

  • Pro-ject Senior Member
    офлайн
    Pro-ject Senior Member

    1496

    9 лет на сайте
    пользователь #2097641

    Профиль
    Написать сообщение

    1496
    # 20 июля 2023 11:06

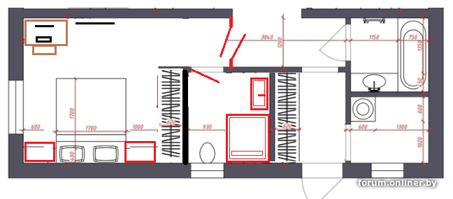
    Dragon1990, не совсем понял - это у Вас тут в туалете окно или что??

    Добавлено спустя 55 минут 43 секунды

    4u6uc24, никогда не понимал, зачем люди покупают такие не приспособленные для жизни квартиры

    .
    телевизор если нужен - можно повесить на потолочном кронштейне. в прихожей вместо одного Г-образного шкафа
    можно поставить два параллельных, тогда пристенок нужно будет немного сдвинуть в сторону дивана

    Проект "под ключ" с ремонтом и мебелью по цене чертежей в дизайн-студии
  • 4u6uc24 Member
    офлайн
    4u6uc24 Member

    232

    13 лет на сайте
    пользователь #692133

    Профиль
    Написать сообщение

    232
    # 20 июля 2023 13:07

    Pro-ject, спасибо. Жизненная ситуация "зачем люди покупают такие не приспособленные для жизни квартиры"

    Добавлено спустя 56 секунд

    Там где кровать - батарея

  • Pro-ject Senior Member
    офлайн
    Pro-ject Senior Member

    1496

    9 лет на сайте
    пользователь #2097641

    Профиль
    Написать сообщение

    1496
    # 20 июля 2023 13:27
    4u6uc24:

    Там где кровать - батарея

    пожалуйста. в смысле - за диваном? перенесите на стену с балконом и всё

    Проект "под ключ" с ремонтом и мебелью по цене чертежей в дизайн-студии
  • art-triumph Senior Member
    офлайн
    art-triumph Senior Member

    3051

    10 лет на сайте
    пользователь #1807551

    Профиль
    Написать сообщение

    3051
    # 21 июля 2023 08:37

    4u6uc24, Здравствуйте. Мое предложение такое:

    Vladimir 375296020381
  • Pro-ject Senior Member
    офлайн
    Pro-ject Senior Member

    1496

    9 лет на сайте
    пользователь #2097641

    Профиль
    Написать сообщение

    1496
    # 21 июля 2023 12:15

    art-triumph,

    пальма первенства по идиотизму уже в который раз достаётся всемирно-известному "маэстро" гротесков за его новый шедевр -

    .
    мало того, что человеку придётся спать рядом с сортиром, головой у канализационного стояка, так ещё и на кровати длиной всего 186 см, с учётом спинки и каркаса. то есть матрас выйдет около 170 см. 170 см Карл!!!!!

    art-triumph, вы хотя бы немного думайте, прежде чем предложить очередную глупость

    хотя, если рост человека составляет 160 см - то вариант вполне рабочий. тогда прошу прощения :trollface: :trollface:

    Добавлено спустя 2 минуты 28 секунд

    о! ещё забыл про вытяжку под головой от кухни соседей снизу. ну это до кучи...

    Красная карточка была показана пользователю за этот пост модератором Grace-o (22 июля 2023 18:58)
    Основание: 3.5.17 / 3.5.18

    Проект "под ключ" с ремонтом и мебелью по цене чертежей в дизайн-студии
  • art-triumph Senior Member
    офлайн
    art-triumph Senior Member

    3051

    10 лет на сайте
    пользователь #1807551

    Профиль
    Написать сообщение

    3051
    # 22 июля 2023 07:03

    Может кто то не знает, но существуют матрасы с глубиной 190 и 195 см.
    При этом изголовье может вообще отсутствовать либо быть куском ЛДСП толщиной 1.8см.
    Перечеркнутый прямоугольник на плане между су и ку это вентиляционный стояк. Другой такой прямоугольник по нижней стене - это зашивка коммуникаций. По этому звуки не будут мешать проживающим.
    "НУ И ДО КУЧИ" Pro-ject, не стоит так явно демонстрировать свою не компетентность и невоспитанность. Пора уже осознать, что вы далеко не ПУП ЗЕМЛИ, которым привыкли себя считать.

    Vladimir 375296020381
  • Pro-ject Senior Member
    офлайн
    Pro-ject Senior Member

    1496

    9 лет на сайте
    пользователь #2097641

    Профиль
    Написать сообщение

    1496
    # 22 июля 2023 16:39

    art-triumph, не пойму, вы прикидываетесь или на самом деле не понимаете, о чём я написал? при чём тут размер матраса?
    его можно сделать любым. речь шла о том, что вы, считая себя профессиональным дизайнером, не обращая внимания на реальные размеры по плану, тупо запихнули полноразмерную кровать 200-210 см в промежуток 186 см по длине.

    да даже если там будет только один матрас - этого расстояния не достаточно для полноценной кровати и комфортного сна!
    не будет же там спать человек наискосок

    если же там расположить нормальную кровать, то она аппендиксом вылезет за границы СУ и расстояние от спинки дивана до экрана телевизора составит метра полтора с небольшим. это абсурд!!

    каким образом планируется посадка вот на эти стулья?

    .
    каждый раз отодвигать стол перед и после приёма пищи? я понимаю, что это просто картинка, стул может быть 1 или 2,
    но то, что вы спокойно расположили там аж 4 стула, когда места максимум на 1 - говорит о непонимании вами элементарных вещей. вы делаете какие-то совершенно бредовые планировки, часть из которых в принципе не осуществима и даже не понимаете этого.

    учитывая то, что за 5 лет пребывания здесь вы не выложили ни одной фото-сессии законченного ремонта по своим проектам (ну по крайней мере я таких не видел), мотивируя это каким-то нарушением приватности заказчиков (никто не просит вас давать их данные), можно сделать два вывода -
    1. качество проектов настолько низкое, что и показывать там нечего
    2. на определённом этапе заказчики понимают, что вы из себя представляете и просто выгонят вас с объекта...

    Добавлено спустя 1 час 21 минута 41 секунда

    art-triumph:

    Перечеркнутый прямоугольник на плане между су и ку это вентиляционный стояк

    сразу видно - дизайнер

    Проект "под ключ" с ремонтом и мебелью по цене чертежей в дизайн-студии
  • art-triumph Senior Member
    офлайн
    art-triumph Senior Member

    3051

    10 лет на сайте
    пользователь #1807551

    Профиль
    Написать сообщение

    3051
    # 22 июля 2023 18:17 Редактировалось art-triumph, 2 раз(а).

    Pro-ject, Вы можете считать и не считать кого то дизайнером или не дизайнером, профессионалом или не профессионалом, мне все равно.
    Любой человек вправе иметь любую точку зрения отличную от моей. А вот именно этого Pro-ject не понять никогда!
    И доказывать кому либо что либо не намерен.
    Есть вопросы по существу, их можно и обсудить. Ну к примеру, а что если кровать выступит за габарит стены и "съест" от 2500мм 150мм !???
    Ответ простой: останется 2350 что бы комфортно смотреть телевизор. (почему то у Pro-ject, остается"метра полтора";)
    Теперь обсудим тезис, а как же будут люди садится за круглый стол !? Ну во первых, стол, как правило, не привинчен к полу и его можно ставить произвольно, а во вторых, он запросто может быть и прямоугольным. На общую концепцию это никак не сказывается. Кроме этого обеденную зону можно увеличить за счет уменьшения размера дивана. Вопрос:что кому важнее. А вот эти нюансы субъективны и для того, что бы их понять надо допускать, что ЕСТЬ ТОЧКИ ЗРЕНИЯ ОТЛИЧНЫЕ ОТ МОЕЙ ! (см. выше)

    Vladimir 375296020381
  • 2713535 Member
    офлайн
    2713535 Member

    130

    6 лет на сайте
    пользователь #2713535

    Профиль
    Написать сообщение

    130
    # 22 июля 2023 22:15

    art-triumph, Покажи свои фото ремонтов. Мне интересно!!

  • 2956032 Senior Member
    офлайн
    2956032 Senior Member

    1634

    6 лет на сайте
    пользователь #2956032

    Профиль
    Написать сообщение

    1634
    # 22 июля 2023 22:33
    2713535:

    art-triumph, Покажи свои фото ремонтов. Мне интересно!!

    Извините, что встреваю! А Вы уверены, что дизайнер и ремонт — это одно и тоже? И... чтобы два раза не вставать... а кто-то и присутствующих платил дизайнеру, чтобы кидать тут свои предъявы? Известно, что бесплатные советы — ничего не стоят :)

  • Pro-ject Senior Member
    офлайн
    Pro-ject Senior Member

    1496

    9 лет на сайте
    пользователь #2097641

    Профиль
    Написать сообщение

    1496
    # 23 июля 2023 11:43
    2713535:

    art-triumph, Покажи свои фото ремонтов. Мне интересно!!

    не покажет, потому что показывать нечего

    2956032:

    ...а кто-то и присутствующих платил дизайнеру, чтобы кидать тут свои предъявы? Известно, что бесплатные советы — ничего не стоят :)

    бесплатные и идиотские - это не одно и то же. это как бы Вы спросили человека на улице - где тут театр, он вам объяснил как нужно идти, вы прошли несколько километров по переулкам, а театр был совсем в другой стороне за ближайшим зданием (условно).

    из серии - человек приходит устраиваться в банк и говорит -
    вы обязательно должны меня взять в свой штат!
    его спрашивают - почему??
    он - потому что я очень быстро считаю в уме.
    ему - скажите, сколько будет 75904 умножить на 50543?
    он тут же - 63990427689.
    те проверили на калькуляторе и говорят - не, не правильно!
    мужик - но зато как быстро!

    Проект "под ключ" с ремонтом и мебелью по цене чертежей в дизайн-студии
  • 2956032 Senior Member
    офлайн
    2956032 Senior Member

    1634

    6 лет на сайте
    пользователь #2956032

    Профиль
    Написать сообщение

    1634
    # 23 июля 2023 14:06 Редактировалось 2956032, 2 раз(а).
    Pro-ject:

    не покажет, потому что показывать нечего

    Попробую объяснить на понятном Вам языке:
    Это, как бы, Вы с условным Рабиновичем посмотрели по телевизеру трансляцию из театра-оперы «Ла скала» в Милане, какое-нибудь условное Ригалетто в исполнение Карузо, и спросили его: -«Можешь так?» Он ответил: -«Могу!», а потом кидали предъявы Джузеппе Верди, что он картавит.
    Или из серии - человек приходит в банк и говорит: -«Вы должны мне денег потому, что я может быть открою у вас депозит». А ему отвечают: -«Чувак, вот тебе брошюрка, возьми и почитай, а там уж решай, что делать со своими грошами!»

    Так андустэнд, товарисчь?

  • RidleR Member
    офлайн
    RidleR Member

    241

    16 лет на сайте
    пользователь #166747

    Профиль
    Написать сообщение

    241
    # 24 июля 2023 23:02

    Всем привет. Впервые строю квартиру без отделки и не совсем пока понимаю, во сколько обойдётся дизайн-проект и собственно сама отделка на 55 кв (без бытовой техники)?
    Понятно, что всё зависит от пожеланий и материалов, но хотелось бы узнать, можно ли, например, сделать хороший ремонт, скажем, за 30 тысяч рублей? Насмотревшись на разные красивые варианты за какие-то космические 80 и 100 тысяч рублей, как-то становится сложно ориентироваться.

  • Pro-ject Senior Member
    офлайн
    Pro-ject Senior Member

    1496

    9 лет на сайте
    пользователь #2097641

    Профиль
    Написать сообщение

    1496
    # 24 июля 2023 23:24

    RidleR, хороший - нет конечно.

    за 10 тыс УЕ ориентируйтесь на оплату услуг отделочников, плюс стройка, плюс какой-то минимум по отделке.
    будет что-то из разряда средне-статистического "евраримонта" а-ля ранних работ уважаемого art-triumph

    хороший на такую площадь как раз и выйдет около 30 КУЕ = 80-100 тыс руб

    PS: если Вам тут кто-то пообещает космос за 30 тыс руб - потом выложите фотки, вместе посмеёмся...

    Проект "под ключ" с ремонтом и мебелью по цене чертежей в дизайн-студии
  • 2956032 Senior Member
    офлайн
    2956032 Senior Member

    1634

    6 лет на сайте
    пользователь #2956032

    Профиль
    Написать сообщение

    1634
    # 25 июля 2023 09:09 Редактировалось 2956032, 1 раз.
    RidleR:

    Впервые строю квартиру без отделки и не совсем пока понимаю, во сколько обойдётся дизайн-проект и собственно сама отделка на 55 кв

    Для того, чтобы что-то строить дизайн-проект не нужен, нужна рабочая документация.
    Как правило, к этому термину, "дизайн-проект", апеллируют различного вида околостроительные посредники-шаромыжники для того, чтобы впарить свои не очень-то и нужные услуги.
    Строительство - это процесс растянутый по времени, делайте поэтапно и не думайте о деньгах, тем более, точную стоимость Вам никто и никогда не скажет.

  • dmitryx Senior Member
    офлайн
    dmitryx Senior Member

    899

    20 лет на сайте
    пользователь #41096

    Профиль
    Написать сообщение

    899
    # 25 июля 2023 11:29
    2956032:

    Для того, чтобы что-то строить дизайн-проект не нужен, нужна рабочая документация.

    Но ведь результатом дизайн-проекта и является документация по которой в дальнейшем проводится ремонт. Он позволяет избежать в дальнейшем потери времени и денег на переделках. На основе своего опыта, как заказчика, я бы ещё порекомендовал не отказываться от авторского надзора. Т.к. у отделочников/электриков/сантехников иногда появляется своё "видение" как надо делать ремонт, а в итоге может получится совсем не так, как задумывалось...