Ответить
  • 3De Senior MemberАвтор темы
    офлайн
    3De Senior Member Автор темы

    2766

    23 года на сайте
    пользователь #7693

    Профиль
    Написать сообщение

    2766
    # 20 января 2010 16:53

    Поделитесь своим опытом общения с дизайнерами. Впечетления, цены, на что обращать внимания, к кому стоит обращаться, а к кому нет и т.д.
    Давайте обсудим!

    Настало время делать ремонт в квартире (3-х комнатная, 98м2)
    Хотим привлечь к этому процесу дизайнеров.
    Фирм и частников огромное количество, аж голова идет кругом.
    Как выбрать креативных, талантливых и ответственных людей?

    Строительство и ремонт на Барахолке
    Строительные и отделочные материалы
    Инструменты и оборудование для ремонта и строительства
    Двери. Окна. Рамы
    Натяжные потолки
    Напольные покрытия
    Сантехника
    Канализация. Вентиляция. Отопление
    Услуги по отделочным строительным работам и ремонту
    Переезд. Перевозки. Грузчики.

    ...and justice for all...
  • Pro-ject Senior Member
    офлайн
    Pro-ject Senior Member

    1496

    9 лет на сайте
    пользователь #2097641

    Профиль
    Написать сообщение

    1496
    # 28 июня 2023 17:59

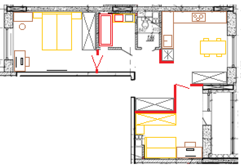
    3434956, здравствуйте. один из вариантов -

    .
    из минусов - кровать в детской у стояка и рабочий стол не у окна. угол кухни с холодильником можно не выносить, а выровнять по стене санузла. на месте системы хранения в кухне можно повесить ТВ. ванну можно на 25% увеличить за счёт комнаты. надо только уточнить - от общей площади СУ или только от самой ванной комнаты. если не будете согласовывать - то можно увеличить на сколько захотите

    при необходимости кухню можно сделать изолированной. тогда шкаф в прихожей сделать менее глубоким и вход в детскую перенести напротив входной двери - рядом со входом на кухню

    Проект "под ключ" с ремонтом и мебелью по цене чертежей в дизайн-студии
  • Fleury Member
    офлайн
    Fleury Member

    492

    15 лет на сайте
    пользователь #380030

    Профиль
    Написать сообщение

    492
    # 29 июня 2023 04:14 Редактировалось Fleury, 1 раз.
    viplip2010:

    Здравствуйте, помогите с планировкой санузла и ванной комнаты. В ванной комнате видимой проблемой выступает полотенцесушитель и батарея отопления, колона, а также нестандартные размеры стен. В ванной комнате ванна обязательна. Предложите пожалуйста варианты, в том числе с учетом возможной перепланировки этих комнат.

    На схеме я писала, что предлагаю батарею заглушить и вместо нее оставить либо вертикальный радиатор, либо змеевик. В одном из вариантов необходимо высчитывать точный размер по ширине помещения (влезет ли сантех. посуда) ... если нет, то возможно стенку в коридор сдвигать, точнее только в проекте можно проработать, зная все пожелания заказчика.

    The best or nothing!
  • Fleury Member
    офлайн
    Fleury Member

    492

    15 лет на сайте
    пользователь #380030

    Профиль
    Написать сообщение

    492
    # 29 июня 2023 23:21
    3685156:

    Всем доброго!
    Может у кого-то будут рациональные предложения по размещению на данном пространстве :

    Нормальной кухни, шкафа-купе, рабочего места и зоны отдыха-спальни с полноразмерным диваном для проживания одного человека? Длина по нижней стене 650 см. длина стены с балконом 320 см. Слева утолщённые линии вдоль стены и пристройки - это трубы под потолком

    art-triumph, Здравствуйте! А можно как-то ознакомиться с вашими работами?

    Здравствуйте!)) есть вот такое решение,

    интересно Ваше мнение. Спасибо!

    Добавлено спустя 1 час 10 минут 25 секунд

    Qwerty20:

    Здравствуйте. Подскажите, пожалуйста, по планировке, как можно разместиться семье из 3 человек
    (мама, папа и ребенок). Думаем выделить ребенку комнату 12,5кв.м. В комнате 19,3кв.м. хотелось бы выделить спальное место (возможно у окна), остальное место зона отдыха. Как рационально расположить прихожую и шкаф в коридоре?

    Здравствуйте, получилось вот такое решение

    The best or nothing!
  • 3434956 Junior Member
    офлайн
    3434956 Junior Member

    40

    4 года на сайте
    пользователь #3434956

    Профиль
    Написать сообщение

    40
    # 30 июня 2023 11:05
    Pro-ject:

    3434956, здравствуйте. один из вариантов -

    .
    из минусов - кровать в детской у стояка и рабочий стол не у окна. угол кухни с холодильником можно не выносить, а выровнять по стене санузла. на месте системы хранения в кухне можно повесить ТВ. ванну можно на 25% увеличить за счёт комнаты. надо только уточнить - от общей площади СУ или только от самой ванной комнаты. если не будете согласовывать - то можно увеличить на сколько захотите

    при необходимости кухню можно сделать изолированной. тогда шкаф в прихожей сделать менее глубоким и вход в детскую перенести напротив входной двери - рядом со входом на кухню

    Спасибо,интересный вариант. можно ли узаконить перенос кухни?от застройщика она получается по другому расположена

  • Pro-ject Senior Member
    офлайн
    Pro-ject Senior Member

    1496

    9 лет на сайте
    пользователь #2097641

    Профиль
    Написать сообщение

    1496
    # 30 июня 2023 14:22
    3434956:

    можно ли узаконить перенос кухни? от застройщика она получается по другому расположена

    пожалуйста. да. как правило, это утверждают без проблем. несколько раз так делали. единственное к чему могут придраться - это вывод вытяжки кухни в вент-шахту СУ. просто до согласования не пробивайте со стороны комнаты отверстие. скажите, что будете использовать вытяжку с циркуляцией без соединения с вент-каналом. потом либо делаете отверстие (тогда главное не готовить ничего сверх пахучего), либо реально ставите вытяжку с двумя типами фильтров и всё...

    Fleury:

    есть вот такое решение,

    .
    Fleury, а Вы точно дизайнер? ну очевидно же, что такая квартира совершенно не предназначена для жизни :

    1. в прихожей отсутствует место, где элементарно можно переодеться - нужно будет таскать всю уличную грязь мимо кровати
    2. спальня в прихожей вообще без окон
    3. нормальная система хранения полностью отсутствует
    4. на кухне НЕТ рабочего места, как такового. готовить на обеденном столе - полный абсурд

    до такого бы даже art-triumph не додумался :o

    Проект "под ключ" с ремонтом и мебелью по цене чертежей в дизайн-студии
  • Fleury Member
    офлайн
    Fleury Member

    492

    15 лет на сайте
    пользователь #380030

    Профиль
    Написать сообщение

    492
    # 1 июля 2023 03:52
    Pro-ject:

    3434956:

    можно ли узаконить перенос кухни? от застройщика она получается по другому расположена

    пожалуйста. да. как правило, это утверждают без проблем. несколько раз так делали. единственное к чему могут придраться - это вывод вытяжки кухни в вент-шахту СУ. просто до согласования не пробивайте со стороны комнаты отверстие. скажите, что будете использовать вытяжку с циркуляцией без соединения с вент-каналом. потом либо делаете отверстие (тогда главное не готовить ничего сверх пахучего), либо реально ставите вытяжку с двумя типами фильтров и всё...

    Fleury:

    есть вот такое решение,

    .
    Fleury, а Вы точно дизайнер? ну очевидно же, что такая квартира совершенно не предназначена для жизни :

    1. в прихожей отсутствует место, где элементарно можно переодеться - нужно будет таскать всю уличную грязь мимо кровати
    2. спальня в прихожей вообще без окон
    3. нормальная система хранения полностью отсутствует
    4. на кухне НЕТ рабочего места, как такового. готовить на обеденном столе - полный абсурд

    до такого бы даже art-triumph не додумался :o

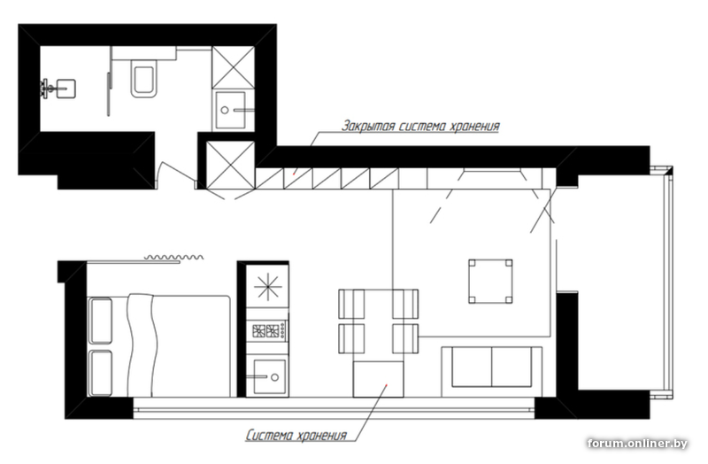
    Для такого маленького метража жилого помещения в данном планировочном решении предусмотрена:

    1. система хранения встроенного типа и закрытые шкафы ( на планировке находится за входом в санузел). На данном этапе это концептуальное планировочное предложение, которое содержит в себе все перечисленные элементы т.з. систему хранения можно расширить.
    2. в концептуальном планировочном предложении изображена стеклянная перегородка зонирующая спальню от прихожей зоны ( использование ее целесообразно для зонирования и экономии пространства)
    3. исходя из опыта, на таком метраже будет жить 1-2 человека, в лучшем случае. О какой нормальной системе хранения идет речь? руководствуясь собственным опытом, полезнее спать на ортопедическом матрасе, чем на диване, спина Вам скажет спасибо за это.
    4. на кухне противоположная часть т.е барная стойка в уровень с кухонной столешницей, является именно местом приготовления еды, как указано на схеме., место под ней возможно использовать для хранения кухонной утвари. и это не кухонный стол.

    Спасибо за проявленный интерес, буду рада дать разьяснения и пояснения и на другие Ваши вопросы.

    The best or nothing!
  • art-triumph Senior Member
    офлайн
    art-triumph Senior Member

    3051

    10 лет на сайте
    пользователь #1807551

    Профиль
    Написать сообщение

    3051
    # 1 июля 2023 07:41

    3434956, Здравствуйте. Мое предложение такое:

    Добавлено спустя 5 минут 15 секунд

    Fleury, Не обращайте внимание на вопросы Pro-ject, . Это местный тролль, которому все равно, что Вы делаете, главное для него, это повод блеснуть своими познаниями.

    Vladimir 375296020381
  • Pro-ject Senior Member
    офлайн
    Pro-ject Senior Member

    1496

    9 лет на сайте
    пользователь #2097641

    Профиль
    Написать сообщение

    1496
    # 1 июля 2023 10:41

    безумие прогрессирует. на этот раз малевич дизайна предлагает всей семье раздеваться на кухне,
    прямо между раковиной и обеденным столом :trollface:

    .
    вы так про канализацию от кухни и не ответили, "спец" по планировочным решениям

    Добавлено спустя 1 час 56 минут 12 секунд

    Fleury, вступая в спор, Вы только лишний раз демонстрируете свой непрофессионализм в данном случае -

    .
    1) каморка с кроватью лишена не только естественного света (что в общем-то запрещено нормативами) но и притока свежего воздуха. посмотрел бы я на Вас после ночёвки там месяца-другого
    2) вообще отсутствует рабочее место, упомянутое заказчиком в ТЗ
    3) максимально усложнена работа на кухне, вместо того, чтобы нормально готовить пищу, как в предложенном мной варианте -

    .
    1. вынул пищу из холодильника 2. помыл в раковине 3. подготовил на рабочей поверхности 4. сварил-пожарил 5. поел 2. помыл посуду, человеку надо будет скакать от холодильника через варку к раковине, от неё нести пищу к стойке, потом обратно к варке, потом к стойке чтобы поесть и потом обратно к раковине чтобы помыть посуду - очевидно же, что это полный бред

    4) мест для хранения вещей КАТАСТРОФИЧЕСКИ мало даже для одного человека!!!
    5) необоснованное уменьшение и без того небольшого СУ, замена полноценной ванны неудобным душем, неудачное расположение унитаза, отдаление раковины от стояка

    Проект "под ключ" с ремонтом и мебелью по цене чертежей в дизайн-студии
  • курчавый Senior Member
    офлайн
    курчавый Senior Member

    26127

    15 лет на сайте
    пользователь #253561

    Профиль
    Написать сообщение

    26127
    # 1 июля 2023 13:42
    Neds:

    Да примерно так и хотел

    В принципе,иероглиф,может и не пить.Но у него нет такого принципа.
  • Fleury Member
    офлайн
    Fleury Member

    492

    15 лет на сайте
    пользователь #380030

    Профиль
    Написать сообщение

    492
    # 2 июля 2023 20:25 Редактировалось Fleury, 1 раз.

    Fleury, Не обращайте внимание на вопросы Pro-ject, . Это местный тролль, которому все равно, что Вы делаете, главное для него, это повод блеснуть своими познаниями. art-triumph, благодарю за Ваш совет, в случаях ярко выраженной критики всегда вспоминаю фразу "все, что Вы видите во мне - это не мое, это Ваше".

    The best or nothing!
  • art-triumph Senior Member
    офлайн
    art-triumph Senior Member

    3051

    10 лет на сайте
    пользователь #1807551

    Профиль
    Написать сообщение

    3051
    # 3 июля 2023 07:16

    Fleury, Со своей стороны уже давно принял решение никак не реагировать на Pro-ject, - ПОЛНЫЙ ИГНОР.
    Хорош, что есть разные мнения и предложения.
    Считаю, что хорошие и плохие предложения помогают лучше понять, что надо делать, а чего лучше не делать.
    Так же и с общением. Если кому то нравится хамское общение Pro-ject, то это ваш дизайнер или исполнитель или кто он там еще.
    Но если нужно вежливое общение, то на форуме много профессиональных дизайнеров, которые пусть и не участвуют в общении, но уж точно отслеживают происходящее.
    Как бы том ни было. Хорошо, что такие личности как Pro-ject, есть. Без них было бы скучно жить. )))

    Vladimir 375296020381
  • Pro-ject Senior Member
    офлайн
    Pro-ject Senior Member

    1496

    9 лет на сайте
    пользователь #2097641

    Профиль
    Написать сообщение

    1496
    # 3 июля 2023 14:12

    профессиональное самолюбие специалиста по колхозному хай-теку, автора помпезной ахинеи -

    и по совместительству местного охотника на троллей art-triumph задето и он вступает на тропу войны в виде полного игнора такого ничтожества как Pro-ject. это всё, конечно, очень захватывающе, однако вы до сих пор так и не объяснили насчёт канализации в очередном варианте ваших бредовых планировок, рассчитанных на несведущих в технических вопросах обывателей и не подлежащих практической реализации -

    у вас всё ещё есть шанс исправить эту оплошность...

    Проект "под ключ" с ремонтом и мебелью по цене чертежей в дизайн-студии
  • борисыч-72 Senior Member
    офлайн
    борисыч-72 Senior Member

    1018

    19 лет на сайте
    пользователь #76973

    Профиль
    Написать сообщение

    1018
    # 5 июля 2023 09:58 Редактировалось борисыч-72, 2 раз(а).

    Здравствуйте уважаемые дизайнеры. Посоветуйте пожалуйста наглядно по грамотной расстановке мебели и техники. Семья 3 взрослых. Стены планируем оставить как есть, так как нужны все изолированные комнаты в том числе и раздельный санузел. Со стороны спальни думаем заложить второй вход в ванную. По санузлам, так как площади позволяют, в "ванной" ванна обязательна, а в туалете хотелось бы установить еще душевую кабину. Пока видим свой вариант спальни в комнате. Критика и советы приветствуются.

  • Pro-ject Senior Member
    офлайн
    Pro-ject Senior Member

    1496

    9 лет на сайте
    пользователь #2097641

    Профиль
    Написать сообщение

    1496
    # 5 июля 2023 11:49 Редактировалось Pro-ject, 1 раз.

    борисыч-72, один из возможных вариантов -

    .
    вход в первую комнату переносится на сторону кухни. в прихожей и в комнате ставятся нормальные системы хранения. стиралка в СУ с ванной. в кухне-гостиной дополнительное спальное место. кухня угловая переходящая в систему хранения со встроенным TV

    можно вход в спальню перенести правее и сделать из неё мастер бэд-рум со своим СУ.
    тогда стиралку можно встроить на кухне рядом с посудомойкой -

    .
    а по оформлению как-то так :

    Проект "под ключ" с ремонтом и мебелью по цене чертежей в дизайн-студии
  • борисыч-72 Senior Member
    офлайн
    борисыч-72 Senior Member

    1018

    19 лет на сайте
    пользователь #76973

    Профиль
    Написать сообщение

    1018
    # 5 июля 2023 20:03 Редактировалось борисыч-72, 1 раз.

    Благодарю, интересный вариант получается, особенно с "master bedroom". Вот только вопрос, утвердят ли об'единение с жилой комнатой часть коридора?

  • Pro-ject Senior Member
    офлайн
    Pro-ject Senior Member

    1496

    9 лет на сайте
    пользователь #2097641

    Профиль
    Написать сообщение

    1496
    # 6 июля 2023 10:26

    борисыч-72, разумеется утвердят. плюс спальня изнутри зрительно будет казаться больше, не будет видно длинного коридора из кухни и при дальнейшей продаже комната в 13-14 квадратов будет смотреться более "выигрышно", чем в 10

    если понадобится что-то по схемам, подбору всех материалов, ремонту или кухне-мебели, обращайтесь

    Проект "под ключ" с ремонтом и мебелью по цене чертежей в дизайн-студии
  • 3434956 Junior Member
    офлайн
    3434956 Junior Member

    40

    4 года на сайте
    пользователь #3434956

    Профиль
    Написать сообщение

    40
    # 6 июля 2023 19:16
    art-triumph:

    3434956, Здравствуйте. Мое предложение такое:

    Fleury, Не обращайте внимание на вопросы Pro-ject, . Это местный тролль, которому все равно, что Вы делаете, главное для него, это повод блеснуть своими познаниями.

    Может еще есть какие нибудь варианты что бы можно было раздеться в коридоре ,а не на кухне

  • 2713535 Member
    офлайн
    2713535 Member

    130

    6 лет на сайте
    пользователь #2713535

    Профиль
    Написать сообщение

    130
    # 7 июля 2023 00:14
    3434956:

    Может еще есть какие нибудь варианты что бы можно было раздеться в коридоре ,а не на кухне

    Есть конечно - купите себе нормальную квартиру, вход в которую не находится в центре жилого пространства и будет вам щастье - раздевайтесь где хотите

    art-triumph:

    Со своей стороны уже давно принял решение никак не реагировать на Pro-ject, - ПОЛНЫЙ ИГНОР.

    Вот ты бездарь - предлагаешь какие-то совершенно идиотские варианты планировок. Тебе человек делает толковые замечания на этот счёт а ты вместо того чтобы его аргументированно опровергнуть или признать свою ошибку пишешь про какой-то игнор. Вроде взрослый а ведёшь себя как в детском саду

    Жёлтая карточка была показана пользователю за этот пост модератором Grace-o (7 июля 2023 11:17)
    Основание: 3.5.17

  • art-triumph Senior Member
    офлайн
    art-triumph Senior Member

    3051

    10 лет на сайте
    пользователь #1807551

    Профиль
    Написать сообщение

    3051
    # 7 июля 2023 06:28

    3434956, Можно еще рассмотреть такие варианты:

    Добавлено спустя 14 минут 48 секунд

    2713535,
    Очень жаль, что мама и папа так и не научили ВАС обращаться к незнакомым людям на ВЫ.
    Судя по уровню хамства, Вы с Pro-ject, нашли друг друга! Очень рад за Вас.
    Аргументацию своих решений делаю всегда, по запросу от адекватных людей.

    Vladimir 375296020381
  • Pro-ject Senior Member
    офлайн
    Pro-ject Senior Member

    1496

    9 лет на сайте
    пользователь #2097641

    Профиль
    Написать сообщение

    1496
    # 7 июля 2023 17:47

    подслушано на дизайнерском форуме-

    заказчик:

    3434956:

    Может еще есть какие нибудь варианты что бы можно было раздеться в коридоре, а не на кухне

    т.н. "дизайнер": конечно!! их есть у меня!

    art-triumph:

    Можно еще рассмотреть такие варианты:

    вот 1й -

    .
    тут только половина уличной грязи попадёт на кухню, вторую благополучно растащат по остальной квартире :trollface:

    а вот и 2й -

    .
    я это уже предложил ранее, только в отличии от вашего варианта грязная зона изолирована полностью -

    .
    ps: уважаемый art-triumph, уже в который раз обращаюсь к вам с просьбой - не соблаговолите всё же ответить
    на мой вопрос о способе прокладки коммуникаций в предложенном вами варианте

    так достаточно вежливо??

    pps: вы на самом деле не понимаете, как глупо выглядите?

    Проект "под ключ" с ремонтом и мебелью по цене чертежей в дизайн-студии