Ответить
  • 3De Senior MemberАвтор темы
    офлайн
    3De Senior Member Автор темы

    2766

    23 года на сайте
    пользователь #7693

    Профиль
    Написать сообщение

    2766
    # 20 января 2010 16:53

    Поделитесь своим опытом общения с дизайнерами. Впечетления, цены, на что обращать внимания, к кому стоит обращаться, а к кому нет и т.д.
    Давайте обсудим!

    Настало время делать ремонт в квартире (3-х комнатная, 98м2)
    Хотим привлечь к этому процесу дизайнеров.
    Фирм и частников огромное количество, аж голова идет кругом.
    Как выбрать креативных, талантливых и ответственных людей?

    Строительство и ремонт на Барахолке
    Строительные и отделочные материалы
    Инструменты и оборудование для ремонта и строительства
    Двери. Окна. Рамы
    Натяжные потолки
    Напольные покрытия
    Сантехника
    Канализация. Вентиляция. Отопление
    Услуги по отделочным строительным работам и ремонту
    Переезд. Перевозки. Грузчики.

    ...and justice for all...
  • art-triumph Senior Member
    офлайн
    art-triumph Senior Member

    3057

    10 лет на сайте
    пользователь #1807551

    Профиль
    Написать сообщение

    3057
    # 7 февраля 2020 06:25

    ujen, Здравствуйте.
    У Вас хорошая планировка ничего менять не надо. (редкий случай)
    Единственный комментарий: если котел твердотопливный, то дымоход выглядеть будет по другому. То же замечание по дымоходу камина.
    Еще, лучше на плане писать не котельная, а топочная.

    Vladimir 375296020381
  • Lustau Member
    офлайн
    Lustau Member

    440

    9 лет на сайте
    пользователь #2166581

    Профиль
    Написать сообщение

    440
    # 7 февраля 2020 09:15

    ujen, девчонки в одной комнате не подерутся?))) Как вариант -детям второй этаж, себе спальня на первом.Планировка классная :super:

  • 1650293 Neophyte Poster
    офлайн
    1650293 Neophyte Poster

    4

    10 лет на сайте
    пользователь #1650293

    Профиль
    Написать сообщение

    4
    # 7 февраля 2020 13:09 Редактировалось 1650293, 1 раз.
    2946114:

    art-triumph, спасибо большое. Даже не думала, что можно так перенести кухню. Так оптимально используется сразу пространсво,. Но вопрос в том, как дорого это обойдется. Может подскажите еще один вариант без переноса кухни? Спасибо большое заранее. С уважением, Светлана[/quo

    И не думайте даже, что так можно перенести! Во-первых вам этого не согласуют (мокрые зоны должны оставаться в мокрых зонах (+/-), к тому же там вентшахты находятся, будете спать и нюхать как соседи селёдку жарят), а если даже вдруг согласуется (с авоськой сходите) - будете мучится до следующего ремонта! Очень плохо себя ведут далёко отведенные коммуникации от своих изначальных мест! К тому же, подумайте, хотите ли вы делать ремонт с регулярной частотой соседям снизу(ну, только если вы не на первом этаже) ))) Я думаю, что профессионалы априори не могут предлагать таких вариантов! Или нет?

  • art-triumph Senior Member
    офлайн
    art-triumph Senior Member

    3057

    10 лет на сайте
    пользователь #1807551

    Профиль
    Написать сообщение

    3057
    # 7 февраля 2020 16:13

    1650293, Ваши замечания безграмотны и беспочвенны.
    Такое ощущение, что уважаемый Pro-ject, решил создать новый аккаунт для своих нелепых нападок.

    Vladimir 375296020381
  • 1650293 Neophyte Poster
    офлайн
    1650293 Neophyte Poster

    4

    10 лет на сайте
    пользователь #1650293

    Профиль
    Написать сообщение

    4
    # 7 февраля 2020 16:36
    art-triumph:

    1650293, Ваши замечания безграмотны и беспочвенны.
    Такое ощущение, что уважаемый Pro-ject, решил создать новый аккаунт для своих нелепых нападок.

    И что же в них безграмотного, а тем более беспочвенного? Это квартира и в ней нельзя делать всё что хочу, нормативы никто не отменял) Покажите мне пункт, где разрешается менять местами кухню со спальней, или просто уносить её в дали от коммуникаций? И да, выходя из туалета, как-то не очень приятно попадать сразу на кухню, но может кому-то нравится?

    А Pro-ject не такие уж и нелепые советы даёт, просто да, в бесплатном варианте не распыляется!

  • ujen Member
    офлайн
    ujen Member

    233

    18 лет на сайте
    пользователь #118418

    Профиль
    Написать сообщение

    233
    # 7 февраля 2020 18:36
    art-triumph:

    ujen, Здравствуйте.
    У Вас хорошая планировка ничего менять не надо. (редкий случай)
    Единственный комментарий: если котел твердотопливный, то дымоход выглядеть будет по другому. То же замечание по дымоходу камина.
    Еще, лучше на плане писать не котельная, а топочная.

    Котел - газ (или электричество - зависит от пути нашего государства по энергоресурсам). От камина отказался - дымоход не делал.
    Топочная - согласен. Торопился.
    Сейчас у меня вопрос в том, как расставить кровати, холодильник, телевизоры, комоды.. исходя из Вашего опыта и существующих правил.

    Добавлено спустя 1 минута 58 секунд

    Lustau:

    ujen, девчонки в одной комнате не подерутся?))) Как вариант -детям второй этаж, себе спальня на первом.Планировка классная :super:

    У них нет вариантов))). Внизу хочу чтобы осталась комната для гостей (пока), а к старости - для себя))))

  • marffa Senior Member
    офлайн
    marffa Senior Member

    15151

    17 лет на сайте
    пользователь #137533

    Профиль
    Написать сообщение

    15151
    # 7 февраля 2020 19:30 Редактировалось marffa, 1 раз.

    ujen,
    5 человек. Лучше на втором этаже вместо одной большой ванной иметь две средние.
    Или гардероб отдать под туалет+душ

  • ujen Member
    офлайн
    ujen Member

    233

    18 лет на сайте
    пользователь #118418

    Профиль
    Написать сообщение

    233
    # 7 февраля 2020 19:51
    marffa:

    ujen,
    5 человек. Лучше на втором этаже вместо одной большой ванной иметь две средние.
    Или гардероб отдать под туалет+душ

    Даже не знаю.... Жалковато гардероба))

  • MouseM Neophyte Poster
    офлайн
    MouseM Neophyte Poster

    6

    14 лет на сайте
    пользователь #453484

    Профиль
    Написать сообщение

    6
    # 7 февраля 2020 20:53

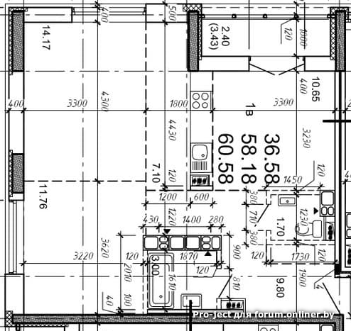
    Добрый день! Как бы вы максимально использовали пространство по данной планировке? Данные: живет 1 девушка, работает из дома (т е нужен письменный сол), не фанат готовки, очень много одежды. Хотела бы в идеале кровать и диван (например, диван на кухне вместо обеденного стола), но скорее всего в таком маленьком пространстве получится только диван (и для сна и как диван).
    Комната жилая 13,4м2. На рекламной планировке вы видите 16,70, но это в итоге оказалось до штрихпунктирной линии в районе кухни.
    Квартира уже с отделкой, не хочется что-то рушить-портить. Дверные проемы широкие и без дверей. Обдумываем какой-то из проемов заделать полностью или частично. Кстати, какие варианты заделать проемы с минимальными жертвами? Рассматриваем вариант реек. Буду благодарна, если поделитесь вашим видением! Спасибо заранее :)

  • Pro-ject Senior Member
    офлайн
    Pro-ject Senior Member

    1496

    9 лет на сайте
    пользователь #2097641

    Профиль
    Написать сообщение

    1496
    # 7 февраля 2020 21:45 Редактировалось Pro-ject, 1 раз.
    1650293:

    Я думаю, что профессионалы априори не могут предлагать таких вариантов! Или нет?

    во-первых, уважаемый art-triumph вообще не является дизайнером, а уж тем более профессиональным :D как я уже неоднократно писал ранее - предлагаемые им варианты перепланировок часто просто лишены здравого смысла и практически не осуществимы в плане реализации - это такой же дизайнер, как я молекулярный биолог. уровень уважаемого art-triumph - это оформление общественных столовых на производственных предприятиях и холлов в областных домах отдыха. я ни в коем случае не позиционирую себя в качестве профи. но предлагать такую дичь, как делает он и при этом выбрать себе ник-нейм art-triumph может только человек, оторванный от реальности. art-proval или art-koshmar больше бы соответствовало действительности. постоянно с содроганием вспоминаю вариант, где он предложил людям перенести кухню в противополжную часть квартиры на 6 или 7 метров от её сливного стояка и при этом расположил столешницу с раковиной вдоль окна. а подача к ней воды и обратный слив должны были идти по стене с радиатором! это вообще за гранью понимания.

    art-triumph:

    1650293, Ваши замечания безграмотны и беспочвенны. Такое ощущение, что уважаемый Pro-ject, решил создать новый аккаунт для своих нелепых нападок.

    вы ошибаетесь - я не имею никакого отношения к данному нику. или вы считаете, что кроме меня никто больше не способен распознать тот бред, который вы предлагаете в качестве вариантов перепланировок наивным посетителям этого форума? не так давно то же самое вам написал и MINSK00

    1650293:

    Это квартира и в ней нельзя делать всё что хочу, нормативы никто не отменял) Покажите мне пункт, где разрешается менять местами кухню со спальней, или просто уносить её в дали от коммуникаций?

    если не брать в расчёт варианты, где art-triumph предлагал людям вынести кусок санузла в область кухни или не отделять кухню с газовой плитой от жилой комнаты полноценной стеной с нормальной дверью, а сделать какую-то нелепую раздвижную конструкцию, что категорически запрещено законодательством, то перенести кухню на место комнаты и наоборот - никто не запрещает. только делать это надо в случае реальной необходимости и при возможности осуществить всё это с малейшими потерями...

    PS: справедливости ради, хочу отметить, что восхищаюсь умением art-triumph создавать произведения типа лепнины или росписи стен своими собственными руками - это однозначно дар...

    Жёлтая карточка была показана пользователю за этот пост модератором Grace-o (10 февраля 2020 16:27)
    Основание: 3.5.17 / 3.5.18

    Проект "под ключ" с ремонтом и мебелью по цене чертежей в дизайн-студии
  • 1650293 Neophyte Poster
    офлайн
    1650293 Neophyte Poster

    4

    10 лет на сайте
    пользователь #1650293

    Профиль
    Написать сообщение

    4
    # 7 февраля 2020 23:17

    Не буду утверждать 100%, но не так давно на глаза попалась информация о том, что кухню можно подвинуть в сторону комнаты, но смежной с кухней (одной стеной друг к другу), неважно будете вы сносить стену полностью или просто дальше её относить, при этом коммуникации должны оставаться в пределах того места, где изначально были запланированы, не уезжать за тридевять земель (ну. только если это , ну, совсем не супер экстремальный вариант). Как-то так!)) и по переносу кухни в спальню или детскую (я полистала ветку назад в будущее, поняла, что это какая-то особенная особенность - "кухня никогда не должна оставаться на своём месте. Это слишком традиционно, впрочем как и туалет в большинстве случаев, но у санузлов больше шансов на постоянство";) - вот как-то я упорно считала, что такие перемены мест возможны только в частном доме, потому что там живёте только вы, и если в квартирах, то первый этаж, потому что не думаю, что соседям снизу очень польстит ваш перенесённый клозет у них над изголовьем кровати))) да, вроде и по нормам нельзя, но спорить не буду. всё течёт, всё меняется))) Но я бы точно так не переносила)))

  • Pro-ject Senior Member
    офлайн
    Pro-ject Senior Member

    1496

    9 лет на сайте
    пользователь #2097641

    Профиль
    Написать сообщение

    1496
    # 8 февраля 2020 01:09

    1650293, санузел на территорию кухни - нельзя вообще. в зону жилой комнаты можно не более чем на 25% его площади. кухню переносить можно - особенно если за стеной комнаты, куда она переносится, есть отдельный стояк - от санузла например. тогда всё очень просто - надо только решить вопрос с отводом вытяжки от варочной поверхности. а если переносить хз куда, как делает обычно уважаемый art-triumph - тогда это конечно полнейший бред и ахинея...

    Жёлтая карточка была показана пользователю за этот пост модератором Grace-o (10 февраля 2020 16:29)
    Основание: 3.5.17

    Проект "под ключ" с ремонтом и мебелью по цене чертежей в дизайн-студии
  • 1650293 Neophyte Poster
    офлайн
    1650293 Neophyte Poster

    4

    10 лет на сайте
    пользователь #1650293

    Профиль
    Написать сообщение

    4
    # 8 февраля 2020 12:45 Редактировалось 1650293, 1 раз.

    Благодарю))

    Добавлено спустя 7 минут 26 секунд

    я, вообще, мебелью занимаюсь, поэтому когда вижу подобные планировки, которые люди потом берут за основу и, что самое ужасное, воплощают, начинает брызжить кровь из глаз! Потому что вставить в них мебель - адский ад!))) при этом они хотят долгосрочную гарантию, а как можно подписаться за косяк другого "дизигнера"?))

  • marffa Senior Member
    офлайн
    marffa Senior Member

    15151

    17 лет на сайте
    пользователь #137533

    Профиль
    Написать сообщение

    15151
    # 8 февраля 2020 17:49 Редактировалось marffa, 2 раз(а).
    ujen:

    marffa:

    ujen,
    5 человек. Лучше на втором этаже вместо одной большой ванной иметь две средние.
    Или гардероб отдать под туалет+душ

    Даже не знаю.... Жалковато гардероба))

    А зачем вам оьбщий гардероб со входом из коридора? Он превратится в кладовку. Не будет же вся семья голыми там толпится и переодеваться.
    А теперь представьте свое утреннее и вечернее время, когда все моются чистят зубы и все остальное. три девушки, которые будут лежать в ванной. и т.д.

    У вас большие спальни. Лучше отгораживайте в них место под встраиваемые шкафы

    Добавлено спустя 23 минуты 47 секунд

    или так например

  • Pro-ject Senior Member
    офлайн
    Pro-ject Senior Member

    1496

    9 лет на сайте
    пользователь #2097641

    Профиль
    Написать сообщение

    1496
    # 8 февраля 2020 19:09 Редактировалось Pro-ject, 1 раз.
    2266018:

    Хочется евро трешку, со спальней и детской

    Вот один из возможных вариантов:

    Из-за небольшой площади зона у входа со шкафом-купе получается не очень удачная для прохода. Вместо компьютерного стола в кухне-гостиной можно поставить шкаф с духовкой и микроволновкой...
    А по оформлению как-то так -

    Проект "под ключ" с ремонтом и мебелью по цене чертежей в дизайн-студии
  • ujen Member
    офлайн
    ujen Member

    233

    18 лет на сайте
    пользователь #118418

    Профиль
    Написать сообщение

    233
    # 8 февраля 2020 21:18
    marffa:

    ujen:

    marffa:

    ujen,
    5 человек. Лучше на втором этаже вместо одной большой ванной иметь две средние.
    Или гардероб отдать под туалет+душ

    Даже не знаю.... Жалковато гардероба))

    А зачем вам оьбщий гардероб со входом из коридора? Он превратится в кладовку. Не будет же вся семья голыми там толпится и переодеваться.
    А теперь представьте свое утреннее и вечернее время, когда все моются чистят зубы и все остальное. три девушки, которые будут лежать в ванной. и т.д.

    У вас большие спальни. Лучше отгораживайте в них место под встраиваемые шкафы

    Добавлено спустя 23 минуты 47 секунд

    или так например

    Перегородка между комнатами детей уже есть. Я рассматриваю вариант установки шкафов вдоль этой перегородки из каждой из комнат.. Может этих шкафов и будет достаточно...

  • art-triumph Senior Member
    офлайн
    art-triumph Senior Member

    3057

    10 лет на сайте
    пользователь #1807551

    Профиль
    Написать сообщение

    3057
    # 9 февраля 2020 07:11 Редактировалось art-triumph, 1 раз.

    MouseM, Здравствуйте.
    Мой вариант все же предполагает конструктивные изменения, но выигрыш очевиден: изолированная спальня.
    Затраты должны быть пропорциональны получаемой выгоде.


    Просьба не смотреть тем, кого раздражает мое творчество!

    Vladimir 375296020381
  • lira89 Member
    офлайн
    lira89 Member

    157

    16 лет на сайте
    пользователь #245667

    Профиль
    Написать сообщение

    157
    # 10 февраля 2020 18:08 Редактировалось lira89, 4 раз(а).

    Здравствуйте. После долгих обсуждений подготовила пару набросков ванной комнаты, вроде как уже взвесила все и вот хочется мнение по двум вариантам. Оба с отдельностоящей ванной. Одна комната уже, другая пошире. В идеале, конечно, если все хорошо размещается в меньшей комнате, то супер, если нет, то будем делать пошире, но в таком варианте придется отобрать у жилой комнаты 40 см. Дверки в душе будут открываться во внутрь и думаю одна дверка будет см 70-80, а другая часть фиксирована....хотя можно и две дверки сделать чтоб во внутрь открывались.

    Жду советов) Заранее спасибо

    PS: подскажите еще пожалуйста нюансы установки отдельностоящей ванной? Читала, что там надо специальные дренажи делать. А еще пишут что пол надо поднимать высоко, но не хочется делать никаких порогов и тем более поднимать пол во всем доме. На текущий момент полы не залиты в доме

  • lira89 Member
    офлайн
    lira89 Member

    157

    16 лет на сайте
    пользователь #245667

    Профиль
    Написать сообщение

    157
    # 10 февраля 2020 20:34 Редактировалось lira89, 1 раз.

    вот еще пример еще немного расширенной комнаты

  • art-triumph Senior Member
    офлайн
    art-triumph Senior Member

    3057

    10 лет на сайте
    пользователь #1807551

    Профиль
    Написать сообщение

    3057
    # 11 февраля 2020 07:46

    lira89, Здравствуйте.
    Помимо устройства трапа (дырочки в полу для отвода пролившейся воды)), необходимо предусмотреть ряд мер по установке отдельно стоящего смесителя. Штука не из дешевых, лучше цену узнать заранее. Особенно удивляет стоимость коробочки для монтажа, которая заливается в стяжку.
    Почитать для общей эрудиции можно здесь: https://prosmesiteli.ru/otdelno-stoyashhij-smesitel/

    Лично я категорически против отдельно стоящих ванн. Для такого предмета надо отдельное помещение и что бы она стояла по центру комнаты.

    Vladimir 375296020381