Ответить
  • 3De Senior MemberАвтор темы
    офлайн
    3De Senior Member Автор темы

    2762

    22 года на сайте
    пользователь #7693

    Профиль
    Написать сообщение

    2762
    # 20 января 2010 16:53

    Поделитесь своим опытом общения с дизайнерами. Впечетления, цены, на что обращать внимания, к кому стоит обращаться, а к кому нет и т.д.
    Давайте обсудим!

    Настало время делать ремонт в квартире (3-х комнатная, 98м2)
    Хотим привлечь к этому процесу дизайнеров.
    Фирм и частников огромное количество, аж голова идет кругом.
    Как выбрать креативных, талантливых и ответственных людей?

    Строительство и ремонт на Барахолке
    Строительные и отделочные материалы
    Инструменты и оборудование для ремонта и строительства
    Двери. Окна. Рамы
    Натяжные потолки
    Напольные покрытия
    Сантехника
    Канализация. Вентиляция. Отопление
    Услуги по отделочным строительным работам и ремонту
    Переезд. Перевозки. Грузчики.

    ...and justice for all...
  • EBOSH Member
    офлайн
    EBOSH Member

    203

    13 лет на сайте
    пользователь #570404

    Профиль
    Написать сообщение

    203
    # 25 апреля 2016 13:36
    Kykypyka:

    EBOSH:

    На кухне остекление в пол

    офигенно!

    EBOSH:

    И где лучше установить проектор?

    Не хватает полных замеров квартиры - для хорошей работы проектора нужно большое расстояние.

    Спасибо! Вечером сниму размеры и скину план с размерами! :super:

  • uzzz Neophyte Poster
    офлайн
    uzzz Neophyte Poster

    18

    14 лет на сайте
    пользователь #474940

    Профиль
    Написать сообщение

    18
    # 25 апреля 2016 13:44

    Здравствуйте

    Имеется старая маленькая квартира (43 м²). Хочется сделать ремонт незатейливый, но аккуратный. Красивые рендеры с итальянскими кожаными диванами и дизйнерскими светильниками это не то, что я ищу. А ищу помощь профессионала прежде всего в грамотной организации этого скромного пространства (перепланировка, расстановка мебели, розетки/выключатели). Если вам есть что предложить, то напишите пожалуйста в личные сообщения.

  • Мусик Senior Member
    офлайн
    Мусик Senior Member

    641

    20 лет на сайте
    пользователь #33171

    Профиль
    Написать сообщение

    641
    # 25 апреля 2016 16:36 Редактировалось Мусик, 3 раз(а).

    вариант zaro4ka, представленный на этой странице в 12-59, хорош, но надо спальню и детскую менять местами. Во-первых 10 метров для спальни - вполне достаточно, а что там еще делать? Во-вторых, у взрослых есть еще кухня и гостиная, чтоб там время проводить, а дети, когда подрастают, требуют личного пространства, поэтому им надо комнату побольше, т.к. они там не только спят, но и играют, учатся, принимают гостей и т.д.
    И еще, чем дальше взрослая спальня от детской, тем проще взрослым своими взрослыми делами заниматься, не боясь, что их услышат ;)

  • Kykypyka Senior Member
    офлайн
    Kykypyka Senior Member

    8115

    16 лет на сайте
    пользователь #191420

    Профиль
    Написать сообщение

    8115
    # 25 апреля 2016 17:38 Редактировалось Kykypyka, 1 раз.
    Мусик:

    И еще, чем дальше взрослая спальня от детской, тем проще взрослым своими взрослыми делами заниматься, не боясь, что их услышат

    И подрастающим детям - аналогично :D (нам так и не назвали возраст)

    Делаю танки!
  • Miladyst Neophyte Poster
    офлайн
    Miladyst Neophyte Poster

    7

    9 лет на сайте
    пользователь #1919105

    Профиль
    Написать сообщение

    7
    # 25 апреля 2016 18:00

    Да, согласна с вами полностью, ребенку 4 месяца, тем не менее маленькую комнату лучше оборудовать под спальню, а большую под детскую. Меня скорее больше интересует вопрос где лучше оборудовать кухню-гостиную, делать её изолированной комнатой или же делать её проходной

  • v-k Senior Member
    офлайн
    v-k Senior Member

    530

    12 лет на сайте
    пользователь #760370

    Профиль
    Написать сообщение

    530
    # 26 апреля 2016 17:20 Редактировалось v-k, 1 раз.

    Кто ходил на выставку? Что нового, интересного? Собираюсь сходить в четверг.
    (Выставка «Мебель дизайн инновации» 26-29 апреля в Футбольном манеже).

    Кстати, Ryp, сходите, там по интересующей Вас теме (изготовление перегородки) будет много производителей в одном месте (по разным ценам) . Это очень удобно. :)

    Будет интересно !!!
  • Мусик Senior Member
    офлайн
    Мусик Senior Member

    641

    20 лет на сайте
    пользователь #33171

    Профиль
    Написать сообщение

    641
    # 26 апреля 2016 21:16 Редактировалось Мусик, 1 раз.
    Kykypyka:

    И подрастающим детям - аналогично (нам так и не назвали возраст)

    ой :roll:
    но разносить спальни друг от друга надо :)

    Miladyst:

    Меня скорее больше интересует вопрос где лучше оборудовать кухню-гостиную, делать её изолированной комнатой или же делать её проходной

    ну я лично считаю, что проходная комната хороша, когда есть всякие там гостевые спальни, а в наших реалиях лучше больше изолированных помещений. Но, тут конечно важно учитывать размеры получающихся помещений, лучше сделать одну большую проходную комнату, чем пару клетушек. Лично в моем понимании 16 метров - достаточное условие для организации отдельной гостиной. Но тут у каждого свои мнения о достаточности.
    А еще на мой взгляд кухня и гостиная - это первые помещения, в которые должны попадать жильцы и гости. Когда в гостиную надо идти по длинному коридору мимо спален - на мой взгляд это неправильно

  • Miladyst Neophyte Poster
    офлайн
    Miladyst Neophyte Poster

    7

    9 лет на сайте
    пользователь #1919105

    Профиль
    Написать сообщение

    7
    # 26 апреля 2016 21:59

    Мусик, не могу с вами не согласиться, перенести кухню в самую большую комнату проще всего и со входа попадаешь именно туда, НО такой вариант технически невозможен, поэтому и переносим её дальше, и все же так и не поняла ваше мнение дальше но изолированная комната либо ближе но проходная

  • Мусик Senior Member
    офлайн
    Мусик Senior Member

    641

    20 лет на сайте
    пользователь #33171

    Профиль
    Написать сообщение

    641
    # 26 апреля 2016 23:51

    Miladyst, не знаю, как ни городи огородов, не получается сделать непроходную гостиную и чтоб при входе в одном флаконе :(
    Мне больше в вашем случае нравится вариант минимизировать стены и убрать коридоры, соответственно поменять расстановку стола и дивана. Но надо понимать, что в таком случае, в гостиной невозможно будет уединиться. Если уединения будут лишены редкие гости, то может они потерпят?

    детская и спальня, само собой, меняются местами

    Добавлено спустя 2 минуты 22 секунды

    п.с.если я не ошибаюсь, перенос кухни в крайнюю левую спальню , путем смещения стены, хоть и возможен, но потребует больших материальных затрат на согласование такой перепланировки, чем просто снос и возведение ненесущих стен

  • zaro4ka Member
    офлайн
    zaro4ka Member

    163

    16 лет на сайте
    пользователь #193316

    Профиль
    Написать сообщение

    163
    # 27 апреля 2016 15:43

    Miladyst, в варианте предложенном мной, точно так же можно избавится от всех стен смежных с коридором и возвести стеночку для тв.
    А вариант, который повторно выложила Мусик вы даже не сможете нормально смотреть тв !

  • Free_Man Junior Member
    офлайн
    Free_Man Junior Member

    63

    18 лет на сайте
    пользователь #92718

    Профиль
    Написать сообщение

    63
    # 27 апреля 2016 16:50

    Всем привет. Кто может посоветовать хорошего дизайнера для работы над квартирой около 100 кв? Нужен полный пакет документов, включая схемы разводки, потолки и т.д. и несколько 3D иллюстраций. Спасибо.

  • Bentley Senior Member
    офлайн
    Bentley Senior Member

    523

    22 года на сайте
    пользователь #6554

    Профиль
    Написать сообщение

    523
    # 27 апреля 2016 19:47 Редактировалось Bentley, 1 раз.

    Miladyst, У моей подруги оочень похожая планировка и они переделывали в трешку таким образом, я была в гостях - мне понравилось - просторно, много мест для хранения и ребенку полноценная комната. В спальне откатная дверь, и торец кухни, который смотрит в коридор - сделан из блоков, чтобы спрятать шкафчики и было больше места для того, чтобы повесить ТВ. Если что-то непонятно, могу объяснить.

  • Neo_911 Neophyte Poster
    офлайн
    Neo_911 Neophyte Poster

    2

    9 лет на сайте
    пользователь #1917093

    Профиль
    Написать сообщение

    2
    # 27 апреля 2016 20:16

    [censored by Kilav.S]

    Красная карточка была показана пользователю за этот пост модератором Kilav.S (28 апреля 2016 09:43)
    Основание: 3.5.15, 3.5.16

  • Miladyst Neophyte Poster
    офлайн
    Miladyst Neophyte Poster

    7

    9 лет на сайте
    пользователь #1919105

    Профиль
    Написать сообщение

    7
    # 27 апреля 2016 21:26 Редактировалось Miladyst, 1 раз.

    На предыдущей странице писали, что стены между залом и коридором трогать нельзя, хотя предложенный Bentley вариант очень хорош, огромное пространство на гостиную и есть где разгуляться с мебелью, пойду у точнять в администрацию, проект терпел корректировки, может они эти диафрагмы жесткости перенесли куда-нить

  • Мусик Senior Member
    офлайн
    Мусик Senior Member

    641

    20 лет на сайте
    пользователь #33171

    Профиль
    Написать сообщение

    641
    # 27 апреля 2016 23:27
    zaro4ka:

    А вариант, который повторно выложила Мусик вы даже не сможете нормально смотреть тв !

    это не мой вариант и не моя расстановка мебели (картинку здесь выкладывали до меня, я ее украла). Я только стенку крестиками зачеркнула. уж если объединять, так по полной!

    Добавлено спустя 6 минут 14 секунд

    Miladyst:

    может они эти диафрагмы жесткости перенесли куда-нить

    уточните там, может можно от диафрагм оставить только колонны?
    вот здесь были очень интересно обыграны несущие колонны, которые нельзя было убрать. Но в вашем случае, конечно, надо уточнять, что обязательно нужно оставить и стоит ли связываться со сносом остатков.

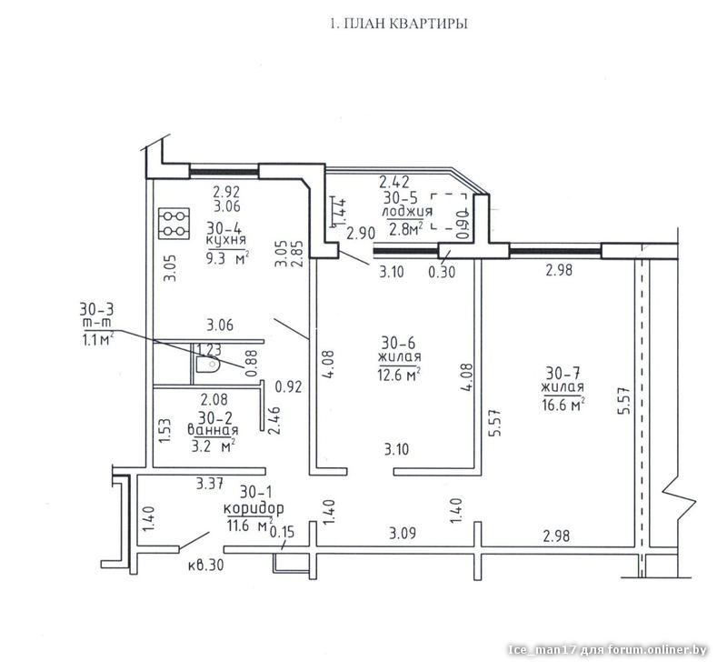
  • Ice_man17 Neophyte Poster
    офлайн
    Ice_man17 Neophyte Poster

    18

    12 лет на сайте
    пользователь #819263

    Профиль
    Написать сообщение

    18
    # 28 апреля 2016 00:27

    Здравствуйте, дизайнеры и любители. Прошу помощи: помогите с организацией ванной и туалета. Совмещенный сан. узел не рассматриваю. Может есть идеи по организации остального пространства? Буду признателен. Предполагается проживание 2-х взрослых (мама и сын 24 лет). Ответ можно и в личку

  • Неизвестный кот Neophyte Poster
    офлайн
    Неизвестный кот Neophyte Poster

    0


    пользователь #1316003

    Профиль

    0
    # 28 апреля 2016 09:06

    [censored by Kilav.S]

  • Verbochka_N Neophyte Poster
    офлайн
    Verbochka_N Neophyte Poster

    14

    14 лет на сайте
    пользователь #397368

    Профиль
    Написать сообщение

    14
    # 28 апреля 2016 10:00

    Здравствуйте участники форума, ломаю голову о возможной перепланировки нестандартной двушки в новостройке. Семья из 4 человек, двое детей, девочки 7 и 20 лет.

    Пока придумали такую версию, но кажется она очень сырая

    Буду рада любым замечаниям.

  • Bentley Senior Member
    офлайн
    Bentley Senior Member

    523

    22 года на сайте
    пользователь #6554

    Профиль
    Написать сообщение

    523
    # 28 апреля 2016 11:56 Редактировалось Bentley, 2 раз(а).

    Miladyst, У подруги тоже часть стенки осталась, где и у вас - там вентканал и стояк водоснабжения, но он совершенно не мешает. Все стало отлично. Просто отсуствие коридора придает простор квартире и кухня не просматривается с входа, много места для приема гостей. У вас только балкон подругому, но все можно продумать

  • Мусик Senior Member
    офлайн
    Мусик Senior Member

    641

    20 лет на сайте
    пользователь #33171

    Профиль
    Написать сообщение

    641
    # 28 апреля 2016 12:43
    Ice_man17:

    Прошу помощи: помогите с организацией ванной и туалета. Совмещенный сан. узел не рассматриваю

    А вы уточните, что вы хотите разместить в ванной