изначально мы планировали только одноэтажный, но как не крутили планировку получался ангар-малосемейка, строим двухэтажный.
изначально мы планировали только одноэтажный, но как не крутили планировку получался ангар-малосемейка, строим двухэтажный.
cr-r-razy:строим двухэтажный.
как будет выглядеть? И как получался одноэтажный, можно глянуть?
opelvector:народ чем старше - тем ленивее
пугаются 10 ступенек
скоро ползком уже ползать будут, лишь бы не напрягатьсядвижение = жизнь
А что - движение может быть только вверх-вниз по лестнице дома?
PS живу в двухэтажном, строю одноэтажный.
|
офлайн
opelvector
Senior Member
|
|
|
52701 |
18 лет на сайте Город:
|
Pulsat:opelvector:народ чем старше - тем ленивее
пугаются 10 ступенек
скоро ползком уже ползать будут, лишь бы не напрягатьсядвижение = жизнь
А что - движение может быть только вверх-вниз по лестнице дома?
неделю назад гуляли мы своим клубом на усадьбе
примерно всем около 40 лет
и что я вам скажу, ребяты...
такое ощущение, что сейчас народ двигается только в кровати и то с боку на спину (бо на живот не получается)
и врачи кругом рекомендуют ходить пешком по ступенькам, а не на лифте
в моем случае (3х этажный 4х комнатный жилой дом) - я экономил деньги на фунде и т.п. + не люблю 25 строений на 15 сотках
и участок на склоне - просто ооочень дорого встанет строиться на большой пятне застройки (подсыпка, подпорные стенки)
у меня все в доме - гаражи, баня, кабинет, котельная, погребок и чердак на всякий случай
для шашлычка открытая беседка
у меня есть друг (20 соток в собственности)
он так все застроил гаражами, бытовками и прочим одноэтажным самостроем
свободной земли осталось 5х10м клумба
у него из дома дорожка к гостевому 10м
из гостевого переход в баню, из бани в гараж, из гаража в большой гараж и т.д (все под одной крышей)
он фанат всех этих нычек и закутков (гараж большой сдает под производство)
opelvector:в моем случае (3х этажный 4х комнатный жилой дом) - я экономил деньги на фунде и т.п. + не люблю 25 строений на 15 сотках
и участок на склоне - просто ооочень дорого встанет строиться на большой пятне застройки (подсыпка, подпорные стенки)
С этого надо и начинать, а все остальное не имеет никакого отношения к вопросу))).
opelvector:я экономил деньги на фунде и т.п
А сколько переплатил за сооружение лестниц на 3 этажа (4 пролета и 2 поворотные площадки) и сколько потерял на них квадратных метров полезной площади - он, конечно, забыл посчитать 
Pева, нормальная лестница под ключ выходит минимум 3ку. Это 1 этаж
За 3штуки можно купить 60 кубов блоков и оплатить работу по их укладке.
А это примерно 120 квадратов дома можно сделать.
Бывало, нужен какой-нибудь инструмент, рулетка или молоток каменецкий. Вспоминаешь, что оставил на 2м этаже в прошлый раз. Блин, лениво подниматься, лучше в гараж схожу, там ещё одна лежит ![]()
Здравствуйте , подскажите пожалуйста , на какую сумму рассчитывать , участок в могилевском направлении, 30-35 км от мкад , 12 сот. гас и вода где то в 200 метрах , канализации нет .спасибо .
Pева:А сколько переплатил за сооружение лестниц на 3 этажа
пока можно сказать нисколько, отделки нет.
|
офлайн
pioner1313
Senior Member
|
|
|
7120 |
22 года на сайте Город:
|
weste3, 5-10k максимум. 200 метров это дофига, да и 35 км не близко.
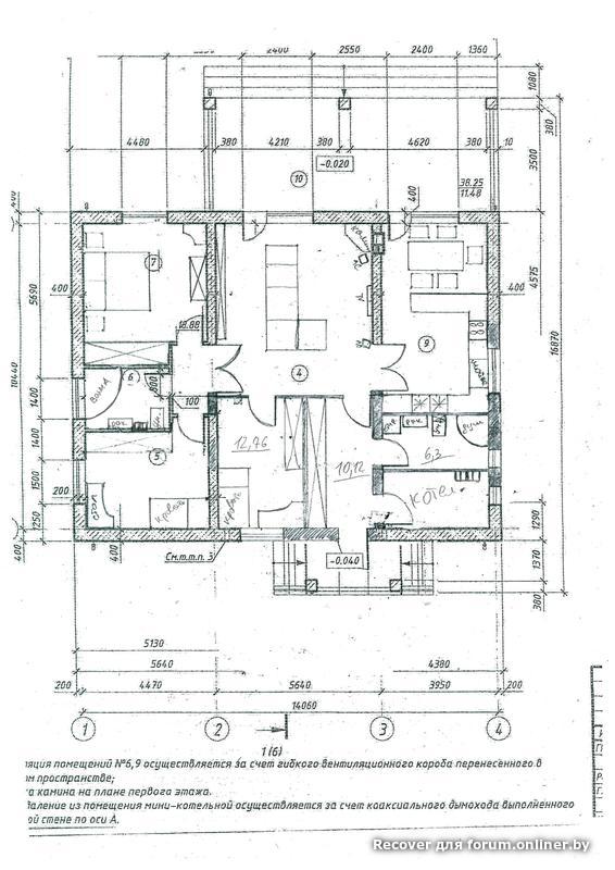
Робятки, я немного перерукажопил свой проект и трохи накинул на него мебель. кто что прокомментит м.б.? Буду премного благодарен.
север снизу, юг сверху.

pioner1313:weste3, 5-10k максимум. 200 метров это дофига, да и 35 км не близко.[/qu
35 км дофига но финансы ограничивают , а вот я слышал что отменили закон о обязательной застройке в течении короткого времени это так ?
weste3:Здравствуйте , подскажите пожалуйста , на какую сумму рассчитывать , участок в могилевском направлении, 30-35 км от мкад , 12 сот. гас и вода где то в 200 метрах , канализации нет .спасибо .
а электричество?
Recover:weste3:Здравствуйте , подскажите пожалуйста , на какую сумму рассчитывать , участок в могилевском направлении, 30-35 км от мкад , 12 сот. гас и вода где то в 200 метрах , канализации нет .спасибо .
а электричество?
тоже где то в 200 метровом радиусе , стоит брать его на аукционе ?
|
офлайн
pioner1313
Senior Member
|
|
|
7120 |
22 года на сайте Город:
|
weste3, 200м это + около 3к-4k к подводке газа. А если какую дорогу "прокалывать" то может и больше. Надо смотреть все нюнсы, а то по итогу окажется что лучше другой участок подороже купить, чем за подвод всего платить.
weste3:а вот я слышал что отменили закон
Где слышали на лавочке возле подъезда или в телевизоре говорили?
weste3:финансы ограничивают
не лезьте в стройку-участок, вырванные годы будут и средства, годков пять поищите себя еще.
weste3:Recover:weste3:Здравствуйте , подскажите пожалуйста , на какую сумму рассчитывать , участок в могилевском направлении, 30-35 км от мкад , 12 сот. гас и вода где то в 200 метрах , канализации нет .спасибо .
а электричество?
тоже где то в 200 метровом радиусе , стоит брать его на аукционе ?
ого, забористо. короче 200метров воздушки вам встанет в 3к зелени примерно. По газу вон тоже столько же, как подсказал pioner1313, . по воде может меньше, но тоже касарь какой готовить надо. итого все коммуникации обойдуться в примерно 8-9к. электро можно и подземку конечно, если линия просматривается и нет риска, что ее кто-нить капнет ковшом в будущем. тогда до касаря встанет.
по итогу вот так + 35км ехать каждый день * 2. я бы не брал. Хотя может там с одной стороны лес, а с другой озеро красивое)
weste3:финансы ограничивают
не лезьте в стройку-участок, вырванные годы будут и средства, годков пять поищите себя еще.[/quot
хочется купить участок и пусть стоит пока , вот и спрашивал про это , сколько может стоять пустырь
pioner1313, сча за 12 уходят в новоселье в новой нарезке. главное не берите ближе к пруду. там полноценные 15 соток, электро.
но там другой гемор - нет воды и газа. повсюду все строятся. скважину бить - около 100 метров и 3к зелени. по газу ваще хз.