Ответить
  • stelsser MemberАвтор темы
    офлайн
    stelsser Member Автор темы

    276

    14 лет на сайте
    пользователь #462694

    Профиль
    Написать сообщение

    276
    # 28 января 2016 12:51 Редактировалось stelsser, 84 раз(а).

    САЙТ ЗАСТРОЙЩИКА КВАРТАЛА - А100

    Ссылка на группу "В контакте", для жителей дома 9.6

    Статья про наш квартал

    Этапы строительства жилого дома 9.6

    состояние на 10.01.2016 г. - возведено 16 этажей в первом подъезде, 14 этажей во втором.

    состояние на 25.01.2016 г. - возведено 19 этажей в первом подъезде, 16 этажей во втором подъезде.

    прибыла и выгружается первая пробная партия окон
    состояние на 13.03.2016 г. - частично установлены окна, порядка 35-40%

    состояние на 26.03.2016 г. - завершена основная установка окон, порядка 99% в первом подъезде, начата установка окон во втором подъезде, завершается демонтаж двух башенных кранов

  • ANNN Member
    офлайн
    ANNN Member

    179

    20 лет на сайте
    пользователь #35388

    Профиль
    Написать сообщение

    179
    # 19 апреля 2016 00:05
    El.Alex:

    Сегодня на субботнике выкопали дерево возле нашего подъезда и пересадили к другим домам...
    Надеюсь возле нашего подъезда оставят пару деревьев :(

    Ну нормально! а нам не нужны деревья? :insane:
    stelsser, супер! :ura: вы облегчаете наше ожидание!

  • stelsser MemberАвтор темы
    офлайн
    stelsser Member Автор темы

    276

    14 лет на сайте
    пользователь #462694

    Профиль
    Написать сообщение

    276
    # 19 апреля 2016 09:05
    ANNN:

    El.Alex:

    Сегодня на субботнике выкопали дерево возле нашего подъезда и пересадили к другим домам...
    Надеюсь возле нашего подъезда оставят пару деревьев :(

    Ну нормально! а нам не нужны деревья? :insane:
    stelsser, супер! :ura: вы облегчаете наше ожидание!

    всегда рад ... ;)

  • El.Alex Junior Member
    офлайн
    El.Alex Junior Member

    44

    11 лет на сайте
    пользователь #1525560

    Профиль
    Написать сообщение

    44
    # 19 апреля 2016 13:49

    Вот такие двери лифта. Они в пленке, цвет самой двери серебристый вроде.

    Также начали укладку труб отопления в полу.

  • stelsser MemberАвтор темы
    офлайн
    stelsser Member Автор темы

    276

    14 лет на сайте
    пользователь #462694

    Профиль
    Написать сообщение

    276
    # 19 апреля 2016 14:20
    El.Alex:

    Вот такие двери лифта. Они в пленке, цвет самой двери серебристый вроде.

    Также начали укладку труб отопления в полу.

    т.е. сама кабина пассажирского лифта уже смонтирована?

  • El.Alex Junior Member
    офлайн
    El.Alex Junior Member

    44

    11 лет на сайте
    пользователь #1525560

    Профиль
    Написать сообщение

    44
    # 19 апреля 2016 16:22

    stelsser, Технологию монтажа лифтов не совсем понимаю. Насчет кабины без понятия (вроде сначала монтируются двери, а потом кабина), но двери маленького лифта стоят на каждом этаже.

  • No_Logo Neophyte Poster
    офлайн
    No_Logo Neophyte Poster

    23

    10 лет на сайте
    пользователь #1747389

    Профиль
    Написать сообщение

    23
    # 19 апреля 2016 18:43
    ANNN:

    El.Alex:

    Сегодня на субботнике выкопали дерево возле нашего подъезда и пересадили к другим домам...
    Надеюсь возле нашего подъезда оставят пару деревьев :(

    Ну нормально! а нам не нужны деревья? :insane:
    stelsser, супер! :ura: вы облегчаете наше ожидание!

    Так там может еще что-то прокладывать будут, не? Разве просто так выкопали?

  • stelsser MemberАвтор темы
    офлайн
    stelsser Member Автор темы

    276

    14 лет на сайте
    пользователь #462694

    Профиль
    Написать сообщение

    276
    # 19 апреля 2016 19:06

    No_Logo, возможно дорога будет внутридворовая...

    Добавлено спустя 2 минуты 17 секунд

    А никто не заметил что А100 решил сэкономить на нашем доме и упростить его немного? Или мне так кажется только....???

    Добавлено спустя 22 минуты 2 секунды

    El.Alex:

    stelsser, Технологию монтажа лифтов не совсем понимаю. Насчет кабины без понятия (вроде сначала монтируются двери, а потом кабина), но двери маленького лифта стоят на каждом этаже.

    вы были в квартирах только на нашем этаже или на другие тоже заходили?

  • El.Alex Junior Member
    офлайн
    El.Alex Junior Member

    44

    11 лет на сайте
    пользователь #1525560

    Профиль
    Написать сообщение

    44
    # 19 апреля 2016 22:03 Редактировалось El.Alex, 2 раз(а).

    Да, получается сэкономили. Нет щита белого цвета и конструкции из металла зеленого цвета. И судя по тому, что монтажники сложили кран уже и не появится. stelsser, Был в квартирах на выборочных этажах.
    Хотя...фасад дома который на картинке справа, это как я понимаю из проекта (раздел окраски фасада). А декоративные конструкции будут находится в другом разделе проекта, и на окраске фасада их может не быть. Следующий раз не поленюсь пройти еще 3 этажа до крыши, может там эти элементы уже лежат)

  • stelsser MemberАвтор темы
    офлайн
    stelsser Member Автор темы

    276

    14 лет на сайте
    пользователь #462694

    Профиль
    Написать сообщение

    276
    # 19 апреля 2016 23:10 Редактировалось stelsser, 3 раз(а).

    El.Alex, может на первых этажах уже радиаторы отопления поставили?
    Не думаю что там что то будет на этажах повыше, судя по чертежу наверно уже верх дома закончен.

  • El.Alex Junior Member
    офлайн
    El.Alex Junior Member

    44

    11 лет на сайте
    пользователь #1525560

    Профиль
    Написать сообщение

    44
    # 20 апреля 2016 20:55 Редактировалось El.Alex, 1 раз.

    Нет, радиаторы еще не ставили. Вроде бы они появятся только после майских праздников.
    5-ти этажку начали красить. Может закончат этот дом и сразу на наши пойдут?
    Декоративной надстройки не будет скорее всего, на вашем скрине видно, что в проект внесли изменения и надстройку перечеркнули крестом((

  • stelsser MemberАвтор темы
    офлайн
    stelsser Member Автор темы

    276

    14 лет на сайте
    пользователь #462694

    Профиль
    Написать сообщение

    276
    # 20 апреля 2016 22:06 Редактировалось stelsser, 2 раз(а).

    главное что бы еще что то не зачеркнули ..... а то у них это запросто... деньги с нас получили за это, а нам :ass:

    Добавлено спустя 7 минут 16 секунд

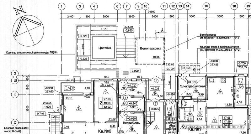
    еще хочу "обрадовать" жильцов нашего дома, а особенного тех кто на первом этаже, в одной из квартир будет магазин...

    Добавлено спустя 5 минут 41 секунда

    Добавлено спустя 1 минута 17 секунд

    может кому интересно что и как у нас будет у входа )
    и я думаю жильцы квартиры №1 не обрадуются электрощитовой за стенкой...

  • El.Alex Junior Member
    офлайн
    El.Alex Junior Member

    44

    11 лет на сайте
    пользователь #1525560

    Профиль
    Написать сообщение

    44
    # 20 апреля 2016 22:44

    stelsser, на то он и первый этаж) сюрпризов на нем всегда хватает. Возле входа в подъезд радует велопарковка). Интересно, а контейнер для велосипедов тоже поставят по аналогии с предшествующими домами?
    То что, на 1-м этаже будет магазин непродтоваров это еще не факт. Назначение помещения можно потом изменить, инвестор сделает все под себя. А может это помещение вообще будет сдаваться под офис.

  • stelsser MemberАвтор темы
    офлайн
    stelsser Member Автор темы

    276

    14 лет на сайте
    пользователь #462694

    Профиль
    Написать сообщение

    276
    # 20 апреля 2016 23:08 Редактировалось stelsser, 1 раз.

    а100 это один большой сюрприз для будущих жильцов)
    возможно инвестор заранее заявил здесь торговую точку под конкретно что то, т.к. р-н новый может что из строительной сферы или благоустройства. насчет контейнеров не в курсе) возможно да)) будет очередное дизайнерское чудо укуренного творца))

    Добавлено спустя 12 минут 44 секунды

    я предполагаю что велопарковки на этой картинке это что обведено красным

  • Abyr Junior Member
    офлайн
    Abyr Junior Member

    87

    16 лет на сайте
    пользователь #184660

    Профиль
    Написать сообщение

    87
    # 22 апреля 2016 00:47

    Пожалуй пора бы уже самому посетить стройку в пятницу! Разведать что да как там)

    Andreykuku
  • stelsser MemberАвтор темы
    офлайн
    stelsser Member Автор темы

    276

    14 лет на сайте
    пользователь #462694

    Профиль
    Написать сообщение

    276
    # 22 апреля 2016 08:12
    Abyr:

    Пожалуй пора бы уже самому посетить стройку в пятницу! Разведать что да как там)

    наверно пора уже))

  • El.Alex Junior Member
    офлайн
    El.Alex Junior Member

    44

    11 лет на сайте
    пользователь #1525560

    Профиль
    Написать сообщение

    44
    # 23 апреля 2016 10:24

    Думаю будет интересно для тех, кто не состоит в группе Кедрового квартала вКонтакте:

    "Отчет о собрании актива 21.04.16
    1....
    2. В 28 поликлинике нам предоставлен терапевт, так же там можно сдать анализы и пройти флюорографию. От застройщика поступило предложение организовать амбулаторию в нашем квартале с врачами из боровлянской поликлиники. Взрослый и детский терапевты, прививочная и гинеколог. Для этой цели можно выделить помещение для товарищества в доме 9.6, так же застройщик дополнительно выделит двухкомнатную квартиру. Общая площадь составит 280 м2. В этом случае товарищество продолжит арендовать нынешнее помещение."

    P.S. Напоминаю эта информация из сети ВК.

  • goik Senior Member
    офлайн
    goik Senior Member

    1874

    20 лет на сайте
    пользователь #40324

    Профиль
    Написать сообщение

    1874
    # 23 апреля 2016 12:30

    Пока все в ожидании, советую почитать простые советы по приемке, т.е. на что в первую очередь обратить внимание

  • stelsser MemberАвтор темы
    офлайн
    stelsser Member Автор темы

    276

    14 лет на сайте
    пользователь #462694

    Профиль
    Написать сообщение

    276
    # 23 апреля 2016 12:51
    El.Alex:

    Думаю будет интересно для тех, кто не состоит в группе Кедрового квартала вКонтакте:

    "Отчет о собрании актива 21.04.16
    1....
    2. В 28 поликлинике нам предоставлен терапевт, так же там можно сдать анализы и пройти флюорографию. От застройщика поступило предложение организовать амбулаторию в нашем квартале с врачами из боровлянской поликлиники. Взрослый и детский терапевты, прививочная и гинеколог. Для этой цели можно выделить помещение для товарищества в доме 9.6, так же застройщик дополнительно выделит двухкомнатную квартиру. Общая площадь составит 280 м2. В этом случае товарищество продолжит арендовать нынешнее помещение."

    P.S. Напоминаю эта информация из сети ВК.

    двухкомнатная кв. для амбулатории? 280 м2 это надо примерно 3 квартиры..., откуда будут взяты дополнительные метры интересно если двушка 57 м2...

    Добавлено спустя 1 минута 16 секунд

    goik:

    Пока все в ожидании, советую почитать простые советы по приемке, т.е. на что в первую очередь обратить внимание

    тоже полезна инфа :znaika:

    Добавлено спустя 2 минуты 57 секунд

    есть информация по более подробным планировкам квартир с планируемыми данными по размерам, кому интересно обращайтесь

  • Nikitosss Member
    офлайн
    Nikitosss Member

    137

    17 лет на сайте
    пользователь #131770

    Профиль
    Написать сообщение

    137
    # 24 апреля 2016 16:35

    Ребята, как я понял, здесь много будущих жильцов именно с 17-го этажа. Может присутствует человек с 17 этажа, 2-х комнатная квартира, увеличенная кухня (такая квартира одна на этаже)?

  • El.Alex Junior Member
    офлайн
    El.Alex Junior Member

    44

    11 лет на сайте
    пользователь #1525560

    Профиль
    Написать сообщение

    44
    # 24 апреля 2016 17:14 Редактировалось El.Alex, 1 раз.

    Nikitosss, Добрый день! Присутствует) это создатель данной темы)