Ответить
  • mr.oddball Senior Member
    офлайн
    mr.oddball Senior Member

    5282

    12 лет на сайте
    пользователь #908890

    Профиль
    Написать сообщение

    5282
    # 8 апреля 2017 22:20
    Shalbr:

    чем это может быть чревато ?

    а строители-отделочники пояснили, чем это богато?)

    Не умеешь петь - не пей!
  • 215875 Senior Member
    офлайн
    215875 Senior Member

    501

    16 лет на сайте
    пользователь #215875

    Профиль
    Написать сообщение

    501
    # 8 апреля 2017 23:33 Редактировалось 215875, 1 раз.

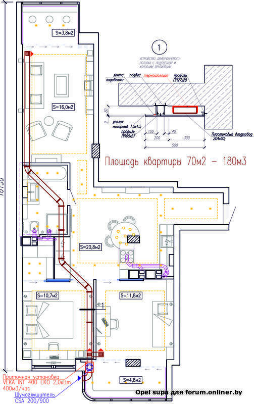
    Добрый день! Может кто подскажет сечение воздуховодов и решёток П1...П4 ? а то мне тут рассказывают если я поставлю короба с сечением 200х60 то вентиляция будет "свистеть".

  • Andry_S Senior Member
    офлайн
    Andry_S Senior Member

    11505

    24 года на сайте
    пользователь #2455

    Профиль
    Написать сообщение

    11505
    # 9 апреля 2017 12:58

    Оpel supa, на максимуме потока 200×60 шуметь будут однозначно, ещё и столько поворотов.
    Ситуацию можно значительно облегчить: п3 не нужен вообще, транзитное помещение для потоков из всех трех комнат, с точки зрения распространения кухонных запахов так будет тоже правильнее.
    В комнату 11.8 впуск делать прямо в углу от вентустановки под потолком. В комнате 10.7 аналогично прямо от магистрали, не нужно вытягивать канал к середине окна. В комнате 16 последний поворот лишний.
    Итого у вас будет фактически один канал в дальнюю комнату, 200×60 можно счесть достаточным.

  • wilson Senior Member
    офлайн
    wilson Senior Member

    22839

    20 лет на сайте
    пользователь #43316

    Профиль
    Написать сообщение

    22839
    # 9 апреля 2017 15:28 Редактировалось wilson, 1 раз.

    Зависит еще от мощности... у меня так 400кубов слышно ночью, причем ПВУ стоит на чердаке, на котором 300мм ваты, самы воздуховоды 200мм диаметра и диффузоры такие же...

    Я вообще не представляю, что должно подавать в канал 200х60, чтобы было тихо...

    Коридор в больнице был настолько длинный и светлый, что Вася проверил пульс.
  • Slava23 Senior Member
    офлайн
    Slava23 Senior Member

    1681

    23 года на сайте
    пользователь #8067

    Профиль
    Написать сообщение

    1681
    # 9 апреля 2017 15:56
    wilson:

    Зависит еще от мощности... у меня так 400кубов слышно ночью, причем ПВУ стоит на чердаке, на котором 300мм ваты, самы воздуховоды 200мм диаметра и диффузоры такие же...

    Еще зависит от мероприятий по глушению шума от установки в канале...

  • 215875 Senior Member
    офлайн
    215875 Senior Member

    501

    16 лет на сайте
    пользователь #215875

    Профиль
    Написать сообщение

    501
    # 9 апреля 2017 20:04

    Всем большое спасибо за ответ! На центр комнаты воздуховоды были вынесены исходя исключительно из дизайна потолка.

  • wilson Senior Member
    офлайн
    wilson Senior Member

    22839

    20 лет на сайте
    пользователь #43316

    Профиль
    Написать сообщение

    22839
    # 9 апреля 2017 20:22
    Slava23:

    wilson:

    Зависит еще от мощности... у меня так 400кубов слышно ночью, причем ПВУ стоит на чердаке, на котором 300мм ваты, самы воздуховоды 200мм диаметра и диффузоры такие же...

    Еще зависит от мероприятий по глушению шума от установки в канале...

    Стоит у меня глушитель systemair длиной 90см, вставки из гибких воздуховодов тоже есть - правда в этой части небольшие. А что еще должно быть?

    Коридор в больнице был настолько длинный и светлый, что Вася проверил пульс.
  • 215875 Senior Member
    офлайн
    215875 Senior Member

    501

    16 лет на сайте
    пользователь #215875

    Профиль
    Написать сообщение

    501
    # 9 апреля 2017 21:51

    Почитав мнение... вот так будет правильнее?

  • Andry_S Senior Member
    офлайн
    Andry_S Senior Member

    11505

    24 года на сайте
    пользователь #2455

    Профиль
    Написать сообщение

    11505
    # 9 апреля 2017 22:32 Редактировалось Andry_S, 1 раз.

    Оpel supa, в 11,8м ещё раньше можно впускать, прямо после глушителя. А магистраль просто прямую до упора в наружную стену комнаты 16м. Или две, параллельно )

    Добавлено спустя 3 минуты 42 секунды

    wilson, может у вас воздуховоды гофра?

  • Slava23 Senior Member
    офлайн
    Slava23 Senior Member

    1681

    23 года на сайте
    пользователь #8067

    Профиль
    Написать сообщение

    1681
    # 9 апреля 2017 23:05

    wilson, как ни странно это звучит, но замена подводок д200 к диффузорам на 127й сонодек существенно повысит акустический комфорт при незначительной просадке производительности.
    А первое и самое простое - снимаем диффузоры и вставляем в возд-д шумопоглащающие вставки. Правда смысл есть, если длина вставок будет 30 и более см.

    Оpel supa:

    Почитав мнение... вот так будет правильнее?

    Нет. По причине жесточайшего перетока звуков между нижними комнатами. В них же будет хорошо слышна и сама установка.
    В правой нижней комнате будет существенно меньше воздуха, чем в левой нижней.
    А воздуховод на дальнюю комнату слал выглядеть намного лучше.

  • Andry_S Senior Member
    офлайн
    Andry_S Senior Member

    11505

    24 года на сайте
    пользователь #2455

    Профиль
    Написать сообщение

    11505
    # 9 апреля 2017 23:34

    Slava23, баланс по комнатам выставить не проблема. Слышимость между комнатами - проблема, иначе как глушителями в том или ином виде не устранить. Ну и саму установку нужно прятать в серьёзный звукоизолирующий шкаф, а лучше размещать вне квартиры.

  • Slava23 Senior Member
    офлайн
    Slava23 Senior Member

    1681

    23 года на сайте
    пользователь #8067

    Профиль
    Написать сообщение

    1681
    # 10 апреля 2017 09:47
    Andry_S:

    Slava23, баланс по комнатам выставить не проблема.

    Если бы речь шла о производственных помещениях, то согласился бы. Поиграл ламелями в решетках и всего-то, пусть себе свистят.
    Но для жилья при нарисованной разводке нижние комнаты не отрегулировать цивилизованными методами.

    Slava23:

    В них же будет хорошо слышна и сама установка.

    Здесь тоже речь шла о шуме приходящем из канала. Т.к. само собой разумеется, что

    Andry_S:

    установку нужно прятать в серьёзный звукоизолирующий шкаф

    Что вполне себе решаемо, особенно если ночью использовать установку до 50%.

  • Andry_S Senior Member
    офлайн
    Andry_S Senior Member

    11505

    24 года на сайте
    пользователь #2455

    Профиль
    Написать сообщение

    11505
    # 10 апреля 2017 10:27

    Slava23, можно прямо в звукоизолирующем шкафу на выходе из установки вместо стандартного глушителя организовать разделение потока и панельный глушитель на 3 канала с двумя задвижками для балансировки. Без хрусталя ручной работы стандартными элементами не обойтись, но шкаф в любом случае надо делать, не вижу проблемы сделать шкаф с дополнительными конструктивными элементами.

  • Slava23 Senior Member
    офлайн
    Slava23 Senior Member

    1681

    23 года на сайте
    пользователь #8067

    Профиль
    Написать сообщение

    1681
    # 10 апреля 2017 21:57

    Andry_S, так и я о том же: как нарисовано делать нельзя. Надо извернуться и на носовом платке успеть и отглушиться, и растроИться, и заслонки всунуть.
    И все равно, если решетки в нижних комнатах не отнести подальше от "шкафа" сонодеками, то, очень вероятно, будет шумновато и на 50% мощности установки (ибо там спальни).

  • Andry_S Senior Member
    офлайн
    Andry_S Senior Member

    11505

    24 года на сайте
    пользователь #2455

    Профиль
    Написать сообщение

    11505
    # 11 апреля 2017 09:49 Редактировалось Andry_S, 1 раз.

    Относ в прямоугольном пластике мало что даст - он играет как барабан. Если относ тоже звукоизолирующий - тогда смысл есть.
    В звукоизолирующем шкафу вписаться не сложно: установка чуть более метра. В самом низу впускное отверстие 200мм, без фасонки ставим агрегат, 200 мм от пола. Итого сверху остается 1300-1500. Этого достаточно на кастомный трехканальный глушитель с плоскими шиберами, поворотом и тремя выходами под пластик 200х60.
    Я бы вынес установку на наружную стену прямо перед окном у которого сейчас нарисовано. Открыл окно - обслужил. Впуск все так же снизу и большой от пола до потолка кастомный трехканальный шкаф-глушитель на нынешнем месте. Вопрос только в уличной эстетике - прикрыть панелью в цвет фасада.

    Похоже заявителю не очень интересны наши измышления на его тему )

  • wilson Senior Member
    офлайн
    wilson Senior Member

    22839

    20 лет на сайте
    пользователь #43316

    Профиль
    Написать сообщение

    22839
    # 11 апреля 2017 18:12 Редактировалось wilson, 1 раз.

    Воздуховоды у меня оцинковка жесткая, закутанная в минвату 100мм. На вход в комнату идет кусок гибкого теплошумопоглащающего - отвеод в сторону и вниз. В другой ветке шума нет - там правда с изгибом идет метра 3 гибкий воздуховод. Был вариант вырезать часть жесткого с "шумной ветки" и поставить гибкий...

    А что за вставки?

    Коридор в больнице был настолько длинный и светлый, что Вася проверил пульс.
  • Andry_S Senior Member
    офлайн
    Andry_S Senior Member

    11505

    24 года на сайте
    пользователь #2455

    Профиль
    Написать сообщение

    11505
    # 12 апреля 2017 10:32

    wilson, слышен вентилятор и шум воздуха?

  • wilson Senior Member
    офлайн
    wilson Senior Member

    22839

    20 лет на сайте
    пользователь #43316

    Профиль
    Написать сообщение

    22839
    # 12 апреля 2017 10:38

    Сложно сказать, что слышно (не понятно для меня различие в этих двух шумах). Просто монотонный шум. Чем больше скорость выставляется, тем шумнее :D

    Коридор в больнице был настолько длинный и светлый, что Вася проверил пульс.
  • Andry_S Senior Member
    офлайн
    Andry_S Senior Member

    11505

    24 года на сайте
    пользователь #2455

    Профиль
    Написать сообщение

    11505
    # 12 апреля 2017 16:16 Редактировалось Andry_S, 1 раз.

    wilson, регулировка потока на этот канал в каком месте происходит(метраж от установки до впуска)? Что на впуске (фото)? Какой поток/скорость/диаметры?
    Вполне может быть гибкий отвод на самом впуске шлангом прикинулся свистит.

    У меня сейчас примерно 250 кубов/ч заходит через 8 не очень гладких отверстий D55 после большого панельного глушителя - вообще не слышно, только тяжелая штора надувается )
    В офисе около 200 кубов/ч заходит через решетку 180*130 - слышно как шипит даже на фоне работающих компов.

  • wilson Senior Member
    офлайн
    wilson Senior Member

    22839

    20 лет на сайте
    пользователь #43316

    Профиль
    Написать сообщение

    22839
    # 12 апреля 2017 20:32 Редактировалось wilson, 1 раз.

    Поможет или нет хз, в реально чуть по иному. От установки стоит глушитель, дальше ветка расходится на 2 основные магистрали. По рисунку шумит та, что идет влево-вниз. Глушитель на 250мм, дальше на тройнике идет разветвление на 200мм. Все воздуховоды и диффузоры на 200мм. Шумят все 3 выхода - 2 пальни на 2 этаже и одна спальня на первом. От тройника до первого входа в спальню - где-то 4.5-5м - это транзит на первый этаж (тоже шумит, чуть-чуть меньше) - выполнени как ответвление от жесткой трубы гибким до прохода через перекрытие, далее опять жесткий и сразу диффузор. Следующий отвод в спальню 2 этажа - 60-70см гибкого воздоховода-перекрытие-диффузор. Далее поворот и метра 2.3 до входа во вторую спальню 2 этажа также - 60-70см гибкого воздоховода-перекрытие-диффузор.

    В той ветке, где не шумит - там кусок метра 2.5-3 гибкого для смещения оси "магистрали" - думаю это дает шумоподавляющий эффект.

    Коридор в больнице был настолько длинный и светлый, что Вася проверил пульс.