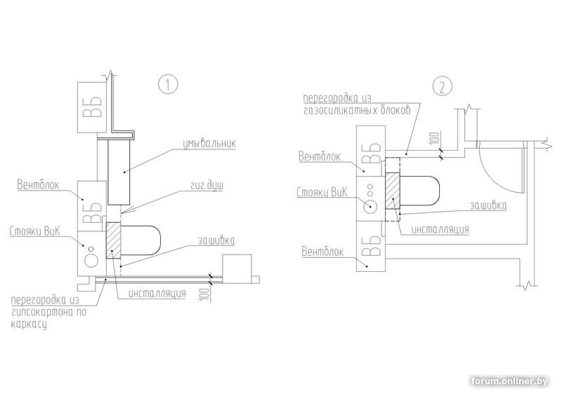
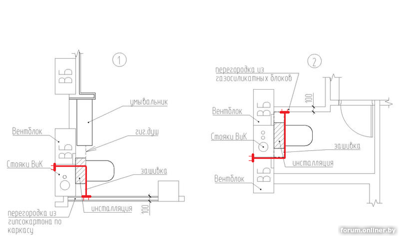
Хотим установить подвесной унитаз с инсталляцией. Вариантов слишком много, идей тоже. Хотелось бы услышать подсказки от людей с опытом в этом деле. Можно ли сэкономить и взять какой-нибудь Cersanit? Или лучше не рисковать и покупать подороже? Какая инсталляция самая надежная? Какие еще есть нюансы?
Вот мне недавно поведали, что очень важно начинать выкладку плитки от кнопки ,чтобы потом она криво в рисунок не врезалась. Подсказали, что есть система против брызг. Что еще?
Строительство и ремонт на Барахолке
Строительные и отделочные материалы
Инструменты и оборудование для ремонта и строительства
Двери. Окна. Рамы
Натяжные потолки
Напольные покрытия
Сантехника
Канализация. Вентиляция. Отопление
Услуги по отделочным строительным работам и ремонту
Переезд. Перевозки. Грузчики.
. Даже снижение объема и скорости слива в БРЕНДОВЫХ инсталляциях не очень влияет на уровень шума, а уменьшает или ликвидирует брызги и всплески воды (вылет). А , скорей всего в Вашей (дешман.) таких регулировок на сливном клапане нет 
































