art-triumph спасибо большое и за решение вопросов, и за оперативность!!! А мы думали в прихожей угловой шкаф ставить.
art-triumph спасибо большое и за решение вопросов, и за оперативность!!! А мы думали в прихожей угловой шкаф ставить.
|
офлайн
art-triumph
Senior Member
Автор темы
|
|
|
3057 |
10 лет на сайте Город:
|
Окажите нам, пожалуйста, помощь еще в одном вопросе. В гостиной в углах левой стены, как при входе, так и у окна выступают колонны одинаковые по размерам (указаны на рисунке). Как лучше их обыграть. Из вариантов, сделать между ними короб на потолке, что бы образовалась ниша для телевизора... или же к каждой колонне сделать идентичные короба на потолке, т. к. хотелось бы карниз у окна спрятать. Как лучше будет смотреться в живую?

Здравствуйте. Есть квартира свободной планировки. Хотим сделать 2 комнаты(детская+родителей) и еще гостиную совмещенную с кухней. Наброски вроде сделали как будут выглядеть стены. Но с гостиной возникают вопросы. Хочется чтобы и стол обеденный был, и место для игр с маленьким ребенком.

|
офлайн
art-triumph
Senior Member
Автор темы
|
|
|
3057 |
10 лет на сайте Город:
|
N-ROE,
Здравствуйте.
Если принимается данное мной планировочное решение, то вход в гостиную с одностворчатой дверью (что бы был нормальный шкаф). В этом случае колона при входе зрительно не играет никакой роли. А вот колонну слева от окна лучше было бы поддержать фальш колонной справа:

ChinaSeller,
Здравствуйте.
Дайте пожалуйста исходный план.
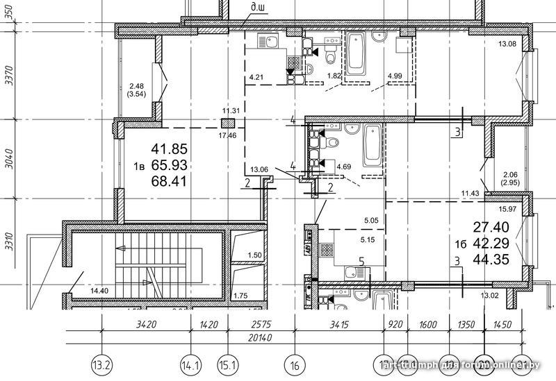
Забыл сказать, что будут жить двле взрослых и двое детей (7 лет и 1 год). Вот такой изначальный план.
|
офлайн
art-triumph
Senior Member
Автор темы
|
|
|
3057 |
10 лет на сайте Город:
|
art-triumph:N-ROE,
Здравствуйте.
Если принимается данное мной планировочное решение, то вход в гостиную с одностворчатой дверью (что бы был нормальный шкаф). В этом случае колона при входе зрительно не играет никакой роли. А вот колонну слева от окна лучше было бы поддержать фальш колонной справа:
Добавлено спустя 41 секундаChinaSeller,
А карниз не спрячем? Ну, ооочень хочется ![]()
|
офлайн
art-triumph
Senior Member
Автор темы
|
|
|
3057 |
10 лет на сайте Город:
|
N-ROE,
Специально ради игры в прятки занижать потолок не стоит. Есть разные варианты при которых карниз выглядит достаточно эстетично:




ChinaSeller,
Теперь все хорошо.
По возможности, сделаю вам расстановку.


Здравствуйте, не подскажете, как можно обыграть колонны и окно с двойным светом. Высота окна 4м плюс купол полтора. Заранее спасибо)

Это купол)
|
офлайн
art-triumph
Senior Member
Автор темы
|
|
|
3057 |
10 лет на сайте Город:
|
iw2h,
Здравствуйте.
Если из песни выдернуть только пару строчек, то песня не состоится.
У вас прекрасная возможность сделать уникальный интерьер, но рассматривать его надо в совокупности функции и эстетики - планировки и общей стилистики.
Без дизайнера и дизайн-проекта такие объекты делать не рекомендую. Слишком много будет ошибок и переделок.
Пока в плане концепции:
1) На купол - витраж (но рисунок и его цвет надо определять по общей стилистике)
2) На барабан (бетонный пояс) - мозаику (но рисунок и её цвет надо определять по общей стилистике)
3) По колоннам белая глянцевая плитка с полиуретановой капителью
4) По радиаторам отопления - декоративный экран из искусственного ротанга на деревянном каркасе
5) На окнах - только шторы из органзы без плотных штор
6) ОБЯЗАТЕЛЬНОЕ решение по приточно-вытяжной системе вентилирования и кондиционирования.
Добрый день, подскажите как лучше сделать комнату детскую, для девочек 8 и 13 лет.
Хочу у окна поставить на всю стену столешницу, чтоб оборудовать 2 рабочих места. Где лучше разместить 2 тахты, будет ли место для небольших шкафов встроенных. Мебель еще не покупалась, размеры будем подбирать.

План квартиры прилагаю, комната детская-14,8 кв.м.
Спасибо за советы) по мозаике и плитке особенно! Мозаика позволит отделить окна, а вот витражи-наверное очень дорогое удовольствие да и света будет меньше


Добрый день, уважаемый Владимир.
С удовольствие прочитал весь форум , почерпнул для себя много полезного, увидел у вас взвешенный и рациональный подход к организации жилплощади и внимание к простому человеку, делающему ремонт. Посему прошу вашего совета.
Дано: квартира площадью 85м2, проживать будут 2 взрослых, дочка полуторагодовалая, планируем еще ребенка в ближайшем будущем, на зимний период приезжают бабушка и дедушка.
Вот что нам думается: в большой спальне планируем детскую для дочки и будущего малыша.
Спальню в 12 м2 хотим закрепить за бабушкой и дедушкой, тут же рабочее место для ноутбука и место для книг. В спальне с балконом организовать нашу спальню , с местом для кроватки младенца на первый год-два. Санузлы хотим спланировать таким образом, чтобы ванная была ближе к входной двери т. е. поменять местами, в настоящее время после прогулки ребенка раздеваем в ванной , т.к. сыплется песок отовсюду. Кухню думаем перенести к окну, для лучшей освещенности рабочего места и возможности проветрить , но очень пугает перенос коммуникаций- водопровода, канализации, вентиляции. Большую комнату хотим расширить за счет коридора. Нравится скандинавский стиль.
Прошу рассмотреть наши размышления и их целесообразность. Спасибо.
|
офлайн
art-triumph
Senior Member
Автор темы
|
|
|
3057 |
10 лет на сайте Город:
|

Заранее прошу прощения за задержку с ответами.
Безусловно, помогу всем, чем смогу (в порядке живой очереди)))
Просто навалилось очень много работы...
iw2h,
В вашем случае света ОООчень много, а витраж это стекло. Да, потери будут, но незначительные.
Что же касается денег, то один хороший человек сказал такую фразу:
"Не говори это дешево или дорого, а скажи сколько стоит, а я для себя решу, на сколько это приемлемо."
Есть люди для которых 100руб/бел это очень много, а есть и те, для кого и 100 евр. разменная монета.
Добрый день,
зачиталась Вашей темкой и решилась просить совета, потому как мысли бродят хороводом.
Большую комнату в трешке мы отдали детям, девочкам 10 и 11 лет.
В данный момент в наличии после переезда (из того, что хотелось бы оставить):
- 2 светлые
кровати-тахты (размеры 95х205) с вместительными ящиками.
- большой стол, который пока стоит вдоль окна. Длина стола 325 см, длина столешницы без учета тумб по бокам - 234 см. При желании можно столешницу отделить и даже распилить (варианты пересматриваю разные). Ширина стола 62 см.
Есть еще кресло-мешок и старый комод. Шкаф не планируем, так как в коридоре стоит вместительный шкаф. Но вот комод или отдельные тумбы для белья и мелочи, думаю, необходимы. Как вариант рассматривала икеевское зеркало для будущих (да что уж там, настоящих) модниц.
Стол вдоль окна, если честно, уже бесит: превратился в сплошное неразобранное пространство, которое приводится в порядок только пару раз в неделю. Собственные рабочие места проще держать в порядке. Если разбить на 2 стола, то можно над каждым организовать полки, стенды из пробки, подвесные контейнеры те же икеевские и тп. А в данный момент все, что могло бы быть на стене, лежит на столах, под рукой.
И еще дверь до нас перенесли (отметила красным).
|
офлайн
art-triumph
Senior Member
Автор темы
|
|
|
3057 |
10 лет на сайте Город:
|
varvara2,
Здравствуйте.
Вы очень понятно все описали.
Обязательно сделаю расстановку, только чуть позже.
|
офлайн
art-triumph
Senior Member
Автор темы
|
|
|
3057 |
10 лет на сайте Город:
|
ChinaSeller,
Здравствуйте.
В вашем варианте планировки был ряд аномалий, связанный с искаженным масштабом предметов. Именно по этому я просил дать настоящий проект. Благодаря плану с размерами удалось понять масштаб квартиры. Исходя из состава вашей семьи мое предложение такое:


zonk,
Здравствуйте.
Расстановка достаточно простая, но функционально оправданная. Рекомендую распашные фасады на шкафы и шуфляды в их нижней части.

Так же предлагаю рассмотреть возможность принципиально переиграть назначение помещений. Приблизительно такое решения я делал уже ранее:
