21 дом по г.п. - Михаловская, 16
22 дом по г.п. - Михаловская, 14
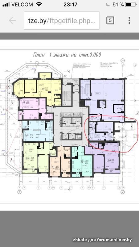
Сайт застройщика: http://tze.by

Сдача дома в эксплуатацию: 1 квартал 2019г. 2 жилых дома + ФОК + паркинг
высота потолков 2,7м;
без чистовой отделки;
штукатурка стен и перегородок из блоков и затирка монолитных стен;
черновая стяжка пола;
система отопления и вентиляции, сантехническая разводка по стоякам (без горизонтальной разводки) с поквартирным учётом расхода холодной и горячей воды без установки сантехнического оборудования и вентиляционных решеток;
электромонтажные работы: монтаж поквартирного распределительного щитка, монтаж розетки для плиты (без монтажа линий, электрозвонков, вентиляторов, светильников и другой электроаппаратуры по помещениям);
окна- стеклопакеты ПВХ;
остекление лоджии (распашные рамы ПВХ);
дверь наружная ДВП;
домофон.

https://docs.google.com/spreadsheets/d/1jOLcHjjbzZ4ci5PPgAUzp0vZS ... edit#gid=0
для добавления пишите https://profile.onliner.by/user/152510
Указываем: этаж, вид планировки, имя, ник на форуме и последнее слово подпункта 5.3 договора.





вид из окна



















