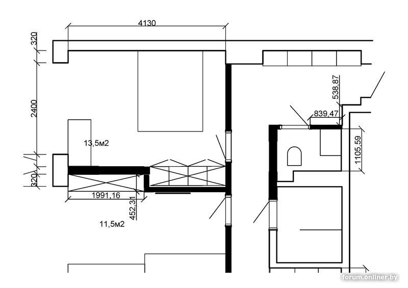
Bum123:Здравствуйте. Нужен совет. квартира 61м2.
Может чего лишнего или наоборот чего не хватает на предварительном варианте?
Да и тоннельный коридор не лучший вариант.
Может быть хотя бы
|
офлайн
mr.oddball
Senior Member
|
|
|
5286 |
12 лет на сайте Город:
|
Bum123:Здравствуйте. Нужен совет. квартира 61м2.
Может чего лишнего или наоборот чего не хватает на предварительном варианте?
Да и тоннельный коридор не лучший вариант.
Может быть хотя бы
mr.oddball:Bum123:Здравствуйте. Нужен совет. квартира 61м2.
Может чего лишнего или наоборот чего не хватает на предварительном варианте?
Да и тоннельный коридор не лучший вариант.
Может быть хотя бы
Согласен, стоит подумать чтобы хоть на 1 дверь меньше в коридоре сделать. Спасибо! Коридор 1 шириной не мало будет в месте тоннеля?
|
офлайн
mr.oddball
Senior Member
|
|
|
5286 |
12 лет на сайте Город:
|
Bum123:Согласен, стоит подумать чтобы хоть на 1 дверь меньше в коридоре сделать.
Я имел в виду Ваш вариант планировки с гостиной напротив санузлов.
mr.oddball:Bum123:Согласен, стоит подумать чтобы хоть на 1 дверь меньше в коридоре сделать.
Я имел в виду Ваш вариант планировки с гостиной напротив санузлов.
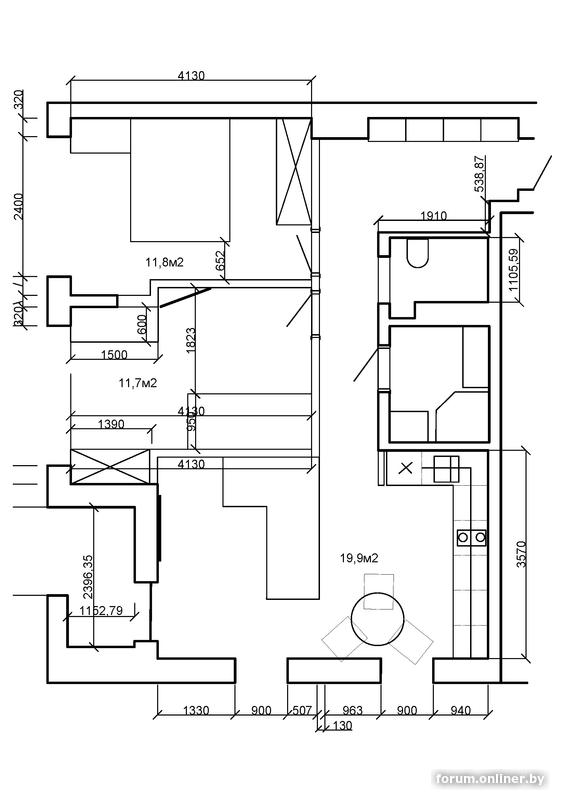
Решили, что альтернативный вариант, предложенный art-triumph предпочтительнее для нас будет. Сделав вход в с\у как вы предложили можно слева от входа стиралку поставить.

|
офлайн
mr.oddball
Senior Member
|
|
|
5286 |
12 лет на сайте Город:
|
Bum123, может там лучше биде (напротив двери)?
В семье большие любители принимать вредную ванну? Логичным была бы душевая кабина в правом дальнем углу, тогда хватит места и на стиралку справа, и умывальник напротив двери.
Bum123, перепроверьте идею ставить унитаз напротив двери и вообще к стенке с ванной. Там ширина чуть больше метра, будет неудобно. ИМХО.
Если предпочли вариант с коридором, то может оставить двери в санузел как есть. Чтобы прихожая была прихожей.
Bum123, писали о важности большой гостиной.
Конечно, аппендикс в детской не очень хорошо, но можно как-то обыграть наверное.
mr.oddball:Bum123, может там лучше биде (напротив двери)?
В семье большие любители принимать вредную ванну? Логичным была бы душевая кабина в правом дальнем углу, тогда хватит места и на стиралку справа, и умывальник напротив двери.Добавлено спустя 4 минуты 57 секундBum123, перепроверьте идею ставить унитаз напротив двери и вообще к стенке с ванной. Там ширина чуть больше метра, будет неудобно. ИМХО.
Добавлено спустя 1 минута 39 секундЕсли предпочли вариант с коридором, то может оставить двери в санузел как есть. Чтобы прихожая была прихожей.
Добавлено спустя 15 минут 35 секундBum123, писали о важности большой гостиной.
Конечно, аппендикс в детской не очень хорошо, но можно как-то обыграть наверное.
Спасибо за предложенный вариант с гостиной, решили что комнату детскую не будем уменьшать (и так маленькая). Ванной не будет, я планировал перегородку из стекла и душ. Стиралку может получится возле холодильника на кухне. ПММ не пользуемся. Дверь в с/у не перемещаю. Если тв в гостиной будет частично за окном (окно не панорамное (чтобы он был посередине напротив дивана) очень это будет неудобно?
|
офлайн
mr.oddball
Senior Member
|
|
|
5286 |
12 лет на сайте Город:
|
Bum123:Если тв в гостиной будет частично за окном (окно не панорамное (чтобы он был посередине напротив дивана) очень это будет неудобно?

Этот вариант ТВ имеет два минуса
а) объективный - контрсвет от окна
б) субъективный - невозможно смотреть ТВ из-за обеденного стола и с кухни
Сравните

Bum123:Стиралку может получится возле холодильника на кухне.
Моя жена прежде чем загрузить в стиралку разбирает белье над ванной - что-то встряхнет, проверит карманы и тп. Слабо представляю, как она делала бы это в кухне. Возможно, она совершает излишние действия, но без этого она никак
Bum123:детскую не будем уменьшать (и так маленькая)
Нормальная детская 10м2 если правильно спланировать. Как-то быстро Вас переубедили отказаться от большой гостиной
Bum123, а какое у Вас отопление? Если батареи, то где они установлены?
mr.oddball:Bum123:Если тв в гостиной будет частично за окном (окно не панорамное (чтобы он был посередине напротив дивана) очень это будет неудобно?
Этот вариант ТВ имеет два минуса
а) объективный - контрсвет от окна
б) субъективный - невозможно смотреть ТВ из-за обеденного стола и с кухниСравните
Добавлено спустя 2 минуты 57 секундBum123:Стиралку может получится возле холодильника на кухне.
Моя жена прежде чем загрузить в стиралку разбирает белье над ванной - что-то встряхнет, проверит карманы и тп. Слабо представляю, как она делала бы это в кухне. Возможно, она совершает излишние действия, но без этого она никак
Добавлено спустя 1 минута 48 секундBum123:детскую не будем уменьшать (и так маленькая)
Нормальная детская 10м2 если правильно спланировать. Как-то быстро Вас переубедили отказаться от большой гостиной
mr.oddball, в варианте где уменьшена детская в гостиной за счет смещения обеденного стола уменьшена кухня что плохо. Не понято чем задействовать пространство с/у-шкаф если только. Биде не планируем. 2 окна в гостиной выходят на юго-восточную сторону - не знаю будет ли критичен контрсвет (т.к. 2 окна в комнате как вариант опускать роль штору окна за тв при просмотре).
|
офлайн
mr.oddball
Senior Member
|
|
|
5286 |
12 лет на сайте Город:
|
|
офлайн
mr.oddball
Senior Member
|
|
|
5286 |
12 лет на сайте Город:
|
Bum123:тв у радиатора отопления это плохо
Поэтому я и спросил о радиаторах.
При прямоугольной гостиной
Стол или круглый или квадратный под 45°, возможно, улучшит проходы.
Попробуйте линейную кухню.
Bum123,
Столешница глубиной 700 мм, как у меня, и будет места более-менее достаточно.
mr.oddball, спасибо тебе за помощь, твои советы убедили многое поменять! радиаторы везде будут под окнами и окна непанорамные (обычные по размерам с подоконниками) Что то такое получается

|
офлайн
mr.oddball
Senior Member
|
|
|
5286 |
12 лет на сайте Город:
|
Bum123:mr.oddball, спасибо тебе за помощь
Пжлст, тем более это всего лишь мнение без ответственности ))
Угловой диван здесь сомнителен, очень мало места. При указанных размерах будете сбивать ноги при попытке пройти в зону ТВ.
Если холодильник у двери устраивает, то рассмотрите вариант отказаться от угловой кухни, ее польза сомнительна.
Для сдвига обеденного стола правее может быть имеет смысл две последние секции кухни заменить на неглубокие пеналы (или сервант).
ИМХО, не стоит делать еще одну стенку ломаной ради этого небольшого выигрыша в м2,
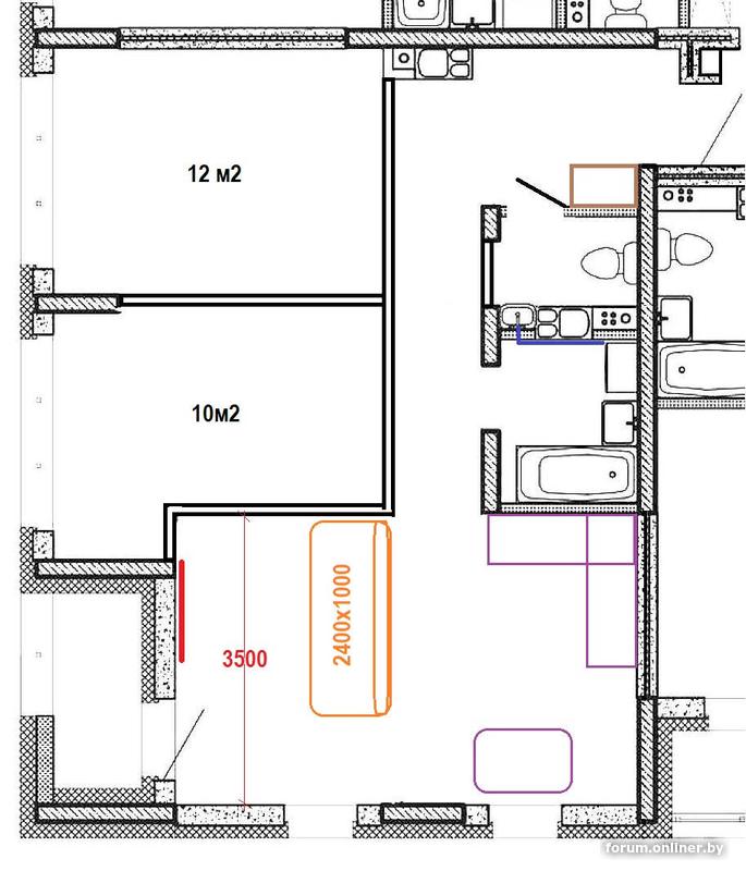
mr.oddball, сломав стенку между жилыми комнатами есть возможность иметь не спальню и детскую а 2 комнаты где можно полноценно разместить 2спальную кровать без переделок в обоих комнатах. Так же, сломав стенку между комнатами есть возможность, в детской, в случае необходимости, поставить вместо кровати диван или тахту раскладную со спальным местом на 2 человека. В гостиной будет диван с оттоманкой размеры: 2440×1650×970 мм проход остается 1 метр до стены. Угловая кухня для того чтобы холодильник был спрятан. Прямая кухня хороший вариант но холодильник спрятать хочется. Пенал или сервант можно рассмотреть или будем использовать шкафчики за стулом в углу с редко используемыми вещами и можно сместить стол со стульями ближе к кухне.
извиняюсь но не знаю как скрыть фото.


|
офлайн
mr.oddball
Senior Member
|
|
|
5286 |
12 лет на сайте Город:
|
Bum123:Угловая кухня для того чтобы холодильник был спрятан.
Это субъективно, У меня два отдельностоящие холодильника. Если они большие (желательно) и красивые (субъективно), то их грех прятать. Лучше деньги за прятание потратить на размер, качество и внешний вид холодильника. ИМХО.
Открытые полки как на картинке - красиво. Но нерационально и пыльно.
Bum123:сломав стенку между жилыми комнатами
Забудьте. Как сделаете этот ремонт, так и будете жить ![]()
mr.oddball:Bum123:Угловая кухня для того чтобы холодильник был спрятан.
Это субъективно, У меня два отдельностоящие холодильника. Если они большие (желательно) и красивые (субъективно), то их грех прятать. Лучше деньги за прятание потратить на размер, качество и внешний вид холодильника. ИМХО.
Открытые полки как на картинке - красиво. Но нерационально и пыльно.
Добавлено спустя 52 секундыBum123:сломав стенку между жилыми комнатами
Забудьте. Как сделаете этот ремонт, так и будете жить
Сломав стенку я имел ввиду зигзаг на стене между жилыми комнатами который увеличивает детскую.. В том то и дело, что сегодня в проекте это детская комната, я согласился чтобы она была без перелома по стене. Но через несколько лет может возникнуть в потребности установки дивана на 2 персоны, например (ребенок то растет), может он не захочет идти отдельно жить и т.д. Поэтому сейчас хочу сделать 2 комнаты с возможностью проживания в них по 2 человека и установки 2 спальной кровати в обоих комнатах без переделки ремонта в будущем.
|
офлайн
Ромашка2010
Neophyte Poster
|
|
|
26 |
15 лет на сайте Город:
|
2956032:Ромашка2010:Добрый вечер! Спасибо огромное за доработку, как вариант, буду думать. Только при в входе шкаф ну совсем не станет - узко( На плане не очень видно наверное пропорции,при входе только тумба какая- нибудь да и влезет(
Сейчас сброшу свою мысль по жилью, может глянете? Какие возможны ошибки или подводные камни в такой расстановке и планировке?!
Может есть еще идеи? Критика?
P. S. Выше в сообщениях читала на счёт кухня - гостиная, не очень идея, но хотелось бы именно общее место побольше.
Заранее благодарю за все отклики! 😊Перевес входной двери (изменение направления открывания) не надо согласовывать?
Над тумбой на входе ничего не помешает расположить «шпалы» вешалок, полку для головных уборов, полочку для мелочей, а выше уровня двери полноценную антресоль.
Напротив шкафа в коридоре можно второй организовать.
Чем так привлекает Г-образное расположение кухни? Мойка на углу - плохое решение. Я бы там где у Вас нарисован холодильник и мойка сделал шкафы со встроенными СтМ/СуМ, печками, кофеварками, а кухню расположил однолинейно без навесных шкафов с открытой вытяжкой и полками (или сделал в минималистическом стиле, как у mr.oddball). Стеклянную перегородку и прочую дурь с объединением — исключил.
Спасибо за рекомендации, буду думать. Согласовывать изменения придётся и так и так, поэтому одним больше, не страшно,расстояние позволяет на изменение направления двери. А вот г-образная кухня действительно привлекает своим удобством: в холодильник залез-продукты рядом, тут же поставил, следующее движение, помыл всё, а дальше и к плите можно было бы. Я вот сейчас смотрю "эти стены в ровень с холодильником", так не удобно же, и духовки на уровне пояса, достать что-то с пылу с жару, опасность ещё та, микроволновки на уровне лица?! А вот стиралка внизу, это вариант, хотя при объединения кухня - гостиная, стирка не уместна. На счёт перегородки может вы и правы, стенка нужна, но объединение это всё-таки удобство. Наверное сколько людей, столько и взглядов на общее времяпрепровождения, кто-то по комнатам любит, а в моём случае всегда всё общение в кухня, да залах было, поэтому сейчас однозначно будет объединение пространств. Спасибо за ваши рассуждение по моей теме, вот тоже многое поняла, как всё же хочу сделать☺️
art-triumph:Ромашка2010, Здравствуйте. Немного доработал Ваш вариант )))
Добавлено спустя 48 минут 32 секундыBum123, Здравствуйте. Предлагаю рассмотреть вариант с альтернативным решением. Шкаф в прихожей с фронтальной навеской.
Спасибо большое за наглядность, интересно видеть всё, как в живую!😁 Скажите, а в чем практичность холодильник к окну? Слева от него же всегда тень будет, тёмный угол требующий всегда подсветку 🤔 И на счёт стены в меньшей комнате хотела уточнить, на изображение снос стены и создание стены с изломом для кровати? Или не правильно поняла?
|
офлайн
art-triumph
Senior Member
Автор темы
|
|
|
3051 |
10 лет на сайте Город:
|
Ромашка2010, 1) Если холодильник ставить при входе образуется коридор, что зрительно уменьшит ощущение от общего пространства. Тень от холодильника никак не мешает: если Вы проведете линию под 45гр. от угла окна (условный дневной свет), то увидите, что она пройдет мимо угла холодильника.
2) Излом для кровати надо создавать так как комната 2350мм, а кровать 2100 (с изголовьем) - для прохода маловато. В такой ситуации даже дополнительные 400мм играют свою роль.
PS Для того, что бы указать, кому адресовано послание не надо нажимать "ЦИТИРОВАТЬ", достаточно кликнуть по нику адресанта.
|
офлайн
art-triumph
Senior Member
Автор темы
|
|
|
3051 |
10 лет на сайте Город:
|
Добрый день, может кто-то готов взяться за такое, пристройка на даче около 30 м2 коробка. Требуется дизайн-проект по разводке электрики, сантехники, дизайн помещения и т.д., который будет гармонировать с дачей.