Ответить
  • Rhezus Клуб СамоделкиныхАвтор темы
    офлайн
    Rhezus Клуб Самоделкиных Автор темы

    29433

    23 года на сайте
    пользователь #5127

    Профиль
    Написать сообщение

    29433
    # 5 ноября 2003 19:02 Редактировалось DOLBO, 198 раз(а).

    Телепрограмма БТ 24 "Кошелек и жизнь" (эфир 04.10.2013).
    новая редакция постановления о перепланировках, «сколько стоят строительные мечты или перепланировка под ключ?». И напоследок – без неудобств и бумажной волокиты.


    ____________________________________________________________________________________

    Белсат ТВ. программа "Асабісты капітал"
    Согласование перепланировки.
    эфир 03.02.2014


    ____________________________________________________________________________________

    Телетрансляция ток-шоу "Форум" по каналу БТ1
    (вопросы перепланировки, оформления, согласования, новые правила и нормы с 2013 года)!
    эфир 30.09.2013


    ____________________________________________________________________________________

    Программа на БТ1 "Сфера интересов": перепланировка (2013)
    вопросы перепланировки и согласования, мнения экспертов и полезная информация
    эфир 24.09.2013


    ____________________________________________________________________________________

    [censored]
    ____________________________________________________________________________________

    Телеканал УКРАИНА
    События недели: Трагическая перепланировка.
    В Луцке обрушился подъезд. Что можно, а что нельзя сносить в доме?
    Опубликовано 18 Июн 2012 г.


    ___________________________________________________________________________________
    Еще полезные статьи по теме перепланировки:
    Как правильно сделать перепланировку в стандартной панельке?

    [url=https://realty.[censored]/news/offtop-realty/624231.html?fbclid=IwAR3wsVSCVvytbDgXbiHJv8uwnhci9EUIyDMrzsBgB5laeb1G2Y2dl5hxvmg]Ванная и кухня на лоджии, холодильник в вентшахте — все незаконно. Рассказываем, как с этим жить

    Как сделать перепланировку в квартире и остаться в живых: Упрощаем задачу

    FAQ (часто задаваемые вопросы) по вопросам перепланировки:

    инициатор переустройства и (или) перепланировки (далее – инициатор) – гражданин (собственник жилого и (или) нежилого помещений частного жилищного фонда, наниматель жилого помещения государственного жилищного фонда), гражданин, являющийся членом организации застройщиков (далее – гражданин), а также юридическое лицо или индивидуальный предприниматель, которые инициируют переустройство и (или) перепланировку;

    перепланировка – изменение планировочных решений жилого и (или) нежилого помещений в процессе выполнения ремонтно-строительных работ;

    переустройство – изменение инженерных систем (демонтаж, установка, замена или перенос инженерных сетей, электрического, санитарно-технического или иного оборудования) в жилом и (или) нежилом помещениях и (или) конструктивных элементов в процессе выполнения ремонтно-строительных работ;

    самовольные переустройство и (или) перепланировка – переустройство и (или) перепланировка, произведенные без согласования (разрешения) с соответствующим местным исполнительным и распорядительным органом.

    Реконструкция жилого и (или) нежилого помещения в многоквартирном, блокированном жилом доме, одноквартирного жилого дома, а также нежилых построек – совокупность работ и мероприятий, направленных на использование по новому назначению этого дома, помещений и нежилых построек и (или) связанных с изменением их основных технико-экономических показателей и параметров.

    Холл – помещение, вид прихожей в квартире (одноквартирном жилом доме) или помещение обычно в общественных, административных зданиях, предназначенное для отдыха, ожидания.

    Прихожая (передняя) – часть квартиры (одноквартирного жилого дома), имеющая непосредственный выход во вспомогательные помещения жилого дома либо на придомовую территорию, улицу и тому подобное.

    Жилая комната – отдельное отапливаемое помещение для проживания в квартире (одноквартирном жилом доме), имеющее естественное освещение и предназначенное для сна, отдыха, досуга, приема пищи. К жилым комнатам не относятся санитарные узлы, кухни, прихожие, гардеробные и тому подобное, а также производственные помещения для индивидуальной трудовой деятельности или надомного труда, если выполняемые в этих помещениях процессы не могут быть совмещены с функциями жилых комнат.
    Комнаты в квартире (одноквартирном жилом доме), подходящие под определение жилой комнаты, но на момент обследования используемые в других целях (кабинет, библиотека и другое), следует учитывать как жилые.

    Балкон – огражденная наружная площадка, наполовину и более (площади) выступающая за пределы граничащих с ней наружных стен здания и открытая во внешнее пространство не менее чем с двух сторон.

    Лоджия – перекрытая и огражденная наружная площадка, более чем на половину (площади) заключенная в пределах граничащих с ней наружных стен здания и, как минимум, с одной стороны открытая во внешнее пространство.

    Ведомость технических характеристик недвижимого имущества – документ, составляемый по результатам технической инвентаризации или проверки характеристик построенных, а также измененных самовольно или в нарушение законодательства Республики Беларусь объектов недвижимого имущества, содержащий описание фактического состояния объекта недвижимого имущества, сведения о составе, площади и других его характеристиках, адрес (местонахождение) и другие данные об объекте.

    Кухня – отдельное помещение с плитой, печью для приготовления пищи. Допускается сообщение кухни со смежно расположенной жилой комнатой (общей) посредством дверных проемов, а также по заданию на проектирование допускается объединение кухни, оборудованной электроплитой, с жилой комнатой (общей) и прихожей в единое пространство с созданием в быту функциональных зон за счет расстановки мебели.

    Освещение естественное – освещение помещений светом неба (прямым или отраженным), проникающим через световые проемы в наружных ограждающих конструкциях.

    Перегородка – вертикальная внутренняя ограждающая конструкция, разделяющая смежные помещения в капитальном строении; перегородки бывают глухие и с проемами, полные и не доходящие до потолка.

    Подсобные помещения – помещения, находящиеся внутри квартиры (одноквартирного жилого дома) и предназначенные для хозяйственно-бытовых нужд проживающих (коридоры, санузлы, кладовые, прихожие, кухни и другие нежилые помещения).

    Санитарный узел – санитарно-гигиеническое помещение в квартире, в котором размещаются ванна или душ, умывальник, унитаз, возможно биде и стиральная машина. Различают совмещенный санитарный узел, в котором санитарно-технические приборы размещаются в одном помещении.

    согласно ИНСТРУКЦИИ о порядке проведения технической инвентаризации и проверки характеристик капитальных строений (зданий, сооружений), незавершенных законсервированных капитальных строений, изолированных помещений (см выше):

    80.1. жилая площадь жилого помещения (квартиры, одноквартирного жилого дома) определяется как сумма площадей жилых комнат и площадей встроенных шкафов для одежды и кладовых (гардеробных), открывающихся в сторону жилых комнат.
    Если жилая комната (гостиная) отделена от кухни, оборудованной электрической плитой, стеной (перегородкой) с проемом, не оборудованным дверью, то сохраняются наименование и функциональное назначение помещений, при этом площадь каждого помещения подсчитывается отдельно.
    Если жилая комната (гостиная) имеет общее пространство с кухней, оборудованной электрической плитой, то такое помещение соответствует признакам жилой комнаты с кухонным оборудованием, ее площадь подсчитывается как площадь одного помещения;

    - замена или перенос систем газоснабжения, центрального отопления, мусороудаления, газоудаления;
    - устройство гидро-, паро-, тепло- и звукоизоляции;
    - изменения в несущих конструкциях;
    - изменение площади, количества жилых комнат и подсобных помещений в квартире за счет разборки существующих и (или) устройства новых перегородок;
    - изменение площади и количества помещений в изолированных нежилых помещениях за счет разборки существующих и (или) устройства новых перегородок;
    - устройство, увеличение проемов в ненесущих стенах и перегородках.

    Иные работы не являются работами по переустройству и (или) перепланировке.

    работы по:
    - изменению назначения, количества и (или) общей площади жилых и (или) нежилых помещений в многоквартирных, блокированных жилых домах, одноквартирных жилых домов и (или) нежилых построек;

    - изменению строительного объема или общей площади жилых и (или) нежилых помещений в многоквартирных, блокированных жилых домах, одноквартирного жилого дома и (или) нежилых построек;

    - замене несущих конструкций (отдельных видов таких конструкций) жилых и (или) нежилых помещений в многоквартирных, блокированных жилых домах, одноквартирного жилого дома и (или) нежилых построек;

    - устройству балконов, лоджий, веранд, террас, а также пандусов для передвижения инвалидов-колясочников с первого этажа на придомовую территорию;

    - устройству неотапливаемых кладовых и погребов в пространстве под балконами и лоджиями первых этажей многоквартирных, блокированных жилых домов без использования подвальных помещений таких домов с обустройством доступа в эти кладовые и погреба с балконов и лоджий посредством люков;

    - инженерному оборудованию (переоборудованию) жилых и (или) нежилых помещений в многоквартирных, блокированных жилых домах, одноквартирных жилых домов, а также нежилых построек;

    - устройству (переустройству) наружных сетей, кроме магистральных.

    Иные работы не являются работами по реконструкции, и для их проведения не требуется решение о разрешении на реконструкцию.

    - с нарушением строительных, противопожарных, санитарно-эпидемиологических требований, законодательства об охране историко-культурного наследия, архитектурной, градостроительной и строительной деятельности;
    - приводящие к снижению несущей способности грунтов оснований фундаментов, конструкций фундаментов, колонн, стен, балок, перекрытий, опор, кровель, а также нарушению гидро-, паро-, тепло- и звукоизоляции, био- и огнестойкости несущих и ограждающих конструкций;
    - влекущие за собой нарушение режима работы систем дымо- и газоудаления, а также нарушение и ухудшение параметров работы инженерно-технического оборудования дома или отдельных помещений;
    - вентиляционных шахт и каналов;
    - балконов и лоджий в отапливаемые помещения;
    - связанные с устройством жилых помещений без естественного освещения, а также с установкой перегородок, попадающих в оконные проемы;
    - связанные с установкой дополнительного оборудования центрального отопления, горячего водоснабжения и электротехнического оборудования, если это повлечет превышение проектных расчетных инженерных нагрузок на одно помещение;
    - с изменением архитектурного и цветового решения фасада жилого дома;
    - ведущие к снижению эксплуатационной пригодности конструкций жилого дома;
    - если жилой дом в установленном порядке признан не соответствующим установленным для проживания санитарным и техническим требованиям и не подлежит восстановлению.
    - замена или перенос систем газоснабжения, центрального отопления, мусороудаления, газоудаления;
    - устройство гидро-, паро-, тепло- и звукоизоляции;
    - изменения в несущих конструкциях.
    - изменение площади, количества жилых комнат и подсобных помещений в квартире за счет разборки существующих и (или) устройства новых перегородок;
    - изменение площади и количества помещений в изолированных нежилых помещениях за счет разборки существующих и (или) устройства новых перегородок;
    - устройство, увеличение проемов в ненесущих стенах и перегородках.
    Жилищный кодекс.
    Статья 64. Переустройство и перепланировка жилого помещения

    Переустройство и перепланировка жилого помещения государственного жилищного фонда могут производиться в целях повышения благоустройства жилого помещения и допускаются с согласия нанимателя и проживающих с ним совершеннолетних членов семьи и разрешения наймодателя.
    Отказ нанимателя или совершеннолетних членов его семьи на переустройство или перепланировку жилого помещения может быть оспорен в судебном порядке, если имеется разрешение наймодателя на переустройство или перепланировку.
    Наниматель, допустивший самовольное переустройство или перепланировку жилого помещения, обязан за свой счет привести это жилое помещение в прежнее состояние.

    см. выше ПОСТАНОВЛЕНИЕ СОВЕТА МИНИСТРОВ РЕСПУБЛИКИ БЕЛАРУСЬ от 16 мая 2013 г. № 384
    27. Самовольные переустройство и (или) перепланировка запрещены.

    28. Гражданин, юридическое лицо или индивидуальный предприниматель, осуществившие самовольные переустройство и (или) перепланировку, обязаны получить согласование (разрешение) местного исполнительного и распорядительного органа таких переустройства и (или) перепланировки.
    Согласование (разрешение) самовольных переустройства и (или) перепланировки выдается в случае, если переустройство и (или) перепланировка не влияют на безопасность эксплуатируемого здания и выполнены в соответствии с требованиями технических нормативных правовых актов, что подтверждается техническим заключением. Техническое заключение оформляется на основании ведомости технических характеристик на изолированное помещение по результатам общего или детального (при необходимости) обследования строительных конструкций и инженерных систем, проведенного в установленном порядке в соответствии с техническими нормативными правовыми актами юридическим или физическим лицом, в том числе индивидуальным предпринимателем, имеющим право на осуществление данного вида деятельности в соответствии с законодательством. Не требуется наличие ведомости технических характеристик на изолированное помещение при производстве работ по переустройству и (или) перепланировке, указанных в абзацах втором и третьем части первой пункта 3 настоящего Положения.
    Такие обследования, а также изготовление ведомости технических характеристик на изолированное помещение проводятся по заказу и за счет средств гражданина, юридического лица или индивидуального предпринимателя, осуществивших самовольные переустройство и (или) перепланировку.

    28.1. Для получения согласования (разрешения) самовольных переустройства и (или) перепланировки гражданин подает в местный исполнительный и распорядительный орган заявление и представляет документы, перечисленные в подпункте 1.1.211 пункта 1.1 перечня административных процедур, осуществляемых государственными органами и иными организациями по заявлениям граждан.
    Для получения согласования (разрешения) самовольных переустройства и (или) перепланировки юридическое лицо, индивидуальный предприниматель подают в местный исполнительный и распорядительный орган заявление и представляют документы, указанные в подпункте 8.1.81 пункта 8.1 единого перечня административных процедур, осуществляемых государственными органами и иными организациями в отношении юридических лиц и индивидуальных предпринимателей.

    28.2. При рассмотрении местным исполнительным и распорядительным органом заявления гражданин, юридическое лицо или индивидуальный предприниматель в согласованное с ними время обязаны предоставить доступ в жилое и (или) нежилое помещения представителям организации, осуществляющей эксплуатацию жилищного фонда и (или) предоставляющей жилищно-коммунальные услуги, и местного исполнительного и распорядительного органа.
    По результатам осмотра жилого и (или) нежилого помещений составляется акт технического осмотра жилого и (или) нежилого помещений, в котором приводятся сведения о соответствии существующей планировки техническому заключению, а также о техническом состоянии конструкций и инженерного оборудования этих помещений. Акт технического осмотра жилого и (или) нежилого помещений составляется в произвольной форме, подписывается гражданином, юридическим лицом или индивидуальным предпринимателем и уполномоченным должностным лицом организации, осуществляющей эксплуатацию жилищного фонда и (или) предоставляющей жилищно-коммунальные услуги, и утверждается представителем местного исполнительного и распорядительного органа.

    28.3. На основании документов, представленных гражданином, юридическим лицом или индивидуальным предпринимателем, и актов технического осмотра жилого и (или) нежилого помещений местный исполнительный и распорядительный орган не позднее одного месяца со дня подачи заявления принимает решение о согласовании (разрешении) самовольных переустройства и (или) перепланировки либо об отказе в согласовании (разрешении) самовольных переустройства и (или) перепланировки с указанием оснований для отказа, установленных в пункте 15 настоящего Положения, и сообщает об этом гражданину, юридическому лицу или индивидуальному предпринимателю.
    Решение местного исполнительного и распорядительного органа о согласовании (разрешении) самовольных переустройства и (или) перепланировки должно содержать фамилию, собственное имя, отчество (если таковое имеется) гражданина, индивидуального предпринимателя или наименование юридического лица, осуществивших самовольные переустройство и (или) перепланировку, сведения о жилом и (или) нежилом помещениях (адрес, инвентарный номер в соответствии с данными единого государственного регистра недвижимого имущества, прав на него и сделок с ним (при наличии), иные сведения (при необходимости).

    28.4. Составление технического паспорта на соответствующее недвижимое имущество и государственная регистрация изменения недвижимого имущества в результате самовольного переустройства и (или) перепланировки осуществляются организациями по государственной регистрации недвижимого имущества, прав на него и сделок с ним в порядке, установленном законодательством о государственной регистрации недвижимого имущества, прав на него и сделок с ним.

    29. В случае отказа местного исполнительного и распорядительного органа в согласовании (разрешении) самовольных переустройства и (или) перепланировки жилое и (или) нежилое помещения в срок, установленный местным исполнительным и распорядительным органом, приводятся в прежнее состояние лицом, осуществившим самовольные переустройство и (или) перепланировку, или за его счет по решению местного исполнительного и распорядительного органа.
    Восстановительные работы по приведению жилого и (или) нежилого помещений в прежнее, до проведения самовольных переустройства и (или) перепланировки, состояние производятся в соответствии с порядком производства и приемки работ по переустройству и (или) перепланировке, установленным настоящим Положением.

    30. Гражданин, юридическое лицо или индивидуальный предприниматель, осуществившие самовольные переустройство и (или) перепланировку, несут ответственность в соответствии с законодательными актами.

    При вопросах о своих перепланировках, желательно указывать исходные данные:
    - территориальное расположение дома (к какому ЖРЭО, Администрации района г. Минска относится)
    - конструкция дома
    - этаж и этажность
    - материал стен, толщина
    - наличие газовой или электроплиты на кухне
    - план перепланировки "до и после"

    З.Ы. Rhezus вопросами утверждения перепланировок никогда не занимался и не занимается - просьба в личку не писать!

    согласно ПОСТАНОВЛЕНИЯ СОВЕТА МИНИСТРОВ РЕСПУБЛИКИ БЕЛАРУСЬ от 16 мая 2013 г. № 384 (с изменениями №180 от 09.03.2015)

    17. Для выполнения переустройства и (или) перепланировки, требующих разработки проекта, инициатор после получения согласования (разрешения) местного исполнительного и распорядительного органа заключает договор подряда на выполнение проектных работ с разработчиком проектной документации.
    Проведение государственной экспертизы проекта обеспечивается разработчиком проектной документации в случае, когда при переустройстве и (или) перепланировке производятся изменения в несущих конструкциях жилых и (или) нежилых помещений в многоквартирных жилых домах, а также жилых и (или) нежилых помещений в блокированных жилых домах высотой более 7 метров и одноквартирных жилых домов высотой более 7 метров.

    18. Инициатор обеспечивает осуществление технического надзора за выполнением работ по переустройству и (или) перепланировке, предусмотренных проектом.

    19. Работы по переустройству и (или) перепланировке, указанные в пункте 7 настоящего Положения:
    могут выполняться в блокированных и одноквартирных жилых домах высотой до 7 метров самим инициатором;
    выполняются в многоквартирных жилых домах, а также блокированных и одноквартирных жилых домах высотой более 7 метров только по договорам строительного подряда с юридическими или физическими лицами, в том числе индивидуальными предпринимателями, имеющими право на осуществление архитектурной, градостроительной и строительной деятельности (далее – подрядчик).

    22. Завершение работ по переустройству и (или) перепланировке подтверждается актом приемки выполненных работ по переустройству и (или) перепланировке жилого и (или) нежилого помещений по форме, утверждаемой Министерством архитектуры и строительства
    В состав приемочной комиссии входят подрядчик и (или) инициатор либо их представители, а также представители организации, осуществляющей эксплуатацию жилищного фонда и (или) предоставляющей жилищно-коммунальные услуги, местного исполнительного и распорядительного органа и при необходимости разработчик проектной документации и представитель организации, осуществляющей технический надзор.
    В состав приемочной комиссии по согласованию с другими организациями и органами государственного надзора могут быть дополнительно включены их представители.

    23. Инициатор обязан предъявить приемочной комиссии, указанной в пункте 22 настоящего Положения, следующие документы:
    - разработанный и согласованный в установленном порядке проект*;
    - договор строительного подряда*;
    - договор на осуществление технического надзора*;
    - акты на скрытые работы*;
    - ведомость технических характеристик на изолированное помещение, составленную организацией по государственной регистрации недвижимого имущества, прав на него и сделок с ним, по результатам проверки характеристик помещения при выполнении его переустройства и (или) перепланировки
    ______________________________
    *Представляются, если такие документы предусмотрены для производства работ по переустройству и (или) перепланировке.

    25. Выполненные работы по переустройству и (или) перепланировке не подлежат приемке в случаях, если они проведены с отступлениями от проекта, плана-схемы или перечня (описания) работ по переустройству и (или) перепланировке, а также если они проведены с нарушениями требований технических нормативных правовых актов.
    Приемка таких работ возможна после устранения замечаний, указанных в акте приемки выполненных работ по переустройству и (или) перепланировке жилого и (или) нежилого помещений.

    ВАЖНО !!!

    ПОДРЯДЧИК (юридические или физические лица, в том числе индивидуальные предприниматели, имеющие право на осуществление архитектурной, градостроительной и строительной деятельности) обязан передать заказчику необходимые для законного выполнения и приемки работ по перепланировке (переустройству) следующие документы:
    - Договор подряда на выполнение ремонтно-строительных (строительно-монтажных или специальных) работ (оригинал, подписанный заказчиком и подрядчиком)
    - Свидетельство о государственной регистрации (заверенная подписью и печатью копия)
    - Свидетельство о включении в государственный реестр бытовых услуг Республики Беларусь (заверенная подписью и печатью копия)
    - Сертификат соответствия на выполнение работ в строительстве (заверенная подписью и печатью копия)
    - Аттестат соответствия МАиС РБ на право осуществления строительства объектов первого-четвертого классов сложности (заверенная подписью и печатью копия)
    - Акт освидетельствования скрытых работ (оригинал, подписанный подрядчиком, для приемки и подписания представителями технического надзора и проектной организации)
    Акты освидетельствования скрытых работ (акты гидроиспытания системы и т.п.) оформляет Подрядчик. Принимают и подписывают акты представители подрядной организации, технического надзора и проектной организации.

    В соответствии с Указом Президента Республики Беларусь от 24 июля 2014 г. № 371 «О создании государственного информационного ресурса «Реестр бытовых услуг Республики Беларусь», деятельность в сфере бытового обслуживания населения вправе осуществлять только юридические лица и индивидуальные предприниматели, включенные Министерством торговли в государственный информационный ресурс «Реестр бытовых услуг Республики Беларусь» http://www.mintorg.gov.by/index.php?option=com_content&task=view& ... Itemid=762

    Вступило в силу изменение №1 к ТР 2009/013/BY «Здания и сооружения, строительные материалы и изделия. Безопасность», утвержденное постановлением Совета Министров Республики Беларусь от 07.02.2012 № 125, согласно которому обязательной сертификации подлежат следующие виды работ в строительстве:
    - Возведение монолитных бетонных и железобетонных конструкций.
    - Заполнение оконных и дверных проемов.
    - Монтаж внутренних инженерных систем зданий и сооружений.
    - Монтаж деревянных конструкций.
    - Монтаж каменных и армокаменных конструкций.
    - Монтаж легких ограждающих конструкций.
    - Монтаж наружных сетей и сооружений.
    - Монтаж сборных бетонных и железобетонных конструкций.
    - Монтаж стальных конструкций.
    - Устройство антикоррозионных покрытий строительных конструкций зданий и сооружений.
    - Устройство дорожных покрытий пешеходных зон из тротуарных плит.
    - Устройство изоляционных покрытий.
    - Устройство кровли.
    - Устройство оснований, фундаментов зданий и сооружений.
    - Устройство тепловой изоляции ограждающих конструкций зданий и сооружений.
    http://rcuk.bsc.by/page/sertifikaciya-vypolneniya-rabot-v-stroitelstve

    Указ Президента Республики Беларусь 14 января 2014 г. N 26 о мерах по совершенствованию строительной деятельности http://att.bsc.by/page/ukaz-prezidenta-respubliki-belarus-14-yanv ... stvovaniyu
    Перечень отдельных видов архитектурной, градостроительной, строительной деятельности (их составляющих), выполнение работ по обследованию зданий и сооружений, подлежащих обязательной аттестации http://att.bsc.by/per

    Пример необходимых документов для законного выполнения специальных строительных работ (свидетельства, аттестации, лицензии, сертификации и т.п.)

    ПРЕДСТАВИТЕЛЬ ЗАКАЗЧИКА (юридические или физические лица, в том числе индивидуальные предприниматели, имеющие право на осуществление архитектурной, градостроительной и строительной деятельности) обязан, при заключении договора на оказание инженерных услуг по организации и осуществлению функций заказчика на объектах по перепланировке (реконструкции, переустройства и т.п.) предоставить следующие документы:
    - Договор на оказание инженерных услуг (оригинал, подписанный заказчиком и исполнителем)
    - Свидетельство о государственной регистрации (заверенная подписью и печатью копия)
    - Квалификационный аттестат специалиста (заверенная подписью и печатью копия)
    - Аттестат соответствия МАиС РБ на право осуществления: выполнение функций заказчика, застройщика, оказания отдельных видов инженерных услуг в строительстве (заверенная подписью и печатью копия)

    Указ Президента Республики Беларусь 14 января 2014 г. N 26 о мерах по совершенствованию строительной деятельности http://att.bsc.by/page/ukaz-prezidenta-respubliki-belarus-14-yanv ... stvovaniyu
    Перечень отдельных видов архитектурной, градостроительной, строительной деятельности (их составляющих), выполнение работ по обследованию зданий и сооружений, подлежащих обязательной аттестации http://att.bsc.by/per

    ______________________________
    Пример необходимых документов для законного выполнения специальных строительных работ (свидетельства, аттестации, лицензии, сертификации и т.п.)

    Переходите в полноэкранный режим плейера и просматривайте все подробности объекта с помощью мышки или стрелок а так же увеличивайте или уменьшайте колёсиком мыши (сферические панорамы 360° с возможностью перемещения по определенным точкам съемки)

    Перепланировка двухкомнатной квартиры в многоквартирном доме панельной серии М 111-90
    Усиление проёма стальной опорной рамой из швеллеров:

    Усиление проёма стальной обоймой:

    Перепланировка трехкомнатной квартиры в многоквартирном доме панельной серии А-100 "Новая Боровая"
    Усиление проёма стальной опорной рамой из швеллеров:

    Куратор темы DOLBO

    Если проблему можно решить за деньги, то это не проблема - это расходы.
  • art-triumph Senior Member
    офлайн
    art-triumph Senior Member

    3057

    10 лет на сайте
    пользователь #1807551

    Профиль
    Написать сообщение

    3057
    # 9 августа 2019 11:33

    1772819, Здравствуйте.
    Планировка квартиры 55кв лучше так как три окна дают возможность получить две комнаты и кухню с окном.
    При желании перенести кухню можно.

    Vladimir 375296020381
  • 1772819 Neophyte Poster
    офлайн
    1772819 Neophyte Poster

    13

    10 лет на сайте
    пользователь #1772819

    Профиль
    Написать сообщение

    13
    # 9 августа 2019 14:52
    art-triumph:

    1772819, Здравствуйте.
    Планировка квартиры 55кв лучше так как три окна дают возможность получить две комнаты и кухню с окном.
    При желании перенести кухню можно.

    Спасибо за ответ. А не маленькие комнаты получаться? и в офисе застройщика сказали, что "перенести нельзя в типовом проекте".

  • al-raby Neophyte Poster
    офлайн
    al-raby Neophyte Poster

    21

    13 лет на сайте
    пользователь #618521

    Профиль
    Написать сообщение

    21
    # 9 августа 2019 16:09 Редактировалось al-raby, 2 раз(а).

    Правильно ли я понимаю.Полотенцесушитель относится к системе горячего водоснабжения ( а не центрального отопления),следовательно работы с ним не относят к работам по переустройству и (или) перепланировке согласно п.3 гл.1 постановления №384. Значит перенос змеевика и замена труб на полипропиленовые не являются работами по переустройству и (или) перепланировке.

  • DOLBO Куратор team
    офлайн
    DOLBO Куратор team

    4910

    15 лет на сайте
    пользователь #278657

    Профиль
    Написать сообщение

    4910
    # 9 августа 2019 18:34
    al-raby:

    Правильно ли я понимаю.Полотенцесушитель относится к системе горячего водоснабжения ( а не центрального отопления),следовательно работы с ним не относят к работам по переустройству и (или) перепланировке согласно п.3 гл.1 постановления №384. Значит перенос змеевика и замена труб на полипропиленовые не являются работами по переустройству и (или) перепланировке.

    по определению термина:

    переустройство – изменение инженерных систем (демонтаж, установка, замена или перенос инженерных сетей, электрического, санитарно-технического или иного оборудования) в жилом и (или) нежилом помещениях и (или) конструктивных элементов в процессе выполнения ремонтно-строительных работ;

    Мы старый мир разрушим...
  • al-raby Neophyte Poster
    офлайн
    al-raby Neophyte Poster

    21

    13 лет на сайте
    пользователь #618521

    Профиль
    Написать сообщение

    21
    # 9 августа 2019 19:38

    замена (или например перенос на 1м ) розетки -тоже переустройство, а требование к узакониванию никто не предъявляет (также как и к открытию входных дверей).Вот и вопрос стоит насчет уже замененного 1)змеевика, 2)трубы металл. на пластик,3)перенесенного змеевика на 2м.а Что есть нарушение ?Что надо узаконивать (и надо ли):)?

  • DOLBO Куратор team
    офлайн
    DOLBO Куратор team

    4910

    15 лет на сайте
    пользователь #278657

    Профиль
    Написать сообщение

    4910
    # 9 августа 2019 20:42

    по логике, надо.
    но у разных исполкомов разная позиция

    Мы старый мир разрушим...
  • art-triumph Senior Member
    офлайн
    art-triumph Senior Member

    3057

    10 лет на сайте
    пользователь #1807551

    Профиль
    Написать сообщение

    3057
    # 10 августа 2019 06:38

    1772819, Комнаты получаются нормальными. С переносом кухни сложности есть в подключении мойки. Естественно застройщику не интересно в процессе строительства и сдачи дома усложнять себе жизнь- это уже проблемы жильцов. Лично я до последнего отговаривал бы от переноса кухни так как затрат много, сложностей много, а выигрыш сомнительный.

    Vladimir 375296020381
  • BlueCity Neophyte Poster
    офлайн
    BlueCity Neophyte Poster

    14

    6 лет на сайте
    пользователь #2797469

    Профиль
    Написать сообщение

    14
    # 12 августа 2019 16:50

    Добрый день! Подскажите, пожалуйста. Ремонт в частом доме уже на половину сделали. Разрешение на реконструкцию дома от исполкома есть, а положенный проект не делали. Стоит ли сейчас делать проект переустройства дома или необходимо делать техническое заключение в связи с самовольной перепланировкой?

  • Kattrin88 Member
    офлайн
    Kattrin88 Member

    102

    15 лет на сайте
    пользователь #386427

    Профиль
    Написать сообщение

    102
    # 12 августа 2019 18:58

    Может кто подскажет, можно ли официально сделать перепланировку, демонтировав вентшахту/воздухоотвод на первом этаже, предоставив все документы как она устроена в данном доме!?

  • DOLBO Куратор team
    офлайн
    DOLBO Куратор team

    4910

    15 лет на сайте
    пользователь #278657

    Профиль
    Написать сообщение

    4910
    # 13 августа 2019 01:30
    Kattrin88:

    Может кто подскажет, можно ли официально сделать перепланировку, демонтировав вентшахту/воздухоотвод на первом этаже, предоставив все документы как она устроена в данном доме!?

    нет.

    Мы старый мир разрушим...
  • dmitry_cx Senior Member
    офлайн
    dmitry_cx Senior Member

    7025

    16 лет на сайте
    пользователь #183622

    Профиль
    Написать сообщение

    7025
    # 13 августа 2019 10:07
    art-triumph:

    По пожарным лестницам и люкам ни один "знаток" не имеет права Вам что-либо советовать.
    Если Вы что-либо решите с ними делать это только Ваше решение и Ваша ответственность.

    друг спрашивает - если спиливать лестницу, то в случае обнаружения будет штраф или штраф и восстановление лестницы?

  • Sandra_ss Senior Member
    офлайн
    Sandra_ss Senior Member

    679

    20 лет на сайте
    пользователь #39729

    Профиль
    Написать сообщение

    679
    # 13 августа 2019 19:42

    Панельный дом 86 года. Подскажите, будет ли считаться перепланировкой, если просто убрать окно и дверь на балкон?

    Блондинко... глумиццо можно.
  • pereplanirovka80 Member
    офлайн
    pereplanirovka80 Member

    435

    9 лет на сайте
    пользователь #1991486

    Профиль
    Написать сообщение

    435
    # 13 августа 2019 21:06

    Sandra_ss, да. Тем более это запрещено

    Добавлено спустя 1 минута 24 секунды

    BlueCity, можно и проект, а можно и техзаключение.

  • DOLBO Куратор team
    офлайн
    DOLBO Куратор team

    4910

    15 лет на сайте
    пользователь #278657

    Профиль
    Написать сообщение

    4910
    # 13 августа 2019 23:10
    Sandra_ss:

    Панельный дом 86 года. Подскажите, будет ли считаться перепланировкой, если просто убрать окно и дверь на балкон?

    да.
    без возможности легализовать.

    Мы старый мир разрушим...
  • Sandra_ss Senior Member
    офлайн
    Sandra_ss Senior Member

    679

    20 лет на сайте
    пользователь #39729

    Профиль
    Написать сообщение

    679
    # 14 августа 2019 09:03

    Спасибо огромное :)

    Блондинко... глумиццо можно.
  • zxcva Senior Member
    офлайн
    zxcva Senior Member

    953

    14 лет на сайте
    пользователь #400254

    Профиль
    Написать сообщение

    953
    # 14 августа 2019 15:36 Редактировалось zxcva, 1 раз.

    DOLBO, подскажите, являются ли стены, выделенные синим, несущими? (спрашиваю, чтобы понимать на сколько тут возможны измнения в дизайне):

    Дом в Новой Боровой. Спасибо большое.

    Дом №5
  • DOLBO Куратор team
    офлайн
    DOLBO Куратор team

    4910

    15 лет на сайте
    пользователь #278657

    Профиль
    Написать сообщение

    4910
    # 15 августа 2019 00:07
    zxcva:

    DOLBO, подскажите, являются ли стены, выделенные синим, несущими? (спрашиваю, чтобы понимать на сколько тут возможны измнения в дизайне):

    Дом в Новой Боровой. Спасибо большое.

    в панельном доме - несущие

    Мы старый мир разрушим...
  • 55418 Member
    офлайн
    55418 Member

    118

    20 лет на сайте
    пользователь #55418

    Профиль
    Написать сообщение

    118
    # 16 августа 2019 16:49

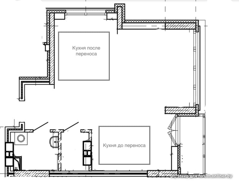
    Добрый день, можно ли в таком проекте перенести кухню? Необходимо бует тянуть коммуникации от стояка. В тех паспорте все пространство обозначено как жилая с кухонным оборудованием

  • DOLBO Куратор team
    офлайн
    DOLBO Куратор team

    4910

    15 лет на сайте
    пользователь #278657

    Профиль
    Написать сообщение

    4910
    # 16 августа 2019 16:57
    Dt/Steep:

    Добрый день, можно ли в таком проекте перенести кухню? Необходимо бует тянуть коммуникации от стояка. В тех паспорте все пространство обозначено как жилая с кухонным оборудованием

    возможно.
    разрешение исполкома, проект и т.д.

    Мы старый мир разрушим...
  • art-triumph Senior Member
    офлайн
    art-triumph Senior Member

    3057

    10 лет на сайте
    пользователь #1807551

    Профиль
    Написать сообщение

    3057
    # 17 августа 2019 07:30

    Dt/Steep, Здравствуйте.
    В Вашем случае перенос не целесообразен так как окон достаточно, что бы решить любую планировку без усложнения жизни канализационным насосом.

    Vladimir 375296020381