Ответить
  • Rhezus Клуб СамоделкиныхАвтор темы
    офлайн
    Rhezus Клуб Самоделкиных Автор темы

    29430

    23 года на сайте
    пользователь #5127

    Профиль
    Написать сообщение

    29430
    # 5 ноября 2003 19:02 Редактировалось DOLBO, 198 раз(а).

    Телепрограмма БТ 24 "Кошелек и жизнь" (эфир 04.10.2013).
    новая редакция постановления о перепланировках, «сколько стоят строительные мечты или перепланировка под ключ?». И напоследок – без неудобств и бумажной волокиты.


    ____________________________________________________________________________________

    Белсат ТВ. программа "Асабісты капітал"
    Согласование перепланировки.
    эфир 03.02.2014


    ____________________________________________________________________________________

    Телетрансляция ток-шоу "Форум" по каналу БТ1
    (вопросы перепланировки, оформления, согласования, новые правила и нормы с 2013 года)!
    эфир 30.09.2013


    ____________________________________________________________________________________

    Программа на БТ1 "Сфера интересов": перепланировка (2013)
    вопросы перепланировки и согласования, мнения экспертов и полезная информация
    эфир 24.09.2013


    ____________________________________________________________________________________

    [censored]
    ____________________________________________________________________________________

    Телеканал УКРАИНА
    События недели: Трагическая перепланировка.
    В Луцке обрушился подъезд. Что можно, а что нельзя сносить в доме?
    Опубликовано 18 Июн 2012 г.


    ___________________________________________________________________________________
    Еще полезные статьи по теме перепланировки:
    Как правильно сделать перепланировку в стандартной панельке?

    [url=https://realty.[censored]/news/offtop-realty/624231.html?fbclid=IwAR3wsVSCVvytbDgXbiHJv8uwnhci9EUIyDMrzsBgB5laeb1G2Y2dl5hxvmg]Ванная и кухня на лоджии, холодильник в вентшахте — все незаконно. Рассказываем, как с этим жить

    Как сделать перепланировку в квартире и остаться в живых: Упрощаем задачу

    FAQ (часто задаваемые вопросы) по вопросам перепланировки:

    инициатор переустройства и (или) перепланировки (далее – инициатор) – гражданин (собственник жилого и (или) нежилого помещений частного жилищного фонда, наниматель жилого помещения государственного жилищного фонда), гражданин, являющийся членом организации застройщиков (далее – гражданин), а также юридическое лицо или индивидуальный предприниматель, которые инициируют переустройство и (или) перепланировку;

    перепланировка – изменение планировочных решений жилого и (или) нежилого помещений в процессе выполнения ремонтно-строительных работ;

    переустройство – изменение инженерных систем (демонтаж, установка, замена или перенос инженерных сетей, электрического, санитарно-технического или иного оборудования) в жилом и (или) нежилом помещениях и (или) конструктивных элементов в процессе выполнения ремонтно-строительных работ;

    самовольные переустройство и (или) перепланировка – переустройство и (или) перепланировка, произведенные без согласования (разрешения) с соответствующим местным исполнительным и распорядительным органом.

    Реконструкция жилого и (или) нежилого помещения в многоквартирном, блокированном жилом доме, одноквартирного жилого дома, а также нежилых построек – совокупность работ и мероприятий, направленных на использование по новому назначению этого дома, помещений и нежилых построек и (или) связанных с изменением их основных технико-экономических показателей и параметров.

    Холл – помещение, вид прихожей в квартире (одноквартирном жилом доме) или помещение обычно в общественных, административных зданиях, предназначенное для отдыха, ожидания.

    Прихожая (передняя) – часть квартиры (одноквартирного жилого дома), имеющая непосредственный выход во вспомогательные помещения жилого дома либо на придомовую территорию, улицу и тому подобное.

    Жилая комната – отдельное отапливаемое помещение для проживания в квартире (одноквартирном жилом доме), имеющее естественное освещение и предназначенное для сна, отдыха, досуга, приема пищи. К жилым комнатам не относятся санитарные узлы, кухни, прихожие, гардеробные и тому подобное, а также производственные помещения для индивидуальной трудовой деятельности или надомного труда, если выполняемые в этих помещениях процессы не могут быть совмещены с функциями жилых комнат.
    Комнаты в квартире (одноквартирном жилом доме), подходящие под определение жилой комнаты, но на момент обследования используемые в других целях (кабинет, библиотека и другое), следует учитывать как жилые.

    Балкон – огражденная наружная площадка, наполовину и более (площади) выступающая за пределы граничащих с ней наружных стен здания и открытая во внешнее пространство не менее чем с двух сторон.

    Лоджия – перекрытая и огражденная наружная площадка, более чем на половину (площади) заключенная в пределах граничащих с ней наружных стен здания и, как минимум, с одной стороны открытая во внешнее пространство.

    Ведомость технических характеристик недвижимого имущества – документ, составляемый по результатам технической инвентаризации или проверки характеристик построенных, а также измененных самовольно или в нарушение законодательства Республики Беларусь объектов недвижимого имущества, содержащий описание фактического состояния объекта недвижимого имущества, сведения о составе, площади и других его характеристиках, адрес (местонахождение) и другие данные об объекте.

    Кухня – отдельное помещение с плитой, печью для приготовления пищи. Допускается сообщение кухни со смежно расположенной жилой комнатой (общей) посредством дверных проемов, а также по заданию на проектирование допускается объединение кухни, оборудованной электроплитой, с жилой комнатой (общей) и прихожей в единое пространство с созданием в быту функциональных зон за счет расстановки мебели.

    Освещение естественное – освещение помещений светом неба (прямым или отраженным), проникающим через световые проемы в наружных ограждающих конструкциях.

    Перегородка – вертикальная внутренняя ограждающая конструкция, разделяющая смежные помещения в капитальном строении; перегородки бывают глухие и с проемами, полные и не доходящие до потолка.

    Подсобные помещения – помещения, находящиеся внутри квартиры (одноквартирного жилого дома) и предназначенные для хозяйственно-бытовых нужд проживающих (коридоры, санузлы, кладовые, прихожие, кухни и другие нежилые помещения).

    Санитарный узел – санитарно-гигиеническое помещение в квартире, в котором размещаются ванна или душ, умывальник, унитаз, возможно биде и стиральная машина. Различают совмещенный санитарный узел, в котором санитарно-технические приборы размещаются в одном помещении.

    согласно ИНСТРУКЦИИ о порядке проведения технической инвентаризации и проверки характеристик капитальных строений (зданий, сооружений), незавершенных законсервированных капитальных строений, изолированных помещений (см выше):

    80.1. жилая площадь жилого помещения (квартиры, одноквартирного жилого дома) определяется как сумма площадей жилых комнат и площадей встроенных шкафов для одежды и кладовых (гардеробных), открывающихся в сторону жилых комнат.
    Если жилая комната (гостиная) отделена от кухни, оборудованной электрической плитой, стеной (перегородкой) с проемом, не оборудованным дверью, то сохраняются наименование и функциональное назначение помещений, при этом площадь каждого помещения подсчитывается отдельно.
    Если жилая комната (гостиная) имеет общее пространство с кухней, оборудованной электрической плитой, то такое помещение соответствует признакам жилой комнаты с кухонным оборудованием, ее площадь подсчитывается как площадь одного помещения;

    - замена или перенос систем газоснабжения, центрального отопления, мусороудаления, газоудаления;
    - устройство гидро-, паро-, тепло- и звукоизоляции;
    - изменения в несущих конструкциях;
    - изменение площади, количества жилых комнат и подсобных помещений в квартире за счет разборки существующих и (или) устройства новых перегородок;
    - изменение площади и количества помещений в изолированных нежилых помещениях за счет разборки существующих и (или) устройства новых перегородок;
    - устройство, увеличение проемов в ненесущих стенах и перегородках.

    Иные работы не являются работами по переустройству и (или) перепланировке.

    работы по:
    - изменению назначения, количества и (или) общей площади жилых и (или) нежилых помещений в многоквартирных, блокированных жилых домах, одноквартирных жилых домов и (или) нежилых построек;

    - изменению строительного объема или общей площади жилых и (или) нежилых помещений в многоквартирных, блокированных жилых домах, одноквартирного жилого дома и (или) нежилых построек;

    - замене несущих конструкций (отдельных видов таких конструкций) жилых и (или) нежилых помещений в многоквартирных, блокированных жилых домах, одноквартирного жилого дома и (или) нежилых построек;

    - устройству балконов, лоджий, веранд, террас, а также пандусов для передвижения инвалидов-колясочников с первого этажа на придомовую территорию;

    - устройству неотапливаемых кладовых и погребов в пространстве под балконами и лоджиями первых этажей многоквартирных, блокированных жилых домов без использования подвальных помещений таких домов с обустройством доступа в эти кладовые и погреба с балконов и лоджий посредством люков;

    - инженерному оборудованию (переоборудованию) жилых и (или) нежилых помещений в многоквартирных, блокированных жилых домах, одноквартирных жилых домов, а также нежилых построек;

    - устройству (переустройству) наружных сетей, кроме магистральных.

    Иные работы не являются работами по реконструкции, и для их проведения не требуется решение о разрешении на реконструкцию.

    - с нарушением строительных, противопожарных, санитарно-эпидемиологических требований, законодательства об охране историко-культурного наследия, архитектурной, градостроительной и строительной деятельности;
    - приводящие к снижению несущей способности грунтов оснований фундаментов, конструкций фундаментов, колонн, стен, балок, перекрытий, опор, кровель, а также нарушению гидро-, паро-, тепло- и звукоизоляции, био- и огнестойкости несущих и ограждающих конструкций;
    - влекущие за собой нарушение режима работы систем дымо- и газоудаления, а также нарушение и ухудшение параметров работы инженерно-технического оборудования дома или отдельных помещений;
    - вентиляционных шахт и каналов;
    - балконов и лоджий в отапливаемые помещения;
    - связанные с устройством жилых помещений без естественного освещения, а также с установкой перегородок, попадающих в оконные проемы;
    - связанные с установкой дополнительного оборудования центрального отопления, горячего водоснабжения и электротехнического оборудования, если это повлечет превышение проектных расчетных инженерных нагрузок на одно помещение;
    - с изменением архитектурного и цветового решения фасада жилого дома;
    - ведущие к снижению эксплуатационной пригодности конструкций жилого дома;
    - если жилой дом в установленном порядке признан не соответствующим установленным для проживания санитарным и техническим требованиям и не подлежит восстановлению.
    - замена или перенос систем газоснабжения, центрального отопления, мусороудаления, газоудаления;
    - устройство гидро-, паро-, тепло- и звукоизоляции;
    - изменения в несущих конструкциях.
    - изменение площади, количества жилых комнат и подсобных помещений в квартире за счет разборки существующих и (или) устройства новых перегородок;
    - изменение площади и количества помещений в изолированных нежилых помещениях за счет разборки существующих и (или) устройства новых перегородок;
    - устройство, увеличение проемов в ненесущих стенах и перегородках.
    Жилищный кодекс.
    Статья 64. Переустройство и перепланировка жилого помещения

    Переустройство и перепланировка жилого помещения государственного жилищного фонда могут производиться в целях повышения благоустройства жилого помещения и допускаются с согласия нанимателя и проживающих с ним совершеннолетних членов семьи и разрешения наймодателя.
    Отказ нанимателя или совершеннолетних членов его семьи на переустройство или перепланировку жилого помещения может быть оспорен в судебном порядке, если имеется разрешение наймодателя на переустройство или перепланировку.
    Наниматель, допустивший самовольное переустройство или перепланировку жилого помещения, обязан за свой счет привести это жилое помещение в прежнее состояние.

    см. выше ПОСТАНОВЛЕНИЕ СОВЕТА МИНИСТРОВ РЕСПУБЛИКИ БЕЛАРУСЬ от 16 мая 2013 г. № 384
    27. Самовольные переустройство и (или) перепланировка запрещены.

    28. Гражданин, юридическое лицо или индивидуальный предприниматель, осуществившие самовольные переустройство и (или) перепланировку, обязаны получить согласование (разрешение) местного исполнительного и распорядительного органа таких переустройства и (или) перепланировки.
    Согласование (разрешение) самовольных переустройства и (или) перепланировки выдается в случае, если переустройство и (или) перепланировка не влияют на безопасность эксплуатируемого здания и выполнены в соответствии с требованиями технических нормативных правовых актов, что подтверждается техническим заключением. Техническое заключение оформляется на основании ведомости технических характеристик на изолированное помещение по результатам общего или детального (при необходимости) обследования строительных конструкций и инженерных систем, проведенного в установленном порядке в соответствии с техническими нормативными правовыми актами юридическим или физическим лицом, в том числе индивидуальным предпринимателем, имеющим право на осуществление данного вида деятельности в соответствии с законодательством. Не требуется наличие ведомости технических характеристик на изолированное помещение при производстве работ по переустройству и (или) перепланировке, указанных в абзацах втором и третьем части первой пункта 3 настоящего Положения.
    Такие обследования, а также изготовление ведомости технических характеристик на изолированное помещение проводятся по заказу и за счет средств гражданина, юридического лица или индивидуального предпринимателя, осуществивших самовольные переустройство и (или) перепланировку.

    28.1. Для получения согласования (разрешения) самовольных переустройства и (или) перепланировки гражданин подает в местный исполнительный и распорядительный орган заявление и представляет документы, перечисленные в подпункте 1.1.211 пункта 1.1 перечня административных процедур, осуществляемых государственными органами и иными организациями по заявлениям граждан.
    Для получения согласования (разрешения) самовольных переустройства и (или) перепланировки юридическое лицо, индивидуальный предприниматель подают в местный исполнительный и распорядительный орган заявление и представляют документы, указанные в подпункте 8.1.81 пункта 8.1 единого перечня административных процедур, осуществляемых государственными органами и иными организациями в отношении юридических лиц и индивидуальных предпринимателей.

    28.2. При рассмотрении местным исполнительным и распорядительным органом заявления гражданин, юридическое лицо или индивидуальный предприниматель в согласованное с ними время обязаны предоставить доступ в жилое и (или) нежилое помещения представителям организации, осуществляющей эксплуатацию жилищного фонда и (или) предоставляющей жилищно-коммунальные услуги, и местного исполнительного и распорядительного органа.
    По результатам осмотра жилого и (или) нежилого помещений составляется акт технического осмотра жилого и (или) нежилого помещений, в котором приводятся сведения о соответствии существующей планировки техническому заключению, а также о техническом состоянии конструкций и инженерного оборудования этих помещений. Акт технического осмотра жилого и (или) нежилого помещений составляется в произвольной форме, подписывается гражданином, юридическим лицом или индивидуальным предпринимателем и уполномоченным должностным лицом организации, осуществляющей эксплуатацию жилищного фонда и (или) предоставляющей жилищно-коммунальные услуги, и утверждается представителем местного исполнительного и распорядительного органа.

    28.3. На основании документов, представленных гражданином, юридическим лицом или индивидуальным предпринимателем, и актов технического осмотра жилого и (или) нежилого помещений местный исполнительный и распорядительный орган не позднее одного месяца со дня подачи заявления принимает решение о согласовании (разрешении) самовольных переустройства и (или) перепланировки либо об отказе в согласовании (разрешении) самовольных переустройства и (или) перепланировки с указанием оснований для отказа, установленных в пункте 15 настоящего Положения, и сообщает об этом гражданину, юридическому лицу или индивидуальному предпринимателю.
    Решение местного исполнительного и распорядительного органа о согласовании (разрешении) самовольных переустройства и (или) перепланировки должно содержать фамилию, собственное имя, отчество (если таковое имеется) гражданина, индивидуального предпринимателя или наименование юридического лица, осуществивших самовольные переустройство и (или) перепланировку, сведения о жилом и (или) нежилом помещениях (адрес, инвентарный номер в соответствии с данными единого государственного регистра недвижимого имущества, прав на него и сделок с ним (при наличии), иные сведения (при необходимости).

    28.4. Составление технического паспорта на соответствующее недвижимое имущество и государственная регистрация изменения недвижимого имущества в результате самовольного переустройства и (или) перепланировки осуществляются организациями по государственной регистрации недвижимого имущества, прав на него и сделок с ним в порядке, установленном законодательством о государственной регистрации недвижимого имущества, прав на него и сделок с ним.

    29. В случае отказа местного исполнительного и распорядительного органа в согласовании (разрешении) самовольных переустройства и (или) перепланировки жилое и (или) нежилое помещения в срок, установленный местным исполнительным и распорядительным органом, приводятся в прежнее состояние лицом, осуществившим самовольные переустройство и (или) перепланировку, или за его счет по решению местного исполнительного и распорядительного органа.
    Восстановительные работы по приведению жилого и (или) нежилого помещений в прежнее, до проведения самовольных переустройства и (или) перепланировки, состояние производятся в соответствии с порядком производства и приемки работ по переустройству и (или) перепланировке, установленным настоящим Положением.

    30. Гражданин, юридическое лицо или индивидуальный предприниматель, осуществившие самовольные переустройство и (или) перепланировку, несут ответственность в соответствии с законодательными актами.

    При вопросах о своих перепланировках, желательно указывать исходные данные:
    - территориальное расположение дома (к какому ЖРЭО, Администрации района г. Минска относится)
    - конструкция дома
    - этаж и этажность
    - материал стен, толщина
    - наличие газовой или электроплиты на кухне
    - план перепланировки "до и после"

    З.Ы. Rhezus вопросами утверждения перепланировок никогда не занимался и не занимается - просьба в личку не писать!

    согласно ПОСТАНОВЛЕНИЯ СОВЕТА МИНИСТРОВ РЕСПУБЛИКИ БЕЛАРУСЬ от 16 мая 2013 г. № 384 (с изменениями №180 от 09.03.2015)

    17. Для выполнения переустройства и (или) перепланировки, требующих разработки проекта, инициатор после получения согласования (разрешения) местного исполнительного и распорядительного органа заключает договор подряда на выполнение проектных работ с разработчиком проектной документации.
    Проведение государственной экспертизы проекта обеспечивается разработчиком проектной документации в случае, когда при переустройстве и (или) перепланировке производятся изменения в несущих конструкциях жилых и (или) нежилых помещений в многоквартирных жилых домах, а также жилых и (или) нежилых помещений в блокированных жилых домах высотой более 7 метров и одноквартирных жилых домов высотой более 7 метров.

    18. Инициатор обеспечивает осуществление технического надзора за выполнением работ по переустройству и (или) перепланировке, предусмотренных проектом.

    19. Работы по переустройству и (или) перепланировке, указанные в пункте 7 настоящего Положения:
    могут выполняться в блокированных и одноквартирных жилых домах высотой до 7 метров самим инициатором;
    выполняются в многоквартирных жилых домах, а также блокированных и одноквартирных жилых домах высотой более 7 метров только по договорам строительного подряда с юридическими или физическими лицами, в том числе индивидуальными предпринимателями, имеющими право на осуществление архитектурной, градостроительной и строительной деятельности (далее – подрядчик).

    22. Завершение работ по переустройству и (или) перепланировке подтверждается актом приемки выполненных работ по переустройству и (или) перепланировке жилого и (или) нежилого помещений по форме, утверждаемой Министерством архитектуры и строительства
    В состав приемочной комиссии входят подрядчик и (или) инициатор либо их представители, а также представители организации, осуществляющей эксплуатацию жилищного фонда и (или) предоставляющей жилищно-коммунальные услуги, местного исполнительного и распорядительного органа и при необходимости разработчик проектной документации и представитель организации, осуществляющей технический надзор.
    В состав приемочной комиссии по согласованию с другими организациями и органами государственного надзора могут быть дополнительно включены их представители.

    23. Инициатор обязан предъявить приемочной комиссии, указанной в пункте 22 настоящего Положения, следующие документы:
    - разработанный и согласованный в установленном порядке проект*;
    - договор строительного подряда*;
    - договор на осуществление технического надзора*;
    - акты на скрытые работы*;
    - ведомость технических характеристик на изолированное помещение, составленную организацией по государственной регистрации недвижимого имущества, прав на него и сделок с ним, по результатам проверки характеристик помещения при выполнении его переустройства и (или) перепланировки
    ______________________________
    *Представляются, если такие документы предусмотрены для производства работ по переустройству и (или) перепланировке.

    25. Выполненные работы по переустройству и (или) перепланировке не подлежат приемке в случаях, если они проведены с отступлениями от проекта, плана-схемы или перечня (описания) работ по переустройству и (или) перепланировке, а также если они проведены с нарушениями требований технических нормативных правовых актов.
    Приемка таких работ возможна после устранения замечаний, указанных в акте приемки выполненных работ по переустройству и (или) перепланировке жилого и (или) нежилого помещений.

    ВАЖНО !!!

    ПОДРЯДЧИК (юридические или физические лица, в том числе индивидуальные предприниматели, имеющие право на осуществление архитектурной, градостроительной и строительной деятельности) обязан передать заказчику необходимые для законного выполнения и приемки работ по перепланировке (переустройству) следующие документы:
    - Договор подряда на выполнение ремонтно-строительных (строительно-монтажных или специальных) работ (оригинал, подписанный заказчиком и подрядчиком)
    - Свидетельство о государственной регистрации (заверенная подписью и печатью копия)
    - Свидетельство о включении в государственный реестр бытовых услуг Республики Беларусь (заверенная подписью и печатью копия)
    - Сертификат соответствия на выполнение работ в строительстве (заверенная подписью и печатью копия)
    - Аттестат соответствия МАиС РБ на право осуществления строительства объектов первого-четвертого классов сложности (заверенная подписью и печатью копия)
    - Акт освидетельствования скрытых работ (оригинал, подписанный подрядчиком, для приемки и подписания представителями технического надзора и проектной организации)
    Акты освидетельствования скрытых работ (акты гидроиспытания системы и т.п.) оформляет Подрядчик. Принимают и подписывают акты представители подрядной организации, технического надзора и проектной организации.

    В соответствии с Указом Президента Республики Беларусь от 24 июля 2014 г. № 371 «О создании государственного информационного ресурса «Реестр бытовых услуг Республики Беларусь», деятельность в сфере бытового обслуживания населения вправе осуществлять только юридические лица и индивидуальные предприниматели, включенные Министерством торговли в государственный информационный ресурс «Реестр бытовых услуг Республики Беларусь» http://www.mintorg.gov.by/index.php?option=com_content&task=view& ... Itemid=762

    Вступило в силу изменение №1 к ТР 2009/013/BY «Здания и сооружения, строительные материалы и изделия. Безопасность», утвержденное постановлением Совета Министров Республики Беларусь от 07.02.2012 № 125, согласно которому обязательной сертификации подлежат следующие виды работ в строительстве:
    - Возведение монолитных бетонных и железобетонных конструкций.
    - Заполнение оконных и дверных проемов.
    - Монтаж внутренних инженерных систем зданий и сооружений.
    - Монтаж деревянных конструкций.
    - Монтаж каменных и армокаменных конструкций.
    - Монтаж легких ограждающих конструкций.
    - Монтаж наружных сетей и сооружений.
    - Монтаж сборных бетонных и железобетонных конструкций.
    - Монтаж стальных конструкций.
    - Устройство антикоррозионных покрытий строительных конструкций зданий и сооружений.
    - Устройство дорожных покрытий пешеходных зон из тротуарных плит.
    - Устройство изоляционных покрытий.
    - Устройство кровли.
    - Устройство оснований, фундаментов зданий и сооружений.
    - Устройство тепловой изоляции ограждающих конструкций зданий и сооружений.
    http://rcuk.bsc.by/page/sertifikaciya-vypolneniya-rabot-v-stroitelstve

    Указ Президента Республики Беларусь 14 января 2014 г. N 26 о мерах по совершенствованию строительной деятельности http://att.bsc.by/page/ukaz-prezidenta-respubliki-belarus-14-yanv ... stvovaniyu
    Перечень отдельных видов архитектурной, градостроительной, строительной деятельности (их составляющих), выполнение работ по обследованию зданий и сооружений, подлежащих обязательной аттестации http://att.bsc.by/per

    Пример необходимых документов для законного выполнения специальных строительных работ (свидетельства, аттестации, лицензии, сертификации и т.п.)

    ПРЕДСТАВИТЕЛЬ ЗАКАЗЧИКА (юридические или физические лица, в том числе индивидуальные предприниматели, имеющие право на осуществление архитектурной, градостроительной и строительной деятельности) обязан, при заключении договора на оказание инженерных услуг по организации и осуществлению функций заказчика на объектах по перепланировке (реконструкции, переустройства и т.п.) предоставить следующие документы:
    - Договор на оказание инженерных услуг (оригинал, подписанный заказчиком и исполнителем)
    - Свидетельство о государственной регистрации (заверенная подписью и печатью копия)
    - Квалификационный аттестат специалиста (заверенная подписью и печатью копия)
    - Аттестат соответствия МАиС РБ на право осуществления: выполнение функций заказчика, застройщика, оказания отдельных видов инженерных услуг в строительстве (заверенная подписью и печатью копия)

    Указ Президента Республики Беларусь 14 января 2014 г. N 26 о мерах по совершенствованию строительной деятельности http://att.bsc.by/page/ukaz-prezidenta-respubliki-belarus-14-yanv ... stvovaniyu
    Перечень отдельных видов архитектурной, градостроительной, строительной деятельности (их составляющих), выполнение работ по обследованию зданий и сооружений, подлежащих обязательной аттестации http://att.bsc.by/per

    ______________________________
    Пример необходимых документов для законного выполнения специальных строительных работ (свидетельства, аттестации, лицензии, сертификации и т.п.)

    Переходите в полноэкранный режим плейера и просматривайте все подробности объекта с помощью мышки или стрелок а так же увеличивайте или уменьшайте колёсиком мыши (сферические панорамы 360° с возможностью перемещения по определенным точкам съемки)

    Перепланировка двухкомнатной квартиры в многоквартирном доме панельной серии М 111-90
    Усиление проёма стальной опорной рамой из швеллеров:

    Усиление проёма стальной обоймой:

    Перепланировка трехкомнатной квартиры в многоквартирном доме панельной серии А-100 "Новая Боровая"
    Усиление проёма стальной опорной рамой из швеллеров:

    Куратор темы DOLBO

    Если проблему можно решить за деньги, то это не проблема - это расходы.
  • DOLBO Куратор team
    офлайн
    DOLBO Куратор team

    4910

    15 лет на сайте
    пользователь #278657

    Профиль
    Написать сообщение

    4910
    # 21 февраля 2018 14:25
    wag04:

    Спасибо. Для понимая масштаба, сколько может стоить мне вся процедура, хотя бы ориентировочно?

    процедура узаконивания самовольной перепланировки?
    вы ее не можете выполнить - только через собственника (нынешнего владельца).
    желательно план-схема, чтобы понимать соответствие строительным нормам.

    Мы старый мир разрушим...
  • illegally Member
    офлайн
    illegally Member

    289

    16 лет на сайте
    пользователь #190837

    Профиль
    Написать сообщение

    289
    # 21 февраля 2018 14:29

    Добрый день. Подскажите в доме м111-90 обьединить туалет, ванную можно? Не несущая там стена вроде. Можно ли это делать самим, или нужен обязательно ип или фирма которые могут это делать?

  • DOLBO Куратор team
    офлайн
    DOLBO Куратор team

    4910

    15 лет на сайте
    пользователь #278657

    Профиль
    Написать сообщение

    4910
    # 21 февраля 2018 14:53
    illegally:

    Добрый день. Подскажите в доме м111-90 обьединить туалет, ванную можно? Не несущая там стена вроде. Можно ли это делать самим, или нужен обязательно ип или фирма которые могут это делать?

    при затрагивании санузла - обязательно устройство гидроизоляции пола.
    соответственно, все по полной программе -

    Решение местного исполкома с обязательной разработкой проекта.
    Проектирование перепланировки (переустройства) - разделы АС (договор, аттестация).
    Согласование проекта (Администрация района, эксплуатирующая организация).
    Технический надзор (договор, аттестация).
    Выполнение строительно-монтажных работ с оформлением актов обследования скрытых работ (договор строительного подряда, обязательная сертификация работ, аттестация).
    Ведомость технических характеристик БТИ.
    Сдача приемочной комиссии (ЖРЭО, Администрация района, ЖЭС (ТС), проектировщик, технадзор, подрядчик, возможно - РОМЧС, ЦГиЭ, Мингаз и пр.).
    Решение исполкома о приемке в эксплуатацию.
    Изготовление нового техпаспорта БТИ.

    Мы старый мир разрушим...
  • wag04 Senior Member
    офлайн
    wag04 Senior Member

    4766

    16 лет на сайте
    пользователь #252921

    Профиль
    Написать сообщение

    4766
    # 21 февраля 2018 15:02
    DOLBO:

    процедура узаконивания самовольной перепланировки?
    вы ее не можете выполнить - только через собственника (нынешнего владельца).
    желательно план-схема, чтобы понимать соответствие строительным нормам.

    Понятно, что я это делать не смогу. Интересует цена, ради чего бодаться.

  • DOLBO Куратор team
    офлайн
    DOLBO Куратор team

    4910

    15 лет на сайте
    пользователь #278657

    Профиль
    Написать сообщение

    4910
    # 21 февраля 2018 15:11
    wag04:

    DOLBO:

    процедура узаконивания самовольной перепланировки?
    вы ее не можете выполнить - только через собственника (нынешнего владельца).
    желательно план-схема, чтобы понимать соответствие строительным нормам.

    Понятно, что я это делать не смогу. Интересует цена, ради чего бодаться.

    как вариант - можно попробовать перезаказать техпаспорт как незначительные изменения.
    вообще без процедуры.

    если по процедуре - в ЛС отвечу

    Мы старый мир разрушим...
  • Star2012 Neophyte Poster
    офлайн
    Star2012 Neophyte Poster

    20

    14 лет на сайте
    пользователь #568620

    Профиль
    Написать сообщение

    20
    # 22 февраля 2018 01:02

    Подскажите, в новостройках-полуфабрикатах (без перегородок, сан.узлы только 4 кирпича) процедура регистрации какова, если сталкивались???

  • Перепланировщик Senior Member
    офлайн
    Перепланировщик Senior Member

    1238

    8 лет на сайте
    пользователь #2338566

    Профиль
    Написать сообщение

    1238
    # 22 февраля 2018 07:59

    Star2012, Приветствую! Как и в других, или через проект или через план-схему.

    Незнание закона не освобождает от ответственности, а знание очень даже может.
  • DOLBO Куратор team
    офлайн
    DOLBO Куратор team

    4910

    15 лет на сайте
    пользователь #278657

    Профиль
    Написать сообщение

    4910
    # 22 февраля 2018 10:51
    Star2012:

    Подскажите, в новостройках-полуфабрикатах (без перегородок, сан.узлы только 4 кирпича) процедура регистрации какова, если сталкивались???

    как и для любых других квартир
    согласно
    Постановление Совета Министров Республики Беларусь 16.05.2013 № 384.
    ПОЛОЖЕНИЕ об условиях и порядке переустройства и (или) перепланировки.

    Мы старый мир разрушим...
  • j-ab Member
    офлайн
    j-ab Member

    371

    17 лет на сайте
    пользователь #147472

    Профиль
    Написать сообщение

    371
    # 22 февраля 2018 17:49 Редактировалось j-ab, 1 раз.

    Уже несколько раз сталкивалась с тем. что покупателям со свободной планировкой ничего не говорят о том. что планировку, которую они сделают. надо утверждать:(((

  • Перепланировщик Senior Member
    офлайн
    Перепланировщик Senior Member

    1238

    8 лет на сайте
    пользователь #2338566

    Профиль
    Написать сообщение

    1238
    # 22 февраля 2018 20:32

    j-ab, Приветствую! Есть такое. Недавно мужчина в очереди жаловался, что лучше-б купил готовую.)

    Незнание закона не освобождает от ответственности, а знание очень даже может.
  • Неизвестный кот Member
    офлайн
    Неизвестный кот Member

    130

    14 лет на сайте
    пользователь #535520

    Профиль

    130
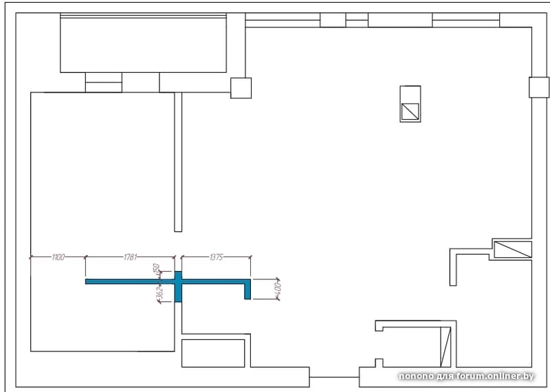
    # 23 февраля 2018 11:51 Редактировалось Неизвестный кот, 2 раз(а).

    Подскажите, можно ли сделать такой проем в несущей стене? и сколько можно/нужно отступить от края панели? Панельный дом 9/10 этаж. толщина стены 12см.

  • DOLBO Куратор team
    офлайн
    DOLBO Куратор team

    4910

    15 лет на сайте
    пользователь #278657

    Профиль
    Написать сообщение

    4910
    # 23 февраля 2018 15:08
    latentor:

    Подскажите, можно ли сделать такой проем в несущей стене? и сколько можно/нужно отступить от края панели? Панельный дом 9/10 этаж. толщина стены 12см.

    возможно.
    через проект, госстройэкспертизу и т.д.
    усиление проема обязательно.

    привязки - будет решать инженер-конструктор.
    в вашем случае, особо не разгонишься с вариантами отступа.

    Мы старый мир разрушим...
  • nonono Member
    офлайн
    nonono Member

    480

    16 лет на сайте
    пользователь #238413

    Профиль
    Написать сообщение

    480
    # 24 февраля 2018 21:28

    добрый день. Стены из блоков. Легко ли будет утвердить следующее:

    План демонтажа:

    План монтажа:

    И проще ли будет сразу сделать и заплатить штраф постфактум или же бродить по инстанциям и узаконивать изначально?

    Per anus ad astra
  • DOLBO Куратор team
    офлайн
    DOLBO Куратор team

    4910

    15 лет на сайте
    пользователь #278657

    Профиль
    Написать сообщение

    4910
    # 24 февраля 2018 23:31
    nonono:

    добрый день. Стены из блоков. Легко ли будет утвердить следующее

    легко.
    разрешение исполкома по согласованной план-схеме, выполнение работ, втх, сдача-приемка, регистрация.

    правильнее и дешевле по-правильному.
    но можно и по факту.

    Мы старый мир разрушим...
  • art-triumph Senior Member
    офлайн
    art-triumph Senior Member

    3057

    10 лет на сайте
    пользователь #1807551

    Профиль
    Написать сообщение

    3057
    # 25 февраля 2018 07:34 Редактировалось art-triumph, 1 раз.

    nonono,

    Здравствуйте.
    Планируемая при входе гардеробная не функциональна.
    Альтернативный вариант может выглядеть так:

    Vladimir 375296020381
  • nonono Member
    офлайн
    nonono Member

    480

    16 лет на сайте
    пользователь #238413

    Профиль
    Написать сообщение

    480
    # 25 февраля 2018 10:52
    art-triumph:

    nonono,

    Здравствуйте.
    Планируемая при входе гардеробная не функциональна.
    Альтернативный вариант может выглядеть так:

    А почему не функциональная? Там предполагается только для верхних вещей + всякой бытовой ерудны. Гардеробная основная - в комнате.

    Per anus ad astra
  • art-triumph Senior Member
    офлайн
    art-triumph Senior Member

    3057

    10 лет на сайте
    пользователь #1807551

    Профиль
    Написать сообщение

    3057
    # 25 февраля 2018 12:31

    nonono,

    Если эта квартира только для закоренелого холостяка, то сгодится.
    Но стоит появится женщине с ее многочисленными плащами, курточками, дубленками, шубами, сапогами зимними, сапогами осенними, сапогами летними, туфлями, ботинками на каждый сезон и просто так.... чтобы было....
    Гардеробная в комнате не для этого.
    Хотя бы запах от носимой обуви ни куда не денется.

    Vladimir 375296020381
  • openlock Member
    офлайн
    openlock Member

    180

    12 лет на сайте
    пользователь #891004

    Профиль
    Написать сообщение

    180
    # 25 февраля 2018 21:38 Редактировалось openlock, 1 раз.

    Добрый день,

    Интересует возможность перепланировки, указанная на фото, красным - снести, зеленым - возвести, синий - полотенцесушитель, жёлтый - дверь. Расстановка сан узла и ванны такая же. Этаж 9/9.

    Интересует под ключ со всеми работами, примерные сроки.
    В личку, пожалуйста.

    Благодарю.

    читаю Lurk
  • Перепланировщик Senior Member
    офлайн
    Перепланировщик Senior Member

    1238

    8 лет на сайте
    пользователь #2338566

    Профиль
    Написать сообщение

    1238
    # 25 февраля 2018 21:45

    openlock, Приветствую! Реально такое осуществить. Разрешение местного исполнительного, проект, договор на технадзор, договор на гидроизоляцию с актами на скрытые.

    Незнание закона не освобождает от ответственности, а знание очень даже может.
  • DOLBO Куратор team
    офлайн
    DOLBO Куратор team

    4910

    15 лет на сайте
    пользователь #278657

    Профиль
    Написать сообщение

    4910
    # 25 февраля 2018 21:54

    openlock,
    стандартная процедура - разрешение, проект, согласование, технадзор, подрядчик, втх, сдача-приемка, регистрация

    в ЛС отвечу.

    Мы старый мир разрушим...