Добрый день, помогите пожалуйста разобраться! Проблема вырисовывалась на протяжении 10 лет.. был сделан косметический ремонт, но на обоях через год образовалась плесень, при том что стены обрабатывались от плесни несколько раз от плесени. Вот созрели до следующего ремонта, но боюсь повторения ситуации с плесенью. Написала обращение на 115 , к нам пришли и сняли пирометрам показания температуры плиты. Однако измерения производились по обоям..( Виниловые, вспененные на стыках внахлёст)Сказали вытяжка работает , это от того что не проветриваете.. доказать что у нас практически окна не закрываются естественно не могла, только словесно, но кто же мне поверит) далее дали заключение , что есть незначительная разгерметизация швов, промерзания нет( это заключение делал инженер КУП ЖКХ). Потом пришли еще из ЖЭУ еще раз измерили и дали акт обследования о промерзании стен. На что инженер КУП ЖКХ подняла крик и возмущения про то ,что там нет промерзания по показателям… где правда я не знаю..Может есть, кто разбирается с показателями, стоит ли теребить по поводу промерзания стен?
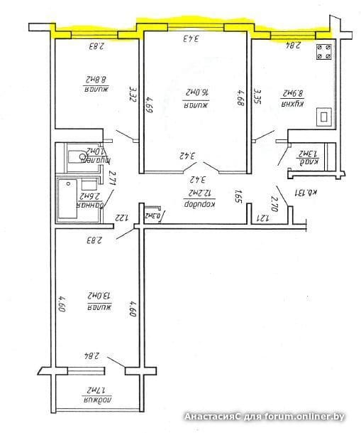
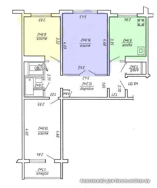
Панельный дом 1985г. . Северная сторона. Вентиляция при открытых окнах имеется. В дух комнатах деревянные окна, в маленькой пвх.
Данные по первому замеру : температура наружная -8; в квартире 22, на кухне 21.
Данные по второму замеру : температура наружная -5 , в квартире 23



















